
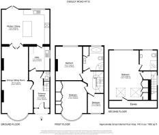
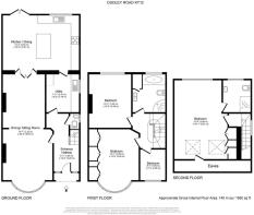
4 bedroom detached house for sale
Dudley Road, WALTON-ON-THAMES, KT12

- PROPERTY TYPE
Detached
- BEDROOMS
4
- BATHROOMS
2
- SIZE
Ask agent
- TENUREDescribes how you own a property. There are different types of tenure - freehold, leasehold, and commonhold.Read more about tenure in our glossary page.
Freehold
Key features
- Walton's town centre is a short pleasant walk
- Attractive fireplace
- Open plan kitchen / family room
- Four bedrooms
- En suite shower room
- Large rear garden
Description
Martin Flashman & Co are delighted to offer this attractive, detached family home located at the end of the popular no through road which has pedestrian access down to a lovely stretch of the River Thames. The property has beautiful bay-fronted elevations alongside classical 1930's character making this property an ideal family home.
The location is delightful - opposite the Tow Path and River Thames. The town centre is a short, pleasant walk away and importantly the property falls within catchment of some of the areas favoured primary and secondary schools including the new Heathside Academy. The extended accommodation now provides some versatile and impressive accommodation over three floors. This briefly comprises entrance hall with ground floor cloakroom, bay fronted living room with attractive fireplace and wooden flooring which leads to the dining area. The open-plan kitchen-family room is a great social space with an excellent rage of fitted cupboards with central island, doors opening directly out into a sizeable garden with backs southwest.
Furthermore, there are four bedrooms and two bathrooms including a lovely master bedroom suite over the top floor with en suite shower room and plenty of built in wardrobes. This room benefits from some lovely views towards the river. Outside, the property sits on a corner plot with a low maintenance frontage and a large rear garden, laid to lawn with natural screening providing plenty of privacy. There is hardstanding towards the end of the garden giving ready space and foundation for a home office or studio. In all a superbly located family home in a location where houses rarely become available.
Council Tax Band: F
- COUNCIL TAXA payment made to your local authority in order to pay for local services like schools, libraries, and refuse collection. The amount you pay depends on the value of the property.Read more about council Tax in our glossary page.
- Band: F
- PARKINGDetails of how and where vehicles can be parked, and any associated costs.Read more about parking in our glossary page.
- Ask agent
- GARDENA property has access to an outdoor space, which could be private or shared.
- Yes
- ACCESSIBILITYHow a property has been adapted to meet the needs of vulnerable or disabled individuals.Read more about accessibility in our glossary page.
- Ask agent
Dudley Road, WALTON-ON-THAMES, KT12
Add an important place to see how long it'd take to get there from our property listings.
__mins driving to your place
Get an instant, personalised result:
- Show sellers you’re serious
- Secure viewings faster with agents
- No impact on your credit score



Your mortgage
Notes
Staying secure when looking for property
Ensure you're up to date with our latest advice on how to avoid fraud or scams when looking for property online.
Visit our security centre to find out moreDisclaimer - Property reference 27796431. The information displayed about this property comprises a property advertisement. Rightmove.co.uk makes no warranty as to the accuracy or completeness of the advertisement or any linked or associated information, and Rightmove has no control over the content. This property advertisement does not constitute property particulars. The information is provided and maintained by Martin Flashman & Co., Walton-on-Thames. Please contact the selling agent or developer directly to obtain any information which may be available under the terms of The Energy Performance of Buildings (Certificates and Inspections) (England and Wales) Regulations 2007 or the Home Report if in relation to a residential property in Scotland.
*This is the average speed from the provider with the fastest broadband package available at this postcode. The average speed displayed is based on the download speeds of at least 50% of customers at peak time (8pm to 10pm). Fibre/cable services at the postcode are subject to availability and may differ between properties within a postcode. Speeds can be affected by a range of technical and environmental factors. The speed at the property may be lower than that listed above. You can check the estimated speed and confirm availability to a property prior to purchasing on the broadband provider's website. Providers may increase charges. The information is provided and maintained by Decision Technologies Limited. **This is indicative only and based on a 2-person household with multiple devices and simultaneous usage. Broadband performance is affected by multiple factors including number of occupants and devices, simultaneous usage, router range etc. For more information speak to your broadband provider.
Map data ©OpenStreetMap contributors.





