
2 bedroom apartment for sale
Cavell Drive, Enfield, Middlesex, EN2

- PROPERTY TYPE
Apartment
- BEDROOMS
2
- BATHROOMS
1
- SIZE
Ask agent
Key features
- 2 Bedrooms
- Entrance Hall
- Sitting/Dining Room
- Balcony
- Kitchen
- Shower Room
- Communal Garden
Description
Set in beautiful well kept grounds this retirement flat is to the rear of the property. It has a good sized sitting/dining room with sliding door out onto the lovely patio surrounded by lush planting and with enough room for a small table and chairs. There is a modern kitchen with plenty of cupboards for storage, a double bedroom with built in wardrobes, a white tiled, modern convenient shower room and a single bedroom. The communal areas are all well looked after.
This desirable part of Enfield benefits from cricket, tennis and golf clubs, a hospital, three overground station that can take you into central London within 30 minutes, a myriad of green spaces, lots of shops & restaurants and good road links to M25 and A1M.
Close to:
Amenities,
Enfield Chase Railway Station 0.8 miles
Little Waitrose supermarket 0.7 miles
Shops & restaurants of Enfield Town 0.9 miles
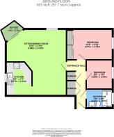
Entrance Hall
Sitting/Dining Room
5.87m x 5.33m (19' 3" x 17' 6")
Balcony
2m x 1.14m (6' 7" x 3' 9")
Kitchen
2.97m x 2.3m (9' 9" x 7' 7")
Master Bedroom
4.06m x 2.7m (13' 4" x 8' 10")
Shower Room
2.34m x 1.68m (7' 8" x 5' 6")
Bedroom 2
2.57m x 2.34m (8' 5" x 7' 8")
Communal Garden
- COUNCIL TAXA payment made to your local authority in order to pay for local services like schools, libraries, and refuse collection. The amount you pay depends on the value of the property.Read more about council Tax in our glossary page.
- Band: D
- PARKINGDetails of how and where vehicles can be parked, and any associated costs.Read more about parking in our glossary page.
- Residents
- GARDENA property has access to an outdoor space, which could be private or shared.
- Yes
- ACCESSIBILITYHow a property has been adapted to meet the needs of vulnerable or disabled individuals.Read more about accessibility in our glossary page.
- Ask agent
Cavell Drive, Enfield, Middlesex, EN2
Add an important place to see how long it'd take to get there from our property listings.
__mins driving to your place
Get an instant, personalised result:
- Show sellers you’re serious
- Secure viewings faster with agents
- No impact on your credit score



Your mortgage
Notes
Staying secure when looking for property
Ensure you're up to date with our latest advice on how to avoid fraud or scams when looking for property online.
Visit our security centre to find out moreDisclaimer - Property reference HKE240108. The information displayed about this property comprises a property advertisement. Rightmove.co.uk makes no warranty as to the accuracy or completeness of the advertisement or any linked or associated information, and Rightmove has no control over the content. This property advertisement does not constitute property particulars. The information is provided and maintained by Atkinsons Residential, Enfield - Sales. Please contact the selling agent or developer directly to obtain any information which may be available under the terms of The Energy Performance of Buildings (Certificates and Inspections) (England and Wales) Regulations 2007 or the Home Report if in relation to a residential property in Scotland.
*This is the average speed from the provider with the fastest broadband package available at this postcode. The average speed displayed is based on the download speeds of at least 50% of customers at peak time (8pm to 10pm). Fibre/cable services at the postcode are subject to availability and may differ between properties within a postcode. Speeds can be affected by a range of technical and environmental factors. The speed at the property may be lower than that listed above. You can check the estimated speed and confirm availability to a property prior to purchasing on the broadband provider's website. Providers may increase charges. The information is provided and maintained by Decision Technologies Limited. **This is indicative only and based on a 2-person household with multiple devices and simultaneous usage. Broadband performance is affected by multiple factors including number of occupants and devices, simultaneous usage, router range etc. For more information speak to your broadband provider.
Map data ©OpenStreetMap contributors.





