3 bedroom detached house for sale
Top Lane, Mells, Mells, BA11

- PROPERTY TYPE
Detached
- BEDROOMS
3
- BATHROOMS
2
- SIZE
Ask agent
- TENUREDescribes how you own a property. There are different types of tenure - freehold, leasehold, and commonhold.Read more about tenure in our glossary page.
Freehold
Key features
- Building plot in the heart of Mells
- Full planning has been approved
- Gardens and parking
- Highly sought after village location
Description
An opportunity to purchase land with planning permission to build a three/four bedroom detached house in an exceptionally popular part of Mells.
Application No: 2024/0620/FUL. Full planning permission has been granted to build an attractive, detached home, with parking for three cars and a private and enclosed garden.
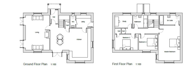
The accommodation is to include a welcoming entrance hall, a living room with two sets of French doors leading out to the garden, an impressive kitchen/ dining room, a utility room and a downstairs WC.
On the first floor there is an impressive master bedroom with en-suite, two further bedrooms, a study and a family bathroom.
Agents note
We have been informed that there will be restrictive covenants put in place to ensure the property is built and maintained in line with the planning consent. This will include a restriction on alterations/additions and will require the use of vernacular building materials during construction to ensure the property is in keeping with the style and aesthetic of the village.
LOCATION
Mells continues to be one of the most sought-after villages in the area. The village offers a junior school, a public house of excellent reputation and local Post Office/shop. The country house hotel of Babington House is just two miles, and the market town of Frome is within a short drive. Railway connections at Frome and Westbury for London Paddington and Warminster and Gillingham for London Waterloo. Communication links are excellent with Bath and Bristol within commuting distance and the A303, A36 & M4 & M5 all within easy reach. The beautiful Somerset countryside provides a variety of leisure pursuits.
Development-Property
Brochures
Brochure 1- COUNCIL TAXA payment made to your local authority in order to pay for local services like schools, libraries, and refuse collection. The amount you pay depends on the value of the property.Read more about council Tax in our glossary page.
- Ask agent
- PARKINGDetails of how and where vehicles can be parked, and any associated costs.Read more about parking in our glossary page.
- Yes
- GARDENA property has access to an outdoor space, which could be private or shared.
- Yes
- ACCESSIBILITYHow a property has been adapted to meet the needs of vulnerable or disabled individuals.Read more about accessibility in our glossary page.
- Ask agent
Energy performance certificate - ask agent
Top Lane, Mells, Mells, BA11
Add an important place to see how long it'd take to get there from our property listings.
__mins driving to your place
Get an instant, personalised result:
- Show sellers you’re serious
- Secure viewings faster with agents
- No impact on your credit score
Your mortgage
Notes
Staying secure when looking for property
Ensure you're up to date with our latest advice on how to avoid fraud or scams when looking for property online.
Visit our security centre to find out moreDisclaimer - Property reference 29378336. The information displayed about this property comprises a property advertisement. Rightmove.co.uk makes no warranty as to the accuracy or completeness of the advertisement or any linked or associated information, and Rightmove has no control over the content. This property advertisement does not constitute property particulars. The information is provided and maintained by Cooper & Tanner, Frome. Please contact the selling agent or developer directly to obtain any information which may be available under the terms of The Energy Performance of Buildings (Certificates and Inspections) (England and Wales) Regulations 2007 or the Home Report if in relation to a residential property in Scotland.
*This is the average speed from the provider with the fastest broadband package available at this postcode. The average speed displayed is based on the download speeds of at least 50% of customers at peak time (8pm to 10pm). Fibre/cable services at the postcode are subject to availability and may differ between properties within a postcode. Speeds can be affected by a range of technical and environmental factors. The speed at the property may be lower than that listed above. You can check the estimated speed and confirm availability to a property prior to purchasing on the broadband provider's website. Providers may increase charges. The information is provided and maintained by Decision Technologies Limited. **This is indicative only and based on a 2-person household with multiple devices and simultaneous usage. Broadband performance is affected by multiple factors including number of occupants and devices, simultaneous usage, router range etc. For more information speak to your broadband provider.
Map data ©OpenStreetMap contributors.








