
3 bedroom semi-detached house for sale
Tweed Road, Redcar

- PROPERTY TYPE
Semi-Detached
- BEDROOMS
3
- BATHROOMS
1
- SIZE
1,141 sq ft
106 sq m
- TENUREDescribes how you own a property. There are different types of tenure - freehold, leasehold, and commonhold.Read more about tenure in our glossary page.
Freehold
Key features
- INVESTMENT OPPORTUNITY ONLY
- SEMI-DETACHED
- THREE BEDROOM
- TENANT IN SITU
- DRIVEWAY & GARAGE
Description
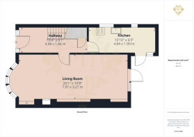
Hallway - 4.98m x 1.85m (16'4" x 6'1" ) - Step inside through a sleek white UPVC double glazed door and you’re greeted by a bright, airy hallway. Sunlight pours in, illuminating the space and offering a welcoming first impression. From here, you can head straight into the spacious reception and dining room, explore the kitchen, or make your way up to the first floor.
Reception/ Dining Room - 7.95m x 3.25m (26'1" x 10'8") - At the front of the property, the living area welcomes you with plenty of space for a comfortable two-piece suite, along with room for extra furnishings to suit your style. A large UPVC double glazed window fills the room with natural light, complemented by a radiator and fire surround that add both warmth and character. Toward the rear of the room, you'll find an inviting area perfect for a dining table and additional storage units. Here, classic French doors open directly onto the rear garden, seamlessly connecting your indoor and outdoor spaces and creating the ideal setting for relaxing or entertaining.
Kitchen - 4.83m x 1.91m (15'10" x 6'3" ) - The galley-style kitchen features a generous selection of light-colored wall cabinets, base cupboards, and spacious drawers, providing ample storage throughout. There’s plenty of room to accommodate free-standing appliances, making the space both practical and adaptable. Natural light pours in through a large UPVC double-glazed window, while a matching door offers easy access to the outside and enhances the bright, airy atmosphere.
Landing - 3.15m x 1.83m (10'4" x 6'0") - The landing gains access to the three spacious bedrooms, family bathroom and loft.
Bedroom One - 3.89m x 3.25m (12'9" x 10'8") - The primary bedroom is located at the front of the house, offering plenty of room for a double bed, bedside tables, and extra storage options. It features a built-in wardrobe for convenient organization and includes a radiator to keep the space warm and comfortable.
Bedroom Two - 3.86m x 3.23m (12'8" x 10'7") - The second bedroom is tucked away at the back of the property, offering a peaceful retreat away from the main living areas. There's plenty of room for a comfortable double bed, and thoughtfully designed built-in storage makes it easy to keep the space tidy and organized. A large UPVC double glazed window lets in plenty of natural light while helping to keep the room warm and quiet, complemented by a radiator for year-round comfort.
Bedroom Three - 2.54m x 1.83m (8'4" x 6'0") - The third bedroom sits at the front of the house, catching plenty of natural light through its UPVC double glazed window. There’s enough room here for a single bed, along with space for a dresser or a compact wardrobe. A radiator keeps the room warm and comfortable, making it a cozy spot for a guest, a child, or even a home office.
Family Bathroom - 1.91m x 1.85m (6'3" x 6'1" ) - The family bathroom features a classic three-piece suite, offering a deep paneled bathtub set against a backdrop of tiles, a spacious hand basin perfect for morning routines, and a low-level toilet designed for comfort and convenience. Natural light filters softly through a frosted UPVC double glazed window, ensuring both privacy and brightness, while a well-placed radiator keeps the space warm and inviting year-round.
External - This home features spacious front, side, and rear gardens, providing plenty of outdoor space for relaxing or entertaining. There’s convenient off-street parking and a private garage, making coming and going easy. Ideally located, the property is just a short walk or drive from local shops, schools, regular bus routes, and the beautiful Redcar seafront.
Important Information - Important Information – Making Your Home Purchase Simple
Thank you for viewing with us today. We hope you found the property interesting and would be happy to answer any additional questions you may have.
How to Make an Offer
If you’d like to proceed with an offer on this property, we’ve made the process straightforward and transparent. Here’s what you’ll need:
Identification
• Valid passport or driving licence.
For Cash Purchases
• Evidence of cleared funds by way of a bank statement.
For Mortgage Purchases
• Evidence of deposit by way of a bank statement.
• Decision in principle from your lender.
• If you need mortgage advice or assistance obtaining a decision in principle, we’re here to help and can arrange this for you.
Legal Services
We work with a panel of trusted solicitors and can provide competitive quotes for conveyancing services to make your purchase process smoother. Please ask us for a quote!
Selling Your Property?
If you have a property to sell, we’ll be happy to provide a free, no-obligation valuation. Our comprehensive marketing package includes:
• Professional photography
• Detailed floor plans
• Virtual property tour
• Listings on Rightmove, Zoopla, and On the Market
Next Steps
Once you’re ready to make an offer:
1.Contact our office.
2.Have your supporting documents ready.
3.We’ll present your offer to the seller and keep you updated.
Terms & Conditions / Disclaimers
•All property particulars, descriptions, and measurements are provided in good faith but are intended for guidance only. They do not constitute part of any offer or contract. Prospective buyers should verify details to their own satisfaction before proceeding.
•Photographs, floor plans, and virtual tours are for illustrative purposes and may not represent the current state or condition of the property.
•Any reference to alterations or use of any part of the property is not a statement that any necessary planning, building regulations, or other consent has been obtained. Buyers must make their own enquiries.
•We reserve the right to amend or withdraw this property from the market at any time without notice.
•Anti-Money Laundering (AML) regulations: In line with current UK legislation, we are required to carry out AML checks on all buyers and sellers. A fee will apply for these checks, and this charge is non-refundable. Your offer cannot be formally submitted to the seller until these compliance checks have been completed.
•By making an enquiry or offer, you consent to your details being used for the purposes of identity verification and compliance with AML regulations.
•Our agency does not accept liability for any loss arising from reliance on these particulars or any information provided.
•All services, appliances, and systems included in the sale are assumed to be in working order, but have not been tested by us. Buyers are advised to obtain independent surveys and checks as appropriate.
For further details or clarification, please contact our office directly.
Brochures
Tweed Road, RedcarBrochure- COUNCIL TAXA payment made to your local authority in order to pay for local services like schools, libraries, and refuse collection. The amount you pay depends on the value of the property.Read more about council Tax in our glossary page.
- Ask agent
- PARKINGDetails of how and where vehicles can be parked, and any associated costs.Read more about parking in our glossary page.
- Yes
- GARDENA property has access to an outdoor space, which could be private or shared.
- Yes
- ACCESSIBILITYHow a property has been adapted to meet the needs of vulnerable or disabled individuals.Read more about accessibility in our glossary page.
- Ask agent
Tweed Road, Redcar
Add an important place to see how long it'd take to get there from our property listings.
__mins driving to your place
Get an instant, personalised result:
- Show sellers you’re serious
- Secure viewings faster with agents
- No impact on your credit score
Your mortgage
Notes
Staying secure when looking for property
Ensure you're up to date with our latest advice on how to avoid fraud or scams when looking for property online.
Visit our security centre to find out moreDisclaimer - Property reference 34161808. The information displayed about this property comprises a property advertisement. Rightmove.co.uk makes no warranty as to the accuracy or completeness of the advertisement or any linked or associated information, and Rightmove has no control over the content. This property advertisement does not constitute property particulars. The information is provided and maintained by PH Estate Agents, Redcar. Please contact the selling agent or developer directly to obtain any information which may be available under the terms of The Energy Performance of Buildings (Certificates and Inspections) (England and Wales) Regulations 2007 or the Home Report if in relation to a residential property in Scotland.
*This is the average speed from the provider with the fastest broadband package available at this postcode. The average speed displayed is based on the download speeds of at least 50% of customers at peak time (8pm to 10pm). Fibre/cable services at the postcode are subject to availability and may differ between properties within a postcode. Speeds can be affected by a range of technical and environmental factors. The speed at the property may be lower than that listed above. You can check the estimated speed and confirm availability to a property prior to purchasing on the broadband provider's website. Providers may increase charges. The information is provided and maintained by Decision Technologies Limited. **This is indicative only and based on a 2-person household with multiple devices and simultaneous usage. Broadband performance is affected by multiple factors including number of occupants and devices, simultaneous usage, router range etc. For more information speak to your broadband provider.
Map data ©OpenStreetMap contributors.






