Killieser Avenue, London, SW2

- PROPERTY TYPE
Apartment
- BEDROOMS
2
- BATHROOMS
2
- SIZE
Ask agent
Key features
- First floor Victorian conversion
- Two double bedrooms
- Spacious reception room
- Modern fitted kitchen
- Bathroom and separate shower room
- Period features throughout
- Access to communal garden
- Excellent transport links nearby
Description
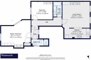
The property opens into a welcoming hall leading to a spacious reception room with large sash windows and an original fireplace, filling the space with natural light. The modern kitchen is set just off the reception, with sleek cabinetry, fitted appliances and a striking tiled splashback. Both bedrooms are generously sized, with the principal room benefitting from a charming fireplace and ample floor space. The property also offers versatility with a second bedroom that could be used as a guest room, study or nursery.
A well-appointed bathroom and a separate shower room complete the accommodation, providing convenience for modern living. Outside, the communal garden is a peaceful retreat, surrounded by greenery and ideal for relaxing in warmer months.
Killieser Avenue lies within the sought-after Telford Park conservation neighbourhood, a quiet pocket known for its tree-lined streets and period architecture. Streatham Hill station is nearby, with direct routes into Victoria, while Balham tube (Northern Line) is also within easy reach. The area is well served by excellent primary schools, independent coffee shops, bars, restaurants, and the wide green open spaces of Tooting Bec Common with its renowned outdoor Lido.
Brochures
Web DetailsParticulars- COUNCIL TAXA payment made to your local authority in order to pay for local services like schools, libraries, and refuse collection. The amount you pay depends on the value of the property.Read more about council Tax in our glossary page.
- Band: D
- PARKINGDetails of how and where vehicles can be parked, and any associated costs.Read more about parking in our glossary page.
- On street,Permit,Residents
- GARDENA property has access to an outdoor space, which could be private or shared.
- Ask agent
- ACCESSIBILITYHow a property has been adapted to meet the needs of vulnerable or disabled individuals.Read more about accessibility in our glossary page.
- Ask agent
Killieser Avenue, London, SW2
Add an important place to see how long it'd take to get there from our property listings.
__mins driving to your place
Get an instant, personalised result:
- Show sellers you’re serious
- Secure viewings faster with agents
- No impact on your credit score
Your mortgage
Notes
Staying secure when looking for property
Ensure you're up to date with our latest advice on how to avoid fraud or scams when looking for property online.
Visit our security centre to find out moreDisclaimer - Property reference STH250260. The information displayed about this property comprises a property advertisement. Rightmove.co.uk makes no warranty as to the accuracy or completeness of the advertisement or any linked or associated information, and Rightmove has no control over the content. This property advertisement does not constitute property particulars. The information is provided and maintained by Winkworth, Streatham. Please contact the selling agent or developer directly to obtain any information which may be available under the terms of The Energy Performance of Buildings (Certificates and Inspections) (England and Wales) Regulations 2007 or the Home Report if in relation to a residential property in Scotland.
*This is the average speed from the provider with the fastest broadband package available at this postcode. The average speed displayed is based on the download speeds of at least 50% of customers at peak time (8pm to 10pm). Fibre/cable services at the postcode are subject to availability and may differ between properties within a postcode. Speeds can be affected by a range of technical and environmental factors. The speed at the property may be lower than that listed above. You can check the estimated speed and confirm availability to a property prior to purchasing on the broadband provider's website. Providers may increase charges. The information is provided and maintained by Decision Technologies Limited. **This is indicative only and based on a 2-person household with multiple devices and simultaneous usage. Broadband performance is affected by multiple factors including number of occupants and devices, simultaneous usage, router range etc. For more information speak to your broadband provider.
Map data ©OpenStreetMap contributors.







