
Ford, Temple Guiting, Cheltenham, Gloucestershire, GL54

- PROPERTY TYPE
Detached
- BEDROOMS
5
- BATHROOMS
4
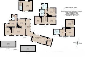
- SIZE
3,138 sq ft
292 sq m
- TENUREDescribes how you own a property. There are different types of tenure - freehold, leasehold, and commonhold.Read more about tenure in our glossary page.
Freehold
Key features
- Exquisite Grade II manor house
- Beautifully presented accommodation
- Mature landscaped gardens
- One-bed annexe
- Vibrant community
- EPC Rating = F
Description
Description
Ford Manor presents a rare opportunity to acquire a property of architectural distinction and rural calm. Once three individual cottages, the house was unified and sensitively restored in the 1930s, with further later additions. It now forms a cohesive and elegant family home, abundant in character and well considered in flow.
Constructed in local Cotswold stone under a traditional pitched roof, the house retains an abundance of period features: flagstone floors, exposed beams, deep-set mullioned windows with leaded lights, and handsome inglenook fireplaces throughout the principal reception rooms. The atmosphere throughout is one of understated character and gentle refinement.
Of particular note is the vaulted kitchen and breakfast room, linked to the main house via a glazed passageway, and opening directly onto a south-facing terrace. The accommodation includes five bedrooms and a study, with well-proportioned reception spaces ideally suited to both entertaining and everyday family life.
Approached via a sweeping tarmac drive, the house is set well back from the quiet country lane, with ample gravel parking and a sense of privacy. The principal gardens are formal in layout and beautifully tended, with expansive lawns, mature planting, and well-stocked herbaceous borders. Two enclosed terraced gardens, each with water features, provide sheltered spaces for outdoor dining and entertaining.
To one side sits a detached annexe with its own entrance and private parking. This vaulted, self-contained suite includes a kitchenette and wet room, and is currently operated as a successful Airbnb, though equally suited to guest or ancillary accommodation.
Location
Ford is a charming and picturesque hamlet nestled in the heart of the Cotswolds Area of Outstanding Natural Beauty.
It features an appealing mix of period and contemporary cottages and houses, all set against the backdrop of gently rolling countryside. At the heart of the hamlet is The Plough, a well-regarded and welcoming country pub. A short distance away in Kineton, you’ll find The Halfway House pub, with a well-deserved reputation as a gastropub, while the thriving village of Guiting Power is home to The Farmers Arms, The Hollow Bottom, with deep roots in the local horse racing community, a post office and store with a café, The Cotswold Guy farm shop and takeaway, a church, and a village hall. The nearby village of Temple Guiting offers a historic parish church and a traditional village hall. Local attractions include the popular Cotswold Farm Park, run by Adam Henson, offering family-friendly entertainment and a chance to enjoy the rural lifestyle.
The North Cotswolds is home to some of the UK’s most respected National Hunt trainers and stables who are very much part of the vibrant local community.
The area is criss-crossed with scenic footpaths and bridleways, perfect for walking, riding, and exploring the beautiful Cotswold countryside. For a wider range of amenities, the nearby market towns of Stow-on-the-Wold, Bourton-on-the-Water, and Winchcombe provide excellent shopping, dining, and leisure opportunities, with the cultural hubs of Cheltenham, Stratford-upon-Avon, and Oxford also within easy reach. Transport links are excellent, with London accessible via the A40/M40 and mainline rail services to London Paddington from both Kingham and Moreton-in-Marsh, approximately 20 minutes’ drive away.
Leisure and education: There are golf courses at Naunton Downs and Cheltenham, and horse racing at Cheltenham, Stratford upon-Avon, and Warwick. Schooling options are strong, with a popular primary school (OFSTED-rated ‘Good’) in Temple Guiting and a Montessori nursery in Guiting Power. A school bus serves the area for the highly regarded Cotswold School (OFSTED-rated ‘Outstanding’), along with a wide range of independent schools in Cheltenham and the surrounding area, including Pate’s Grammar School, Cheltenham Ladies’ College, Cheltenham College, Cheltenham Preparatory School, Dean Close and St. Edward’s
Square Footage: 3,138 sq ft
Acreage: 0.66 Acres
Directions
(GL54 5RU): What3Words: ///height.give.sardine
Additional Info
Mains water and electricity. Private drainage. Oil-fired central heating.
Fixtures & Fittings: All items described in these particulars as fixtures and fittings are included in the sale. All other items are specifically excluded.
Local Authority: Cotswold District Council. t:
Post Cide: GL54 5RU
Viewing strictly by appointment through Savills Stow-on-the-Wold. t:
Photographs taken: August 2025.
Particulars prepared: August 2025.
Brochures
Web Details- COUNCIL TAXA payment made to your local authority in order to pay for local services like schools, libraries, and refuse collection. The amount you pay depends on the value of the property.Read more about council Tax in our glossary page.
- Band: G
- PARKINGDetails of how and where vehicles can be parked, and any associated costs.Read more about parking in our glossary page.
- Yes
- GARDENA property has access to an outdoor space, which could be private or shared.
- Yes
- ACCESSIBILITYHow a property has been adapted to meet the needs of vulnerable or disabled individuals.Read more about accessibility in our glossary page.
- Ask agent
Ford, Temple Guiting, Cheltenham, Gloucestershire, GL54
Add an important place to see how long it'd take to get there from our property listings.
__mins driving to your place
Get an instant, personalised result:
- Show sellers you’re serious
- Secure viewings faster with agents
- No impact on your credit score


Your mortgage
Notes
Staying secure when looking for property
Ensure you're up to date with our latest advice on how to avoid fraud or scams when looking for property online.
Visit our security centre to find out moreDisclaimer - Property reference SWG210163. The information displayed about this property comprises a property advertisement. Rightmove.co.uk makes no warranty as to the accuracy or completeness of the advertisement or any linked or associated information, and Rightmove has no control over the content. This property advertisement does not constitute property particulars. The information is provided and maintained by Savills, Stow-On-The-Wold. Please contact the selling agent or developer directly to obtain any information which may be available under the terms of The Energy Performance of Buildings (Certificates and Inspections) (England and Wales) Regulations 2007 or the Home Report if in relation to a residential property in Scotland.
*This is the average speed from the provider with the fastest broadband package available at this postcode. The average speed displayed is based on the download speeds of at least 50% of customers at peak time (8pm to 10pm). Fibre/cable services at the postcode are subject to availability and may differ between properties within a postcode. Speeds can be affected by a range of technical and environmental factors. The speed at the property may be lower than that listed above. You can check the estimated speed and confirm availability to a property prior to purchasing on the broadband provider's website. Providers may increase charges. The information is provided and maintained by Decision Technologies Limited. **This is indicative only and based on a 2-person household with multiple devices and simultaneous usage. Broadband performance is affected by multiple factors including number of occupants and devices, simultaneous usage, router range etc. For more information speak to your broadband provider.
Map data ©OpenStreetMap contributors.





