Ferndale, Much Hadham, SG10

- PROPERTY TYPE
Semi-Detached
- BEDROOMS
4
- BATHROOMS
2
- SIZE
Ask agent
- TENUREDescribes how you own a property. There are different types of tenure - freehold, leasehold, and commonhold.Read more about tenure in our glossary page.
Freehold
Key features
- Village Centre Location
- Beautifully Presented & Decorated
- Four Bedrooms
- High Quality Bath/Shower Rooms
- Parking for 2-3 Cars
- Fantastic Open Plan Living Space
Description
Folio: 15731 A beautifully presented four bedroom family home in the centre of the highly desirable village of Much Hadham. Positioned within walking distance of all its fantastic facilities including a local village shop for all your day-to-day needs including a post office, various couriers deliver/collection points and dry cleaners, dentist, doctors with an internal dispensary, nursery, pre-school and primary school, barbers, church, village hall, scout hut, allotments, car garage, stable yards, children’s playground, sporting ground including tennis court, footballs pitch, bowling and croquet club, lovely country walks and a public house. There is easy access to the larger town of Bishop’s Stortford offering multiple shopping centres, recreational and leisure facilities, schools, mainline train station serving London Liverpool Street and Cambridge and of course, M11 leading to M25 access points.
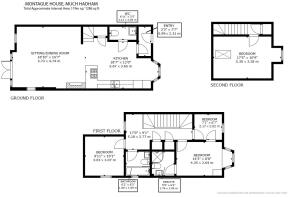
Montague House benefits from having a large open plan kitchen/dining/family room with high ceiling, feature fireplace, double opening doors to rear garden, bay window to front, downstairs WC, entrance hall, large first floor landing giving access to three of the bedrooms, en-suite to bedroom 1 and a further high quality family bathroom. To the top floor there is a further large double bedroom. Outside there is an enclosed and beautifully landscaped rear garden plus a driveway to the front providing parking for 2-3 cars. Only by internal viewing will this stunning property be fully appreciated.
Front Door
Solid wooden front door giving access through to:
Entrance Hall
With a wall mounted radiator, cupboard housing electric fuse box, fitted bench seat, coving to ceiling, low voltage downlighting, tiled flooring, part glazed door giving access through to:
Open Plan Kitchen/Dining Family Room
Open Plan Kitchen/Dining/Family Room
Kitchen Area
18’7 x 12’0 comprising an inset 1¼ bowl ceramic sink with a stainless steel mixer tap above and cupboard beneath, further range of base and eye level units with a solid wooden worktop and a tiled splashback surround, integrated four ring gas hob with an integrated electric oven beneath, integrated microwave, washing machine and dishwasher, recess for freestanding fridge/freezer, double glazed bay window to front with built-in bench seat and storage beneath, wall mounted double panelled radiator, carpeted staircase rising to the first floor landing with cupboard beneath, door to downstairs WC, high ceilings, newly fitted wooden flooring, open through to:
Living/Dining Room
18’10 x 15’7 with double glazed, double opening doors giving access to rear garden, windows to either side, further window, wall mounted radiators, open fireplace with a stone surround and hearth, high ceilings, TV aerial point, telephone points...
Downstairs Cloakroom
Comprising an inset wash hand basin with a monobloc tap and vanity unit beneath, heritage style flush WC with chrome fittings, segment radiator, low voltage downlighting, extractor fan, Amtico flooring.
Large First Floor Landing
With a carpeted staircase rising to the second floor, window to rear, radiator, airing cupboard housing a Megaflo system and shelving, further built-in cupboard, coving to ceiling, low voltage downlighting.
Bedroom 1
14' 3" (into bay) x 8' 8" (4.34m x 2.64m) with a beautiful double glazed bay window to front with a built-in bench seat with storage, fitted wardrobes, radiator, interlinking door giving access through to bedroom 4, low voltage downlighting, coving to ceiling, fitted carpet, double opening doors giving access through to:
Luxury En-Suite Shower Room
A beautifully fitted en-suite comprising a walk-in shower cubicle with a wall mounted rain head shower and hand held shower attachment and glazed shower screen, flush WC, wash hand basin with a monobloc tap and built-in storage cupboard beneath, double glazed opaque window to side, towel rail, low voltage downlighting, extractor fan, fully tiled wall and flooring.
Bedroom 2
10' 1" x 9' 11" (3.07m x 3.02m) with a double glazed window to side, radiator, TV aerial point, low voltage downlighting, access to loft, fitted carpet.
Bedroom 4/Nursery
7' 1" x 6' 7" (2.16m x 2.01m) with a double glazed window to front, radiator, interlinking door giving access to bedroom 1, low voltage downlighting, coving to ceiling, fitted carpet.
Main Bathroom
Comprising a panel enclosed bath with hot and cold mixer taps, heritage style rain head shower and handheld shower attachment, flush WC, wash hand basin with a monobloc tap above and vanity unit beneath, chrome heated towel rail, extractor fan, low voltage downlighting, opaque window to side, part tiled walls and tiled flooring.
Second Floor Landing
With a door giving access to a built-in storage cupboard housing boiler supplying domestic hot water and heating, door through to:
Bedroom 3
17' 5" x 10' 9" (5.31m x 3.28m) with a double glazed window to front, Velux window to rear, radiators, low voltage downlighting, hatches giving access to eaves storage, fitted carpet.
Outside
The Rear
Directly to the rear of the property is a patio area while the rest of the garden is mainly laid to lawn with well stocked flower borders to either side. There is a timber storage shed, outside lighting, outside power sockets and a gate giving access to the side of the property, leading to the front.
The Front
To the front of the property is a driveway providing parking for 2-3 vehicles.
Local Authority
East Herts District Council
Band ‘E’
- COUNCIL TAXA payment made to your local authority in order to pay for local services like schools, libraries, and refuse collection. The amount you pay depends on the value of the property.Read more about council Tax in our glossary page.
- Ask agent
- PARKINGDetails of how and where vehicles can be parked, and any associated costs.Read more about parking in our glossary page.
- Yes
- GARDENA property has access to an outdoor space, which could be private or shared.
- Yes
- ACCESSIBILITYHow a property has been adapted to meet the needs of vulnerable or disabled individuals.Read more about accessibility in our glossary page.
- Ask agent
Ferndale, Much Hadham, SG10
Add an important place to see how long it'd take to get there from our property listings.
__mins driving to your place
Get an instant, personalised result:
- Show sellers you’re serious
- Secure viewings faster with agents
- No impact on your credit score



Your mortgage
Notes
Staying secure when looking for property
Ensure you're up to date with our latest advice on how to avoid fraud or scams when looking for property online.
Visit our security centre to find out moreDisclaimer - Property reference 29496394. The information displayed about this property comprises a property advertisement. Rightmove.co.uk makes no warranty as to the accuracy or completeness of the advertisement or any linked or associated information, and Rightmove has no control over the content. This property advertisement does not constitute property particulars. The information is provided and maintained by Wright & Co, Sawbridgeworth. Please contact the selling agent or developer directly to obtain any information which may be available under the terms of The Energy Performance of Buildings (Certificates and Inspections) (England and Wales) Regulations 2007 or the Home Report if in relation to a residential property in Scotland.
*This is the average speed from the provider with the fastest broadband package available at this postcode. The average speed displayed is based on the download speeds of at least 50% of customers at peak time (8pm to 10pm). Fibre/cable services at the postcode are subject to availability and may differ between properties within a postcode. Speeds can be affected by a range of technical and environmental factors. The speed at the property may be lower than that listed above. You can check the estimated speed and confirm availability to a property prior to purchasing on the broadband provider's website. Providers may increase charges. The information is provided and maintained by Decision Technologies Limited. **This is indicative only and based on a 2-person household with multiple devices and simultaneous usage. Broadband performance is affected by multiple factors including number of occupants and devices, simultaneous usage, router range etc. For more information speak to your broadband provider.
Map data ©OpenStreetMap contributors.




