Alfreton Road, Nottingham, NG7 3NG
- SIZE
Ask agent
- SECTOR
Commercial property for sale
Key features
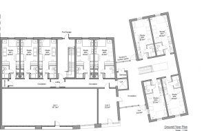
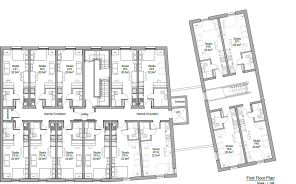
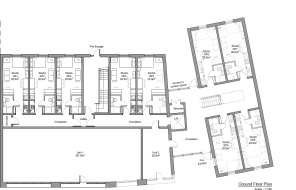
- 35 Bedroom Modern Aparthotel
- Prime Nottingham Canning Circus Spot
- Fully Electronic Guest Service Model
- Ground Floor Let Sans Patrie Restaurant
- Managed by Third-party Operator
- 9,687 sq ft Sole-owned Company Asset
- Net profit c. £337,525 p.a.
- Strong Demand from Mixed Clientele
Description
The ground floor is occupied by the well-established Sans Patrie Restaurant at £25,000 pa, a destination venue that adds vibrancy and enhances the visibility of the property. The apart-hotel itself is fully managed by an experienced third-party property management company, with all maintenance, housekeeping, and cleaning services outsourced and included within the management agreement. This arrangement creates a highly efficient and low-maintenance operational model, well-suited to investors seeking a hassle-free income stream.
Average daily room rates range from £55 to £99, with an additional £25 cleaning fee per stay. The business attracts a wide-ranging clientele, including students' families, corporate travellers, cultural visitors, and weekend leisure guests, all benefitting from the property's proximity to Nottingham city centre. After costs, the property generates a net profit of approximately £337,525 per annum.
This exceptional 35 room aparthotel represents a rare opportunity to acquire a high-performing hospitality asset in a prime location. Generating an impressive annual EBITDA of approximately £337,525, the property offers a strong net yield of 7.9% before purchaser's costs against the asking price of £4.25 million. With a gross turnover of circa £590,835 reflecting a robust gross yield of 13.9%, this investment combines consistent income generation with long-term growth potential.
The building extends to circa 9,687 sq ft (900 sq m) and is held within a single-asset company structure. Profits stated are adjusted for management charges to assist the operator but are not included in the transaction, offering a buyer the benefit of a clear and efficient acquisition.
Situated prominently at 6 Alfreton Road, within the sought-after Canning Circus district, Dwell City Living enjoys an excellent location at the edge of Nottingham's central core. Guests have easy access to the city centre's retail, business, and cultural amenities, with major venues such as the Motorpoint Arena, Nottingham Playhouse, and Theatre Royal all within walking distance. Nottingham's two universities, both of which are global institutions with over 65,000 students combined, also sit within easy reach, ensuring year-round demand from visiting families, academics, and students alike.
The location benefits from Nottingham's excellent transport infrastructure, including a mainline railway station with direct services to London St Pancras in under two hours, a well-connected tram and bus network, and East Midlands Airport located just 14 miles away. The wider Canning Circus area is a thriving leisure and residential quarter, home to an attractive mix of independent restaurants, bars, and cultural spots, ensuring strong footfall and sustained appeal to guests
Brochures
Alfreton Road, Nottingham, NG7 3NG
NEAREST STATIONS
Distances are straight line measurements from the centre of the postcode- Nottingham Trent University Tram Stop0.3 miles
- High School Tram Stop0.4 miles
- Royal Centre Tram Stop0.4 miles
Notes
Disclaimer - Property reference 711723. The information displayed about this property comprises a property advertisement. Rightmove.co.uk makes no warranty as to the accuracy or completeness of the advertisement or any linked or associated information, and Rightmove has no control over the content. This property advertisement does not constitute property particulars. The information is provided and maintained by Lester & Bingley Ltd, Mansfield. Please contact the selling agent or developer directly to obtain any information which may be available under the terms of The Energy Performance of Buildings (Certificates and Inspections) (England and Wales) Regulations 2007 or the Home Report if in relation to a residential property in Scotland.
Map data ©OpenStreetMap contributors.






