
Osborne House, Grosvenor Square, SO15

- PROPERTY TYPE
Flat
- BEDROOMS
2
- BATHROOMS
2
- SIZE
Ask agent
Key features
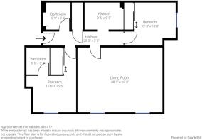
- Bright & Airy Top Floor Apartment (with lift)
- Large Reception/ Dinning Room (20ft approx.)
- Modern Kitchen
- Two Bedrooms
- Two Bathrooms
- Ample Storage
- Communal Gardens
- Garage
- Superb Central Location
- No Chain
Description
This South-oriented, notably larger than average bright two-bedroom apartment on the top floor (with lift) of a medium sized block in the ever-popular Bedford Place area, will also impress you for its strategic location; the bespoke shops and Bedford Place’s amenities just round the corner; City Centre and Above Bar only 10 minutes walking distance. Southampton Central train station is about 15 minutes walk away.
Presented in well cared for condition throughout, this smart property boasts a 20ft Lounge/Diner, two double bedrooms, modern kitchen, sizeable bathroom and en suite facilities to the master bedroom. This apartment is also being offered with a garage.
Viewing at the earliest is recommended, given that there is a tenant in-situ a min 24 hours advance notice is needed.
LEASEHOLD INFORMATION:
Leasehold Years remaining on lease; 990 apprrox.
Leasehold Annual Service Charge Amount £1,765 APPROX.
Leasehold Ground Rent Amount: Peppercorn
Council Tax Banding; C
(internal photos are not all of the most recent)
Material Information - Southampton - Tenure Type;
Leasehold Years remaining on lease; 990 apprrox.
Leasehold Annual Service Charge Amount £1,765 APPROX.
Leasehold Ground Rent Amount: Peppercorn
Council Tax Banding; C
Aml - Agents are required by law to conduct anti-money laundering checks on all those buying a property.
We outsource the initial checks to partner suppliers Coadjute who will contact you once you have had an offer accepted on a property you wish to buy.
The cost of these checks is £48inc vat per person. This is a non-refundable fee.
These charges cover the cost of obtaining relevant data, any manual checks and monitoring which might be required.
This fee will need to be paid and the checks completed in advance of the office issuing a memorandum of sale on the property you would like to buy.
Brochures
Osborne House, Grosvenor Square, SO15- COUNCIL TAXA payment made to your local authority in order to pay for local services like schools, libraries, and refuse collection. The amount you pay depends on the value of the property.Read more about council Tax in our glossary page.
- Band: C
- PARKINGDetails of how and where vehicles can be parked, and any associated costs.Read more about parking in our glossary page.
- Yes
- GARDENA property has access to an outdoor space, which could be private or shared.
- Ask agent
- ACCESSIBILITYHow a property has been adapted to meet the needs of vulnerable or disabled individuals.Read more about accessibility in our glossary page.
- Ask agent
Osborne House, Grosvenor Square, SO15
Add an important place to see how long it'd take to get there from our property listings.
__mins driving to your place
Get an instant, personalised result:
- Show sellers you’re serious
- Secure viewings faster with agents
- No impact on your credit score
Your mortgage
Notes
Staying secure when looking for property
Ensure you're up to date with our latest advice on how to avoid fraud or scams when looking for property online.
Visit our security centre to find out moreDisclaimer - Property reference 34164784. The information displayed about this property comprises a property advertisement. Rightmove.co.uk makes no warranty as to the accuracy or completeness of the advertisement or any linked or associated information, and Rightmove has no control over the content. This property advertisement does not constitute property particulars. The information is provided and maintained by Hunters, Southampton. Please contact the selling agent or developer directly to obtain any information which may be available under the terms of The Energy Performance of Buildings (Certificates and Inspections) (England and Wales) Regulations 2007 or the Home Report if in relation to a residential property in Scotland.
*This is the average speed from the provider with the fastest broadband package available at this postcode. The average speed displayed is based on the download speeds of at least 50% of customers at peak time (8pm to 10pm). Fibre/cable services at the postcode are subject to availability and may differ between properties within a postcode. Speeds can be affected by a range of technical and environmental factors. The speed at the property may be lower than that listed above. You can check the estimated speed and confirm availability to a property prior to purchasing on the broadband provider's website. Providers may increase charges. The information is provided and maintained by Decision Technologies Limited. **This is indicative only and based on a 2-person household with multiple devices and simultaneous usage. Broadband performance is affected by multiple factors including number of occupants and devices, simultaneous usage, router range etc. For more information speak to your broadband provider.
Map data ©OpenStreetMap contributors.





