2 bedroom apartment for sale
Arundel Mews, Southdowns Park, Haywards Heath, RH16 4SJ

- PROPERTY TYPE
Apartment
- BEDROOMS
2
- BATHROOMS
1
- SIZE
Ask agent
- TENUREDescribes how you own a property. There are different types of tenure - freehold, leasehold, and commonhold.Read more about tenure in our glossary page.
Ask agent
Key features
- Stunning Duplex Apartment
- Two Bedrooms
- Open Plan Living
- Allocated Parking Space
- Character Features
- Beautiful Communal Grounds
- REF MG1259
- Service Charge Includes Water Rates And Buildings Insurance
Description
REF MG1259
If you’re searching for a home that blends character, charm, and individuality, this beautiful mews house in Southdowns Park could be perfect. Tucked away in a peaceful corner of the development, 2 Arundel Mews forms part of just four homes, offering a more private and bespoke feel. The entrance is shared with only one neighbour, adding to the sense of exclusivity.
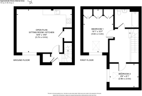
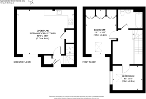
Inside, the ground floor features a sociable open-plan layout, with the kitchen flowing into the sitting room. The kitchen provides ample prep space, an induction hob, and room for appliances, while the sitting area overlooks a small courtyard, shared with the neighbouring property; the perfect pot for a cup of coffee. The duplex design gives a natural separation between living and sleeping areas. Upstairs, a vaulted ceiling and exposed beams create a striking first impression. A versatile landing area offers a cosy reading corner or an ideal home office space. The bathroom provides a stylish and modern contrast, finished with a boutique feel and clever overhead storage. Both bedrooms enjoy unique character windows, with the main bedroom further benefitting from built-in wardrobes.
Externally, the home includes an allocated parking bay close by, along with visitor parking permits. Residents of Southdowns Park also enjoy beautifully maintained communal gardens, seating areas, and a bookable barbecue area for private functions. The annual service charge conveniently covers water rates, building insurance, garden upkeep, gym membership, and contributions to the sinking fund. There is also a concierge service, excellent security, the St Francis Social Club with its bar, restaurant, and sports grounds, plus tennis courts. There is also an independently run indoor swimming pool available to residents on a pay-as-you-go basis.
Tenure - Leasehold
Length of Lease – 125 years from 1997 (97 Years Remaining)
Annual Ground Rent Amount - £150
Ground Rent Review Period - TBC
Annual Service Charge Amount - £2,520 to include: buildings insurance, water rates (approx £50 PM) gym membership, upkeep of the grounds and contribution towards the sinking fund
Service Charge Review Period (year/month)
Council Tax Band - D
- COUNCIL TAXA payment made to your local authority in order to pay for local services like schools, libraries, and refuse collection. The amount you pay depends on the value of the property.Read more about council Tax in our glossary page.
- Band: D
- PARKINGDetails of how and where vehicles can be parked, and any associated costs.Read more about parking in our glossary page.
- Allocated
- GARDENA property has access to an outdoor space, which could be private or shared.
- Ask agent
- ACCESSIBILITYHow a property has been adapted to meet the needs of vulnerable or disabled individuals.Read more about accessibility in our glossary page.
- Ask agent
Arundel Mews, Southdowns Park, Haywards Heath, RH16 4SJ
Add an important place to see how long it'd take to get there from our property listings.
__mins driving to your place
Get an instant, personalised result:
- Show sellers you’re serious
- Secure viewings faster with agents
- No impact on your credit score
Your mortgage
Notes
Staying secure when looking for property
Ensure you're up to date with our latest advice on how to avoid fraud or scams when looking for property online.
Visit our security centre to find out moreDisclaimer - Property reference S1442210. The information displayed about this property comprises a property advertisement. Rightmove.co.uk makes no warranty as to the accuracy or completeness of the advertisement or any linked or associated information, and Rightmove has no control over the content. This property advertisement does not constitute property particulars. The information is provided and maintained by eXp UK, South East. Please contact the selling agent or developer directly to obtain any information which may be available under the terms of The Energy Performance of Buildings (Certificates and Inspections) (England and Wales) Regulations 2007 or the Home Report if in relation to a residential property in Scotland.
*This is the average speed from the provider with the fastest broadband package available at this postcode. The average speed displayed is based on the download speeds of at least 50% of customers at peak time (8pm to 10pm). Fibre/cable services at the postcode are subject to availability and may differ between properties within a postcode. Speeds can be affected by a range of technical and environmental factors. The speed at the property may be lower than that listed above. You can check the estimated speed and confirm availability to a property prior to purchasing on the broadband provider's website. Providers may increase charges. The information is provided and maintained by Decision Technologies Limited. **This is indicative only and based on a 2-person household with multiple devices and simultaneous usage. Broadband performance is affected by multiple factors including number of occupants and devices, simultaneous usage, router range etc. For more information speak to your broadband provider.
Map data ©OpenStreetMap contributors.




