Land Adjacent 2, Warrington Street, Stoke-on-Trent. ST4 3LF
- PROPERTY TYPE
Land
- BEDROOMS
2
- BATHROOMS
1
- SIZE
Ask agent
Key features
- Permission for the development of 2 semi detached dwellings
- Planning reference 71991/FUL
- Large open plan living area
- Guest cloakroom
- Separate study/office/playroom/hobby room
- Off-street parking
- Enclosed rear garden
Description
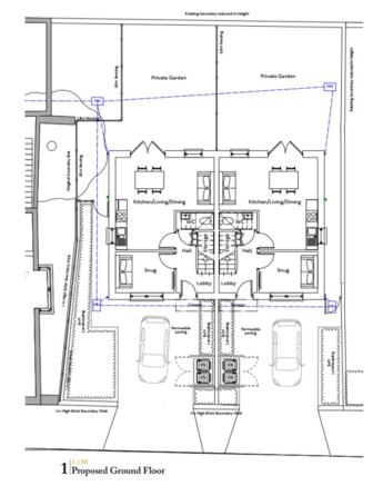
The development opportunity has planning approval granted for the construction of:
2 x 2-bedroom semi detached houses set over two floors
Each property consists of:
- Open Plan Kitchen/Living/Dining Room
- Study/Office/Play Room
- Guest Cloakroom
- Two Bedrooms
- Main Bathroom
- Rear Garden
- Off Road Parking
The site is set in the residential district of Fenton with local amenities close by.
This opportunity is ideal for a small to medium sized builder/developer looking to start their next project.
The site can be inspected from the Public Highway and further particulars can be viewed on the Stoke on Trent Planning Portal, planning reference 71991/FUL
Tenure: Freehold
Brochures
BrochureLand Adjacent 2, Warrington Street, Stoke-on-Trent. ST4 3LF
NEAREST STATIONS
Distances are straight line measurements from the centre of the postcode- Longton Station1.1 miles
- Stoke-on-Trent Station1.2 miles
- Wedgwood Station3.4 miles
About Mark Buxton Estate Agents, Newcastle Under Lyme
Brampton House, 10 Queen Street, Newcastle Under Lyme, ST5 1ED

Notes
Disclaimer - Property reference RS0334. The information displayed about this property comprises a property advertisement. Rightmove.co.uk makes no warranty as to the accuracy or completeness of the advertisement or any linked or associated information, and Rightmove has no control over the content. This property advertisement does not constitute property particulars. The information is provided and maintained by Mark Buxton Estate Agents, Newcastle Under Lyme. Please contact the selling agent or developer directly to obtain any information which may be available under the terms of The Energy Performance of Buildings (Certificates and Inspections) (England and Wales) Regulations 2007 or the Home Report if in relation to a residential property in Scotland.
Map data ©OpenStreetMap contributors.





