3 bedroom semi-detached house for sale
Western Avenue, Port Talbot, SA12 7NB

- PROPERTY TYPE
Semi-Detached
- BEDROOMS
3
- BATHROOMS
2
- SIZE
Ask agent
- TENUREDescribes how you own a property. There are different types of tenure - freehold, leasehold, and commonhold.Read more about tenure in our glossary page.
Freehold
Key features
- Perfect Family Home
- Great Location
- Semi-Detached Property
- Three Good Size Bedrooms
- New Kitchen
- New Bathrooms
- Recently Fitted Roof & Electrics
- Conservatory
- Parking For Several Vehicles
- Walking Distance To The Beach
Description
This delightful three-bedroom, semi-detached property is situated in the heart of the popular residential area of Sandfields. The home is ideally situated within close proximity of schools, local shops, and is within walking distance of Aberavon beach. The property has been modernised by the current owners and is complete with a brand new kitchen, downstairs cloakroom and family bathroom. The property further benefits from a recently fitted roof, electrics, and boiler. On the ground floor there's a bright open-plan lounge that leads to the kitchen/dining room. The rooms are complete with a newly installed double-sided wood-burning stove that brings both areas together and gives the space a warm and inviting feeling. French doors lead from the dining area to the spacious conservatory with a door to the side. The utility room, newly fitted cloakroom, and storage make up the rest of the ground floor. On the first floor there are three good-sized bedrooms. Bedroom one has fitted wardrobes and two windows to the front aspect. Bedrooms two and three are both located at the rear of the property. The newly fitted family bathroom and storage make up the rest of the first floor. Outside to the rear is a spacious garden with both grass and decked areas making it perfect for family life and entertaining. There is an exterior shower which is handy for cleaning off after those long walks on the beach. Side access leads to the resin-laid driveway at the front that offers parking for several vehicles. Viewings come highly recommended to fully appreciate this beautiful family home and all it has to offer.
It is essential to quote reference LD0533 when enquiring about the property.
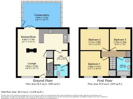
Ground Floor
Lounge 5.02 x3.23m
Kitchen/Dining Room 6.58 x 3.10m
Conservatory 4.90 x 3.22m
Utility Room 1.80 x 1.77
W/C
First Floor
Bedroom One 3.99 x3.27m
Bedroom Two 3.71 x 2.66m
Bedroom Three 2.75 x 2.36m
Family Bathroom 2.75 x 2.36m
It is essential to quote reference LD0533 when enquiring about the property.
- COUNCIL TAXA payment made to your local authority in order to pay for local services like schools, libraries, and refuse collection. The amount you pay depends on the value of the property.Read more about council Tax in our glossary page.
- Band: B
- PARKINGDetails of how and where vehicles can be parked, and any associated costs.Read more about parking in our glossary page.
- Driveway
- GARDENA property has access to an outdoor space, which could be private or shared.
- Private garden
- ACCESSIBILITYHow a property has been adapted to meet the needs of vulnerable or disabled individuals.Read more about accessibility in our glossary page.
- Ask agent
Western Avenue, Port Talbot, SA12 7NB
Add an important place to see how long it'd take to get there from our property listings.
__mins driving to your place
Get an instant, personalised result:
- Show sellers you’re serious
- Secure viewings faster with agents
- No impact on your credit score
Your mortgage
Notes
Staying secure when looking for property
Ensure you're up to date with our latest advice on how to avoid fraud or scams when looking for property online.
Visit our security centre to find out moreDisclaimer - Property reference S1443249. The information displayed about this property comprises a property advertisement. Rightmove.co.uk makes no warranty as to the accuracy or completeness of the advertisement or any linked or associated information, and Rightmove has no control over the content. This property advertisement does not constitute property particulars. The information is provided and maintained by eXp UK, Wales. Please contact the selling agent or developer directly to obtain any information which may be available under the terms of The Energy Performance of Buildings (Certificates and Inspections) (England and Wales) Regulations 2007 or the Home Report if in relation to a residential property in Scotland.
*This is the average speed from the provider with the fastest broadband package available at this postcode. The average speed displayed is based on the download speeds of at least 50% of customers at peak time (8pm to 10pm). Fibre/cable services at the postcode are subject to availability and may differ between properties within a postcode. Speeds can be affected by a range of technical and environmental factors. The speed at the property may be lower than that listed above. You can check the estimated speed and confirm availability to a property prior to purchasing on the broadband provider's website. Providers may increase charges. The information is provided and maintained by Decision Technologies Limited. **This is indicative only and based on a 2-person household with multiple devices and simultaneous usage. Broadband performance is affected by multiple factors including number of occupants and devices, simultaneous usage, router range etc. For more information speak to your broadband provider.
Map data ©OpenStreetMap contributors.




