
Tring Gardens, Harold Hill, Romford, RM3 9ES

- PROPERTY TYPE
- Semi-Detached 
- BEDROOMS
- 3 
- SIZE
- Ask developer 
- TENUREDescribes how you own a property. There are different types of tenure - freehold, leasehold, and commonhold.Read more about tenure in our glossary page.
- Freehold 
Key features
- Up to 5% deposit paid with us^
- Brand new and chain free
- Open plan kitchen and dining area
- French doors to the rear garden
- Integrated single oven and gas hob
- Dual-aspect living room
- En suite to bedroom 1
- Solar panels and electric vehicle charging point
- Rated a 5 Star HBF Builder in 2025 - over 90% of our customers would recommend us to a friend
- 10-year NHBC Buildmark policy^
Description
Plot 61 (The Blemmere) - priced at £565,000
Save up to 5% on your deposit and be in your dream home for Christmas. Reserve today to save thousands on your deposit, and you could be settling into your new home for Christmas. The countdown is on, so speak with a sales advisor to find out more. Available on selected plots only. Terms and conditions apply.
About the Home
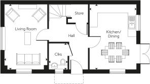
A characterful and charming 3-bedroom home, The Blemmere’s appeal is in its details. With two double bedrooms, it makes the ideal home for first-time buyers, couples and young families, or downsizers who have regular overnight guests.
From the entrance hallway, you are drawn into the cosy living room which lends itself to a multitude of layouts. Along the hallway, the open-plan kitchen and dining area has a dual aspect, which fills the space with light and gives it a distinct ‘heart of the home’ feel. The attractive L-shaped kitchen design is ideal for entertaining guests and keeping an eye on younger family members while you cook, and the French doors leading out to the rear garden offer delightful views from the dining table.
Two useful storage cupboards are found in the hallway to help keep the home tidy and organised, and a cloakroom is conveniently located between the living room and kitchen and dining area.
Upstairs in The Blemmere, bedroom 1 and its en-suite shower room occupy one side of the home, affording the space peace and privacy. There is also a storage cupboard opening into the bedroom. Across the landing are the second and third bedrooms; bedroom 2 is double in size, while the bright, dual-aspect bedroom 3 would be perfect for a nursery, occasional guest room, or a home office. Both bedrooms share use of the family bathroom.
Additional information
- Estate Management Charge: £369.37
- Internal Area: 1010 sq. ft.
- Annual service charge: None
- Council tax band: TBC
- Tenure: Freehold
The additional information provided for council tax, service charges and ground rents (where applicable) is only an estimation. Please check with your Sales Advisor for more specific details.
About the Development
A development of new homes in Harold Hill, situated next to Central Park and The Manor Nature Reserve, yet close to local shopping and amenities. This collection of 2 and 3-bedroom homes will appeal to a range of prospective purchasers, including first-time buyers, families and professionals commuting to London.
Register your interest of our properties in Romford today!
At Bellway we have always built attractive and desirable new homes. That's why we've become one of the five largest builders in Britain. But now there's even more reason to choose a Bellway home.
To make the whole process of selling and buying easier, we've put together a range of services to make your move as hassle free as possible.
"We have a home to sell"
Sell your home quicker with no estate agent fees.^
Our Intermediate Management Agent will work with a local estate agent to market your home at an agreed price.
You could soon be moving into your new dream home, start your journey with us today.
Looking for a low-cost mortgage solution? With Own New or Deposit Unlock, you could either lower your monthly repayment costs or your initial deposit amount – making that move to a brand-new home more affordable. Just speak with a sales advisor at this development to find out more.
Our sales centre is open for drop-in visits.
Should you wish to have dedicated time with our Sales Advisor, please book an appointment before visiting us.
Sales office opening hours
Monday 10:00 - 17:00
Tuesday closed
Wednesday closed
Thursday 10:00 - 17:00
Friday 10:00 - 17:00
Saturday 10:00 - 17:00
Sunday 10:00 - 17:00
^All offers apply to specific plots and selected developments only. Terms and conditions apply. Contact your Bellway sales advisor to find out more or see terms and conditions on our Bellway website. Express Mover and Part Exchange scheme offers are subject to status, availability and eligibility. Bellway reserve the right to refuse a Part Exchange. Any promoted offer is subject to contract. 10-year NHBC Buildmark policy. This includes deposit protection from exchange of contracts, a two-year builder warranty from legal completion, and then eight years of structural defects insurance cover.*
- COUNCIL TAXA payment made to your local authority in order to pay for local services like schools, libraries, and refuse collection. The amount you pay depends on the value of the property.Read more about council Tax in our glossary page.
- Band: TBC
- PARKINGDetails of how and where vehicles can be parked, and any associated costs.Read more about parking in our glossary page.
- Ask developer
- GARDENA property has access to an outdoor space, which could be private or shared.
- Yes
- ACCESSIBILITYHow a property has been adapted to meet the needs of vulnerable or disabled individuals.Read more about accessibility in our glossary page.
- Ask developer
Energy performance certificate - ask developer
- 1, 2 and 3-bedroom homes
- Parking to all homes
- Well-regarded schools locally
- Five minutes' walk to Central Park
Tring Gardens, Harold Hill, Romford, RM3 9ES
Add an important place to see how long it'd take to get there from our property listings.
__mins driving to your place
Get an instant, personalised result:
- Show sellers you’re serious
- Secure viewings faster with agents
- No impact on your credit score
About Bellway Homes (Thames Gateway)
A REPUTATION YOU CAN RELY ON
Over 75 years of great homes and great service
When it comes to buying your new home it is reassuring to know that you are dealing with one of the most successful companies in the country, with a reputation built on designing and creating fine houses and apartments nationwide backed up with one of the industry’s best after-care services.
In 1946 John and Russell Bell, newly demobbed, joined their father John T. Bell in a small family owned housebuilding business in Newcastle upon Tyne. From the very beginning John T. Bell & Sons, as the new company was called, were determined to break the mould. In the early 1950s Kenneth Bell joined his brothers in the company and new approaches to design layout and finishes were developed. In 1963 John T. Bell & Sons became part of the public corporate scene and the name Bellway evolved.
Continuing growth
Today Bellway is one of Britain’s largest house building companies and is continuing to grow throughout the country. Since its formation, Bellway has built and sold over 100,000 homes catering for first time buyers to more seasoned home buyers and their families. The Group’s rapid growth has turned Bellway into a multi-million pound company, employing over 2,000 people directly and many more sub-contractors. From its original base in Newcastle upon Tyne the Group has expanded in to all regions of the country and is now poised for further growth.
Our homes are designed, built and marketed by local teams operating from regional offices managed and staffed by local people. This allows the company to stay close to its customers and take key decisions about design, build, materials, planning and marketing in response to local and not national demands. A simple point, but one which we believe distinguishes Bellway.
10 Years NHBC Warranty
Your mortgage
Notes
Staying secure when looking for property
Ensure you're up to date with our latest advice on how to avoid fraud or scams when looking for property online.
Visit our security centre to find out moreDisclaimer - Property reference 3_61. The information displayed about this property comprises a property advertisement. Rightmove.co.uk makes no warranty as to the accuracy or completeness of the advertisement or any linked or associated information, and Rightmove has no control over the content. This property advertisement does not constitute property particulars. The information is provided and maintained by Bellway Homes (Thames Gateway). Please contact the selling agent or developer directly to obtain any information which may be available under the terms of The Energy Performance of Buildings (Certificates and Inspections) (England and Wales) Regulations 2007 or the Home Report if in relation to a residential property in Scotland.
*This is the average speed from the provider with the fastest broadband package available at this postcode. The average speed displayed is based on the download speeds of at least 50% of customers at peak time (8pm to 10pm). Fibre/cable services at the postcode are subject to availability and may differ between properties within a postcode. Speeds can be affected by a range of technical and environmental factors. The speed at the property may be lower than that listed above. You can check the estimated speed and confirm availability to a property prior to purchasing on the broadband provider's website. Providers may increase charges. The information is provided and maintained by Decision Technologies Limited. **This is indicative only and based on a 2-person household with multiple devices and simultaneous usage. Broadband performance is affected by multiple factors including number of occupants and devices, simultaneous usage, router range etc. For more information speak to your broadband provider.
Map data ©OpenStreetMap contributors.






