
Luard Road, Cambridge, Cambridgeshire

- PROPERTY TYPE
Detached
- BEDROOMS
4
- BATHROOMS
4
- SIZE
Ask agent
- TENUREDescribes how you own a property. There are different types of tenure - freehold, leasehold, and commonhold.Read more about tenure in our glossary page.
Freehold
Key features
- Development opportunity
- 0.206 acres (0.08 hectares) south facing site
- Planning permission in place
- South city location
Description
City Centre 1.75 miles, Mainline Railway Station, (King's Cross and Liverpool Street lines) 1 mile, Addenbrooke's Hospital/Biomedical Campus 1 mile, M11 (junction 11) 2.5 miles, (distances are approximate).
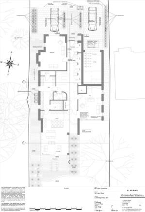
The site currently consists of a detached home set in grounds of 0.206 acres (0.08 hectares) with the benefit of detailed planning consent for the demolition of the existing dwelling and construction of a substantial, detached 2.5 storey dwelling with basement and a total gross internal area circa 6,652 sq ft (618 sq m) including the garage and any floor area with a ceiling height over 1.5m.
Luard Road is one of the most highly regarded roads in the city and characterised by impressive, detached houses in large gardens. Situated about 1.75 miles south of the city centre, number 22 is conveniently placed for access to Addenbrooke's Hospital/Biomedical Campus, which is planned to be one of the largest centres of health, science and medical research in the world.
The city's mainline railway station is within about 1 mile and provides services to London's King's Cross and Liverpool Street in about 52 minutes and 67 minutes respectively. There are a number of state and independent schools within half a mile of the property, including The Perse School on Hills Road. Hills Road and Long Road Sixth Form Colleges are also close by with the former being at the top of the performance leagues for a number of years.
Numerous leisure and sporting facilities are within close walking or cycling distance including Hills Road Sports Centre, providing indoor and outdoor tennis courts, gym etc., together with Cambridge Leisure, a complex to the north of Cherry Hinton Road which has a number of cafes, bars, hotel, supermarkets, ten-pin bowling and cinema.
Brochures
Particulars- COUNCIL TAXA payment made to your local authority in order to pay for local services like schools, libraries, and refuse collection. The amount you pay depends on the value of the property.Read more about council Tax in our glossary page.
- Band: G
- PARKINGDetails of how and where vehicles can be parked, and any associated costs.Read more about parking in our glossary page.
- Yes
- GARDENA property has access to an outdoor space, which could be private or shared.
- Yes
- ACCESSIBILITYHow a property has been adapted to meet the needs of vulnerable or disabled individuals.Read more about accessibility in our glossary page.
- Ask agent
Energy performance certificate - ask agent
Luard Road, Cambridge, Cambridgeshire
Add an important place to see how long it'd take to get there from our property listings.
__mins driving to your place
Get an instant, personalised result:
- Show sellers you’re serious
- Secure viewings faster with agents
- No impact on your credit score
Your mortgage
Notes
Staying secure when looking for property
Ensure you're up to date with our latest advice on how to avoid fraud or scams when looking for property online.
Visit our security centre to find out moreDisclaimer - Property reference CAM240446. The information displayed about this property comprises a property advertisement. Rightmove.co.uk makes no warranty as to the accuracy or completeness of the advertisement or any linked or associated information, and Rightmove has no control over the content. This property advertisement does not constitute property particulars. The information is provided and maintained by Bidwells, Cambridge. Please contact the selling agent or developer directly to obtain any information which may be available under the terms of The Energy Performance of Buildings (Certificates and Inspections) (England and Wales) Regulations 2007 or the Home Report if in relation to a residential property in Scotland.
*This is the average speed from the provider with the fastest broadband package available at this postcode. The average speed displayed is based on the download speeds of at least 50% of customers at peak time (8pm to 10pm). Fibre/cable services at the postcode are subject to availability and may differ between properties within a postcode. Speeds can be affected by a range of technical and environmental factors. The speed at the property may be lower than that listed above. You can check the estimated speed and confirm availability to a property prior to purchasing on the broadband provider's website. Providers may increase charges. The information is provided and maintained by Decision Technologies Limited. **This is indicative only and based on a 2-person household with multiple devices and simultaneous usage. Broadband performance is affected by multiple factors including number of occupants and devices, simultaneous usage, router range etc. For more information speak to your broadband provider.
Map data ©OpenStreetMap contributors.