London Road, King's Lynn, Norfolk, PE30 5EU

- PROPERTY TYPE
Town House
- BEDROOMS
5
- BATHROOMS
2
- SIZE
Ask agent
- TENUREDescribes how you own a property. There are different types of tenure - freehold, leasehold, and commonhold.Read more about tenure in our glossary page.
Freehold
Key features
- Being sold via Secure Sale online bidding. Terms & Conditions apply.
- PERIOD FEATURES THROUGHOUT
- SPACIOUS KITCHEN DINER
- FIVE SPACIOUS BEDROOMS
- BARN TO THE REAR OF PROPERTY
- GRADE II LISTED
- VERY WELL PRESENTED
- TWO RECEPTION ROOMS
- RESTORED BY PRESERVATION TRUST 2014
- FRONT AND REAR GARDENS
Description
WELL PRESENTED AND SPACIOUS FIVE BEDROOM THREE STOREY HOUSE. GRADE II WITH PERIOD FEATURES THROUGHOUT.
Council Tax Band: C
Tenure: Freehold
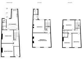
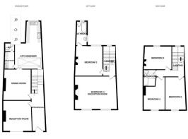
Entrance Hallway
9.75m x 2.06m (32'0 x 6'9) - Spacious with wooden flooring, feature period arch with stairs to first floor, meter cupboard, under stairs storage cupboard and a double radiator.
Cloakroom
Comprising of a wall mounted hand wash basin, W.C, and a wall mounted Worchester gas boiler. Tiled floor. Double Radiator.
Dining Room
4.65m x 4.24m (15'3 x 13'11) - Wooden flooring, picture rail, French doors leading into kitchen diner. Double radiator.
Living Room
4.80m x 4.70m (15'9 x 15'5) - Wooden floor, wood burning stove with decorative wooden surround and tiled hearth. Recessed feature shelving unit. Picture rail and period style coving. Double radiator with decorative radiator cover. Large sash window to the front aspect with internal shutters.
Kitchen/Diner
7.70m x 4.06m (25'3 x 13'4) - Range of base, wall and drawer units with worktop over. Stainless steel sink with mixer tap over, integrated electric oven and hob with extractor hob over. Space for American fridge freezer and a family dining table. Large roof light with opening windows. Window and French doors to the rear aspect. Double radiator.
Utility Room
2.69m x 1.70m (8'10 x 5'7 ) - Base units with worktop over. Space for washing machine and tumble dryer. Stainless steel sink with tiled splash back. Tiled floor. Recessed shelving unit.
Bathroom
Three piece suite comprising of a pedestal hand wash basin, W.C and bath with electric shower over. Vinyl flooring. Extractor fan and heated towel rail.
Bedroom 1
4.70m x 4.19m (15'5 x 13'9) - Fitted carpet, picture rail, period coving and a sash window to the rear aspect. Door leading to ensuite.
Ensuite
Vinyl flooring, pedestal hand wash basin, W.C, bath with electric shower over. Obscured window to rear and side aspect. Extractor Fan.
Bedroom Five / Reception Room
6.40m x 5.03m (21'0 x 16'6) - Fitted carpet, marble fireplace surround with decorative fireplace, original decorative coving and picture rail. Two large sash windows fitted with shutters. Double radiator.
Bedroom 2
5.21m x 3.20m (17'1 x 10'6) - Fitted carpet, sash window to the front aspect and a double radiator.
Bedroom 3
4.60m x 3.40m (15'1 x 11'2) - Fitted carpet, sash window to the front aspect and a double radiator.
Bedroom 4
4.29m x 3.71m (14'1 x 12'2) - Fitted carpet, sash window to the rear aspect, decorative original feature fireplace and a double radiator.
Rear Garden
Walled garden mainly laid to lawn. Sheltered patio area. Two outhouses.
Front Garden
Laid to decorative gravel and box hedging. Wrought iron railings.
Barn
Two storey barn with cobbled floor, double doors, ladder to the first floor. Access to rear garden. Double doors to John Street.
Auctioneers Additional Comments
Pattinson Auction are referred to below as The Auctioneer. This auction lot is being sold under either conditional (Modern) or unconditional (Traditional) auction terms and overseen by the auctioneer. The property is available to view strictly by appointment only via any Marketing Agent or The Auctioneer. Please be aware that any enquiry, bid or viewing of the subject property will require your details being shared between any marketing agent and The Auctioneer so that all matters can be dealt with effectively. The property is being sold via a transparent online auction. To submit a bid on any property marketed by The Auctioneer, all bidders buyers must adhere to a verification of identity process in line with Anti Money Laundering procedures. Bids can be submitted at any time and from anywhere. Our verification process is in place to ensure AML procedures are carried out in accordance with the law
Auctioneers Additional Comments
The advertised price is commonly referred to as a Starting Bid or Guide Price and is accompanied by a Reserve Price. The Reserve Price is confidential to the seller and the auctioneer and will typically be within a range above or below 10% of the Guide Price , Starting Bid. These prices are subject to change. An auction can be closed at any time with the auctioneer permitting for the property (the lot) to be sold prior to the end of the auction. A Legal Pack associated with this particular property is available to view upon request and contains details relevant to the legal documentation enabling all interested parties to make an informed decision prior to bidding. The Legal Pack will also outline the buyers obligations and sellers commitments. It is strongly advised that you seek the counsel of a solicitor prior to proceeding with any property and/or Land Title purchase.
Auctioneers Additional Comments
In order to secure the property and ensure commitment from the seller, upon exchange of contracts, the successful bidder will be expected to pay a non-refundable deposit equivalent to 5% of the purchase price. The deposit will form part of the purchase price. A non-refundable reservation fee of up to 6% inc VAT (Subject to a minimum fee which could be up to 7,200 inc VAT) is also payable upon agreement of sale. The Reservation Fee is in addition to the agreed purchase price, and consideration should be given by the purchaser to any Stamp Duty Land Tax liability associated with the overall purchase costs. Both the Marketing Agent and the Auctioneer may consider it necessary or beneficial to pass customer details to third-party service suppliers, from whom a referral fee may be received. There is no requirement or obligation to use any recommended suppliers or services.
Brochures
Brochure- COUNCIL TAXA payment made to your local authority in order to pay for local services like schools, libraries, and refuse collection. The amount you pay depends on the value of the property.Read more about council Tax in our glossary page.
- Band: C
- LISTED PROPERTYA property designated as being of architectural or historical interest, with additional obligations imposed upon the owner.Read more about listed properties in our glossary page.
- Listed
- PARKINGDetails of how and where vehicles can be parked, and any associated costs.Read more about parking in our glossary page.
- No parking
- GARDENA property has access to an outdoor space, which could be private or shared.
- Yes
- ACCESSIBILITYHow a property has been adapted to meet the needs of vulnerable or disabled individuals.Read more about accessibility in our glossary page.
- Ask agent
Energy performance certificate - ask agent
London Road, King's Lynn, Norfolk, PE30 5EU
Add an important place to see how long it'd take to get there from our property listings.
__mins driving to your place
Get an instant, personalised result:
- Show sellers you’re serious
- Secure viewings faster with agents
- No impact on your credit score

Affordability
Notes
Staying secure when looking for property
Ensure you're up to date with our latest advice on how to avoid fraud or scams when looking for property online.
Visit our security centre to find out moreDisclaimer - Property reference 492657. The information displayed about this property comprises a property advertisement. Rightmove.co.uk makes no warranty as to the accuracy or completeness of the advertisement or any linked or associated information, and Rightmove has no control over the content. This property advertisement does not constitute property particulars. The information is provided and maintained by Pattinson Estate Agents, Auction. Please contact the selling agent or developer directly to obtain any information which may be available under the terms of The Energy Performance of Buildings (Certificates and Inspections) (England and Wales) Regulations 2007 or the Home Report if in relation to a residential property in Scotland.
Auction Fees: The purchase of this property may include associated fees not listed here, as it is to be sold via auction. To find out more about the fees associated with this property please call Pattinson Estate Agents, Auction on 0191 625 0242.
*Guide Price: An indication of a seller's minimum expectation at auction and given as a Guide Price or a range of Guide Prices. This is not necessarily the figure a property will sell for and is subject to change prior to the auction.
Reserve Price: Each auction property will be subject to a Reserve Price below which the property cannot be sold at auction. Normally the Reserve Price will be set within the range of Guide Prices or no more than 10% above a single Guide Price.
*This is the average speed from the provider with the fastest broadband package available at this postcode. The average speed displayed is based on the download speeds of at least 50% of customers at peak time (8pm to 10pm). Fibre/cable services at the postcode are subject to availability and may differ between properties within a postcode. Speeds can be affected by a range of technical and environmental factors. The speed at the property may be lower than that listed above. You can check the estimated speed and confirm availability to a property prior to purchasing on the broadband provider's website. Providers may increase charges. The information is provided and maintained by Decision Technologies Limited. **This is indicative only and based on a 2-person household with multiple devices and simultaneous usage. Broadband performance is affected by multiple factors including number of occupants and devices, simultaneous usage, router range etc. For more information speak to your broadband provider.
Map data ©OpenStreetMap contributors.




