4 bedroom detached house for sale
Foxhole Lane, Hawkhurst, Cranbrook, Kent, TN18

- PROPERTY TYPE
Detached
- BEDROOMS
4
- BATHROOMS
2
- SIZE
Ask agent
- TENUREDescribes how you own a property. There are different types of tenure - freehold, leasehold, and commonhold.Read more about tenure in our glossary page.
Freehold
Key features
- Beautifully converted Barn
- Spacious accommodation
- Far reaching views
- 4/5 Bedrooms
- 3/4 Reception Rooms
- Peaceful and tranquill setting
- Cranbrook School Catchment Area
Description
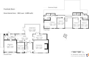
Foxhole Barn is believed to date from the 18th century and was sympathetically converted to a residential dwelling in the mid-1980s, retaining many original features, and extended by the current owner about 7 years ago. Today it is an impressive family home, offering spacious accommodation set across two floors, set amid circa 0.7 acres of mature gardens and grounds. The property is approached along a private driveway to arrive at a spacious area of parking adjacent to the property.
To the ground floor is a vaulted entrance hall with an oak staircase to the first floor, kitchen, formal dining room, garden room with space for informal dining, sitting room (potential additional bedroom), drawing room, home office, cloak room and boot room/utility. On the first floor is a master bedroom with dressing area and en suite bathroom, three further double bedrooms and family bathroom.
Outside, the gardens are well maintained and offer areas of interest for all the family. There is an expanse of lawn immediately adjacent at the rear of the house, bordered by seasonal planted borders and a wooden summer house perfectly placed in an elevated position in which to enjoy views across the main garden. Steps lead to an additional area of lawn, and there are apple and crab apple trees all bordered by fencing. To the front is a fully hedged rose garden with paved pathways and areas of grass, an area of covered seating under a pergola and access to a garden shed and greenhouse.
Foxhole Barn and its gardens have been lovingly and beautifully maintained over the last 32 years by the current owner.
FEATURES
- Spacious vaulted entrance hall with full height glazed windows allowing the space to be flooded with light, reclaimed oak staircase to the first floor
- Kitchen with part-vaulted ceiling, terracotta floor tiles and fitted with painted solid oak wall and base units, granite worktops, oil fired 2 oven Aga with electric companion system for cooking, double bowl sink, integrated fridge and space for dishwasher, open plan to the garden room.
- Garden room with space for informal dining and relaxing, enjoying views over the garden, French doors to garden terrace
- Formal dining room with views to the front
- Sitting room with built in storage cupboards and views to the front, potential for use as an additional bedroom
- Drawing room with grand inglenook fireplace and a wood burning stove
- Home office with fitted shelving
- Utility/rear boot room with space for washing machine and fridge freezer, storage cupboards, part glazed door leading to garden and door to cloakroom with vanity unit comprising basin, WC and storage cupboard
- First floor landing overlooking the entrance hall, kitchen and garden room
- Master bedroom enjoying dual aspect views, vaulted ceiling, Juliette balcony, dressing area with built in wardrobes, en suite bathroom with freestanding bath, walk-in shower, wall hung basin, WC, heated towel rail and electric under floor heating
- Three further double bedrooms, all with built in wardrobes
- Family bathroom with walk in shower, vanity basin, WC and storage cupboards, space for tumble dryer
Foxhole Barn is located in a peaceful and tranquil setting in the Weald of Kent, surrounded by farmland and enjoying rural views; the location is truly idyllic. It is a short drive to central Benenden, as well as close proximity to Sandhurst and Hawkhurst, the latter of which offers every day conveniences including Tesco and Waitrose supermarkets, plus the independent Kino cinema and a BP garage with EV charging points.
Benenden village provides a village shop, post office, a hairdresser and the renowned Bull Inn & Restaurant. The market towns of Cranbrook and Tenterden offer a more comprehensive selection of shops and restaurants.
There are a wealth of leisure facilities and tourist attractions nearby including Hemsted and Bedgebury Forests, Chart Hills, Dale Hill and Tenterden Golf Clubs, Sissinghurst, Bodiam and Scotney Castles (National Trust) and Bewl Water Reservoir. Numerous public footpaths and bridleways nearby give access to miles of open countryside.
A number of schools in the area cater for all age groups in both the private and state sectors, such as Dulwich Preparatory in Cranbrook and Saint Ronan's in Hawkhurst, Benenden Girls School and Claremont Senior School in Bodiam. Foxhole Barn is located in the catchment area for the much sought after Cranbrook School.
Commuter services can be found at Staplehurst to London Bridge, Cannon Street and Charing Cross stations in about an hour, as well as services to Ashford International for the high-speed service to St. Pancras from 37 minutes.
The A21 gives access to national road networks linking to Gatwick, Heathrow and Stansted airports, coastal ports of Dover and Folkestone, as well as the Channel Tunnel at Folkestone for links to the continent.
Benenden 2.8 miles
Cranbrook School 4 miles
Etchingham Station 6.8 miles
Staplehurst Station 9.6 miles
A21 5.1 miles
(All distances are approximate)
Brochures
Particulars- COUNCIL TAXA payment made to your local authority in order to pay for local services like schools, libraries, and refuse collection. The amount you pay depends on the value of the property.Read more about council Tax in our glossary page.
- Band: G
- PARKINGDetails of how and where vehicles can be parked, and any associated costs.Read more about parking in our glossary page.
- Yes
- GARDENA property has access to an outdoor space, which could be private or shared.
- Yes
- ACCESSIBILITYHow a property has been adapted to meet the needs of vulnerable or disabled individuals.Read more about accessibility in our glossary page.
- Ask agent
Foxhole Lane, Hawkhurst, Cranbrook, Kent, TN18
Add an important place to see how long it'd take to get there from our property listings.
__mins driving to your place
Get an instant, personalised result:
- Show sellers you’re serious
- Secure viewings faster with agents
- No impact on your credit score
Your mortgage
Notes
Staying secure when looking for property
Ensure you're up to date with our latest advice on how to avoid fraud or scams when looking for property online.
Visit our security centre to find out moreDisclaimer - Property reference CRA250137. The information displayed about this property comprises a property advertisement. Rightmove.co.uk makes no warranty as to the accuracy or completeness of the advertisement or any linked or associated information, and Rightmove has no control over the content. This property advertisement does not constitute property particulars. The information is provided and maintained by Jackson-Stops, Kent And East Sussex. Please contact the selling agent or developer directly to obtain any information which may be available under the terms of The Energy Performance of Buildings (Certificates and Inspections) (England and Wales) Regulations 2007 or the Home Report if in relation to a residential property in Scotland.
*This is the average speed from the provider with the fastest broadband package available at this postcode. The average speed displayed is based on the download speeds of at least 50% of customers at peak time (8pm to 10pm). Fibre/cable services at the postcode are subject to availability and may differ between properties within a postcode. Speeds can be affected by a range of technical and environmental factors. The speed at the property may be lower than that listed above. You can check the estimated speed and confirm availability to a property prior to purchasing on the broadband provider's website. Providers may increase charges. The information is provided and maintained by Decision Technologies Limited. **This is indicative only and based on a 2-person household with multiple devices and simultaneous usage. Broadband performance is affected by multiple factors including number of occupants and devices, simultaneous usage, router range etc. For more information speak to your broadband provider.
Map data ©OpenStreetMap contributors.




