156 Mugdock Road, Milngavie, G62 8NE

- PROPERTY TYPE
Semi-Detached
- BEDROOMS
4
- BATHROOMS
2
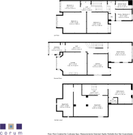
- SIZE
1,593 sq ft
148 sq m
- TENUREDescribes how you own a property. There are different types of tenure - freehold, leasehold, and commonhold.Read more about tenure in our glossary page.
Freehold
Description
Property Description
Set within the highly coveted Tannoch district of Milngavie, this substantial semi-detached villa occupies one of the area's most privileged positions - one of only a select few homes to enjoy direct access from the rear garden to the tranquil waters of Tannoch Loch. Rarely available and brimming with potential, the property presents a unique opportunity for buyers looking to secure a landmark home in an exceptional location, within walking distance of Milngavie's vibrant village centre, railway station and array of amenities.
Originally constructed in the early 20th century, the property delivers an impressive and highly versatile footprint of family accommodation, arranged across two levels, which has been impeccably maintained and cared for over the years. The scale, wonderful setting and flexible layout now offer an extremely exciting opportunity to create a truly special home and tailor it to suit personal preferences.
Approached via a gravelled driveway, the house is framed by mature, beautifully stocked garden grounds. There is gated access to the side, allowing access down to the expansive rear gardens, which extend to the edge of the loch itself. This is an uninterrupted green space, bordered by established planting, trees and a sweeping lawn, offering wonderful privacy and year-round visual interest. At the rear of the house, access is available to a large basement level, offering superb storage, utility provision and development potential (subject to consents).
The internal accommodation begins with a welcoming entrance vestibule, leading through to a broad reception hallway, with a grand staircase to the upper level. To the front, a formal bay windowed lounge, which is currently used as a formal dining room, features a focal point fireplace, a large and recently upgraded dining kitchen sits behind the dining room and features a range of base and wall mounted storage. From the kitchen, access is provided out to a raised patio and stairs leading down to the garden. To the rear of the home, there is a bright sunroom/sitting room, overlooking the garden and offering wonderful views of the loch. Again, from here, access is provided out to the raised patio to the rear.
Stairs lead up, via a half landing, where there is a home office or study, with beautiful views over the loch, a galley style family shower room, fitted with a large walk in shower, WC and basin, separate WC and useful storage. From the main landing, access is provided to two generous double bedrooms and a further single bedroom, all well-proportioned and full of character.
The home benefits from gas central heating and a combination of single and double glazing.
This is a rare opportunity to acquire a characterful, loch-side home, in one of Milngavie's most admired and enduringly popular addresses. With its expansive gardens, substantial proportions and exceptional potential, the property is ideally suited to families looking to create a long-term residence, in a peaceful yet supremely convenient setting, close to excellent schooling, parks, shops and transport links, and on the doorstep of the stunning Tannoch and Mugdock Country Park landscapes.
EER Band - F
Local Area
The property is extremely well placed for an extensive array of local amenities. Milngavie's pedestrianised town centre provides a wide selection of facilities and services, including banks, restaurants, Marks & Spencer's Food Hall and Waitrose. Lennox Park lies near the centre of Milngavie. Further recreational pursuits include a choice of sports centres/gyms, including Allander Sports centre, Nuffield Health Fitness & Wellbeing Gym, tennis and bowling clubs and an array of reputable golf clubs. Milngavie is home to the starting point of The West Highland Way with further walking and cycling trails close at hand in nearby Mugdock Country Park and around the Allander and Craigmaddie Reservoirs. Milngavie train station offers frequent trains to Glasgow's West End and City Centre, along with a direct service to Edinburgh.
Directions
Sat Nav - 156 Mugdock Road, Milngavie, G62 8NE
Brochures
Brochure 1Web Details- COUNCIL TAXA payment made to your local authority in order to pay for local services like schools, libraries, and refuse collection. The amount you pay depends on the value of the property.Read more about council Tax in our glossary page.
- Band: G
- PARKINGDetails of how and where vehicles can be parked, and any associated costs.Read more about parking in our glossary page.
- Driveway
- GARDENA property has access to an outdoor space, which could be private or shared.
- Yes
- ACCESSIBILITYHow a property has been adapted to meet the needs of vulnerable or disabled individuals.Read more about accessibility in our glossary page.
- Ask agent
Energy performance certificate - ask agent
156 Mugdock Road, Milngavie, G62 8NE
Add an important place to see how long it'd take to get there from our property listings.
__mins driving to your place
Get an instant, personalised result:
- Show sellers you’re serious
- Secure viewings faster with agents
- No impact on your credit score
Your mortgage
Notes
Staying secure when looking for property
Ensure you're up to date with our latest advice on how to avoid fraud or scams when looking for property online.
Visit our security centre to find out moreDisclaimer - Property reference BD3927. The information displayed about this property comprises a property advertisement. Rightmove.co.uk makes no warranty as to the accuracy or completeness of the advertisement or any linked or associated information, and Rightmove has no control over the content. This property advertisement does not constitute property particulars. The information is provided and maintained by Corum, Bearsden. Please contact the selling agent or developer directly to obtain any information which may be available under the terms of The Energy Performance of Buildings (Certificates and Inspections) (England and Wales) Regulations 2007 or the Home Report if in relation to a residential property in Scotland.
*This is the average speed from the provider with the fastest broadband package available at this postcode. The average speed displayed is based on the download speeds of at least 50% of customers at peak time (8pm to 10pm). Fibre/cable services at the postcode are subject to availability and may differ between properties within a postcode. Speeds can be affected by a range of technical and environmental factors. The speed at the property may be lower than that listed above. You can check the estimated speed and confirm availability to a property prior to purchasing on the broadband provider's website. Providers may increase charges. The information is provided and maintained by Decision Technologies Limited. **This is indicative only and based on a 2-person household with multiple devices and simultaneous usage. Broadband performance is affected by multiple factors including number of occupants and devices, simultaneous usage, router range etc. For more information speak to your broadband provider.
Map data ©OpenStreetMap contributors.







