Richmond Road, Altrincham

- PROPERTY TYPE
Semi-Detached
- BEDROOMS
5
- BATHROOMS
3
- SIZE
Ask agent
- TENUREDescribes how you own a property. There are different types of tenure - freehold, leasehold, and commonhold.Read more about tenure in our glossary page.
Freehold
Key features
- PERIOD SEMI-DETACHED CURRENTLY SPLIT INTO TWO APARTMENTS
- FREEHOLD
- LOCATION CLOSE TO ALTRINCHAM CENTRE
- CONVENIENT REACH OF SOUGHT AFTER SCHOOLS
- NO CHAIN
- FANTASTIC POTENTIAL AS TWO FLATS OR HOUSE IF RESTORED
- ENCLOSED GARDEN TO REAR
Description
DESCRIPTION
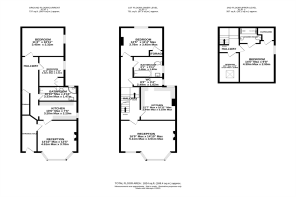
A rare chance to acquire a striking bay-fronted period semi-detached property, beautifully positioned within walking distance of central Altrincham's vibrant market town, Metrolink, and sought-after local schools. Bursting with character and potential, this charming property is currently arranged as two self-contained apartments, offering flexibility for investors, multi-generational living, or those seeking to restore it to a single, grand family residence.
The ground floor comprises a well-proportioned two-bedroom apartment, featuring a spacious living/dining room with high ceilings and original detailing, a separate fitted kitchen, a bathroom, and two generous double bedrooms. This space offers comfortable living with period charm.
The first and second floors form a generous duplex apartment. The first floor includes a good-sized living/dining room, a well-proportioned bedroom, a separate kitchen, a bathroom, and a separate W.C. Upstairs on the second floor, you will find two additional bedrooms, including one with a small en-suite and shower, ideal as a guest room or home office setup.
Externally, the property benefits from a private courtyard-style garden to the rear; a low-maintenance and secluded outdoor space perfect for relaxing or entertaining.
With excellent transport links on your doorstep, including Altrincham¿s Metrolink and bus terminal, plus highly regarded schools and a wealth of local amenities nearby, this is a truly enviable location.
Whether you're looking to invest, convert back into a single home, or accommodate multiple generations under one roof, this unique property presents an exceptional opportunity.
Freehold. No onward chain. Viewings highly recommended.
Brochures
BROCHURE.pdf- COUNCIL TAXA payment made to your local authority in order to pay for local services like schools, libraries, and refuse collection. The amount you pay depends on the value of the property.Read more about council Tax in our glossary page.
- Band: C
- PARKINGDetails of how and where vehicles can be parked, and any associated costs.Read more about parking in our glossary page.
- Ask agent
- GARDENA property has access to an outdoor space, which could be private or shared.
- Yes
- ACCESSIBILITYHow a property has been adapted to meet the needs of vulnerable or disabled individuals.Read more about accessibility in our glossary page.
- Ask agent
Energy performance certificate - ask agent
Richmond Road, Altrincham
Add an important place to see how long it'd take to get there from our property listings.
__mins driving to your place
Get an instant, personalised result:
- Show sellers you’re serious
- Secure viewings faster with agents
- No impact on your credit score
Your mortgage
Notes
Staying secure when looking for property
Ensure you're up to date with our latest advice on how to avoid fraud or scams when looking for property online.
Visit our security centre to find out moreDisclaimer - Property reference 1022523. The information displayed about this property comprises a property advertisement. Rightmove.co.uk makes no warranty as to the accuracy or completeness of the advertisement or any linked or associated information, and Rightmove has no control over the content. This property advertisement does not constitute property particulars. The information is provided and maintained by Gascoigne Halman, Altrincham. Please contact the selling agent or developer directly to obtain any information which may be available under the terms of The Energy Performance of Buildings (Certificates and Inspections) (England and Wales) Regulations 2007 or the Home Report if in relation to a residential property in Scotland.
*This is the average speed from the provider with the fastest broadband package available at this postcode. The average speed displayed is based on the download speeds of at least 50% of customers at peak time (8pm to 10pm). Fibre/cable services at the postcode are subject to availability and may differ between properties within a postcode. Speeds can be affected by a range of technical and environmental factors. The speed at the property may be lower than that listed above. You can check the estimated speed and confirm availability to a property prior to purchasing on the broadband provider's website. Providers may increase charges. The information is provided and maintained by Decision Technologies Limited. **This is indicative only and based on a 2-person household with multiple devices and simultaneous usage. Broadband performance is affected by multiple factors including number of occupants and devices, simultaneous usage, router range etc. For more information speak to your broadband provider.
Map data ©OpenStreetMap contributors.




