Stunning Modern Property, Crowntown

- PROPERTY TYPE
Detached
- BEDROOMS
4
- BATHROOMS
4
- SIZE
Ask agent
- TENUREDescribes how you own a property. There are different types of tenure - freehold, leasehold, and commonhold.Read more about tenure in our glossary page.
Freehold
Key features
- OUTSTANDING INDIVIDUALLY DESIGNED AND CONSTRUCTED FOUR BEDROOM, FOUR BATHROOM PROPERTY
- STUNNING LIGHT FLOODED REVERSE-LEVEL ACCOMMODATION WITH FABULOUS VIEWS AND BALCONY
- DETACHED GARAGE WITH STUDIO OFFERING FURTHER POTENTIAL (subject to consents)
- OPEN PLAN LIVING SPACE WITH SEPARATE SNUG AND USEFUL UTILITY ROOM
- SEMI-RURAL YET CONVENIENT LOCATION
- STYLISH AND PRACTICAL HOME
- COUNCIL TAX BAND E
Description
The reverse-level accommodation is centred around a striking oak and glazed staircase, leading to a stunning first-floor open-plan living space. Flooded with natural light from windows to all aspects, this fabulous area includes a high specification kitchen with stone worktops and an array of integrated appliances - including a bank of ovens, full-size fridge and freezer, wine cooler, and dishwasher. The kitchen flows seamlessly into the dining and living areas, which in turn open onto a balcony with far-reaching rural views. A separate utility room and cloakroom offer day to day convenience.
On the ground floor, the luxurious master bedroom suite features ample built-in storage, a beautifully appointed en-suite, and doors opening directly onto the garden. There are two further en-suite bedrooms, a generous fourth double bedroom, a stunning family bathroom with freestanding bath, and a cosy snug - ideal as a TV room or reading space.
Throughout the property, the finish is exceptional, with carefully chosen tiles, light fittings, and materials that reflect the bespoke nature of this wonderful home.
In addition to the main residence, there is a detached garage with rooms above and a shower room already in place - offering excellent potential for a home office, studio, hobby space, or possible conversion to an annexe (subject to any necessary permissions).
With ample parking and a peaceful yet convenient location, this home offers easy access to nearby towns such as Helston and Camborne, the A30, the surrounding countryside, and both the North and South Coasts.
LOCATION
Crowntown is semi-rural hamlet growing in popularity and for good reason. Well placed for access to both the north and south coast, each of which offer stunning beaches. The property is also convenient for the surrounding countryside and good walking. It is easy to connect to the A30 and to access more major towns such as Truro, Camborne and Redruth, as well as nearby Helston and The Lizard Peninsula. The property is also within walking distance of Sithney Primary School.
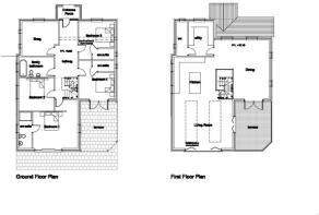
THE ACCOMMODATION COMPRISES (DIMENSIONS APPROX)
Covered entrance with door with dual sidescreens to:
HALLWAY
An impressive hallway with tiled floor, two radiators, feature oak and glazed staircase rising to the first floor and doors to various rooms.
MASTER BEDROOM SUITE
4.90m x 4.09m (16'1" x 13'5")
A fantastic room with direct access to the gardens, a wonderful room in which to relax and enjoy a coffee on a Sunday morning. With hard flooring, dual fuel anthracite grey ladder radiator, fitted storage, a window to the side and sliding doors to the rear garden, fitted with shutters and a door to the en-suite.
EN-SUITE
3.68m x 1.30m (12'1" x 4'3")
Being fully tiled to both floor and walls. Offering a large cubicle with domestic hot water shower with drench head and hand held wand, wash hand basin in vanity unit with storage below and mirror with light above. Low level w.c., anthracite radiator, a window to the side fitted with shutters and low level automatic lighting.
BEDROOM TWO
3.78m x 3.48m (reducing to 2.87m) (12'5" x 11'5" (reducing to 9'5"))
With a window to the front. fitted with shutters, anthracite radiator and built-in wardrobes. Door to the en-suite.
EN-SUITE
2.31m x 1.12m (an irregular shaped room) (7'7" x 3'8" (an irregular shaped room))
Being fully tiled to the floor and walls, with a walk-in double cubicle housing a chrome effect domestic hot water shower with drench head and hand held wand with useful recess shelf for storage with LED light. Wash hand basin in vanity unit, concealed cistern, w.c., with low level automatic lights, a window to the side, extractor and anthracite dual fuel anthracite grey ladder style radiator.
BEDROOM THREE
3.81m x 3.45m (reducing to 2.84m) (12'6" x 11'4" (reducing to 9'4"))
A fantastic room with double doors accessing the patio to the rear, fitted with shutters, fitted wardrobes with mirror to the doors, anthracite grey ladder radiator and a door to the en-suite.
EN-SUITE
2.29m x 1.07m (7'6" x 3'6")
Fully tiled to the floor and walls, with wall hung low level w.c., wash hand basin in a vanity unit, walk-in double cubicle with chrome effect domestic hot water shower with drench head and wand. Automatic low level lights, dual fuel anthracite towel rail.
BEDROOM FOUR
3.51m x 3.71m (11'6" x 12'2")
With a window to the side, fitted with shutters and anthracite radiator.
FAMILY BATHROOM
3.71m x 2.03m (12'2" x 6'8")
Being tiled to the floor and the ceiling. A stunning luxurious room, featuring a free standing bath, with mixer tap and hand held wand. Wash hand basin in vanity unit, low level w.c., wall mounted LED mirror and dual fuel anthracite grey ladder style radiator and vertical anthracite grey radiator. A window to the side and fitted with shutters.
SNUG
3.89m x 3.68m (12'9" x 12'1")
A superbly versatile dual aspect room, fitted with a gas log burner and anthracite radiator.
OPEN PLAN LIVING SPACE
10.26m (reducing to 8.23m) x 9.83m (reducing to 7. (33'8" (reducing to 27') x 32'3" (reducing to 25') )
A fabulous open plan living space with windows to all aspects, perfect for those who love to entertain, or family life.
KITCHEN AREA
7.62m x 3.76m (25' x 12'4")
Extensively fitted with a range of matt graphite grey base and wall units with stone work surfaces over, including a large island unit with seating area and integrated sink and drainer. A bank of eye level AEG ovens comprising two ovens and one microwave oven/grill. A full size freezer and full size fridge, wine cooler and dishwasher. A fantastic integrated pantry offering a fantastic amount of storage, deep pan drawers, AEG five zone gas hob with extractor and light over. and a bespoke glass splashback. Vertical anthracite grey radiator. Two windows to the front and two to the side, all fitted with shutters. A door leading to the balcony, open plan to the living and dining space and a door to the utility room.
UTILTY ROOM
3.68m x 2.59m (12'1" x 8'6")
Fitted with matching matt graphic base and wall units, boiler cupboard housing the Ideal combi boiler and hot water cylinder. Integrated washing machine and condenser tumble drier. Stone worktops, including a sink with integrated drainer and glass splashback. A window to the side fitted with shutters and a door to the cloakroom.
CLOAKROOM
3.40m x 1.09m (11'2" x 3'7")
With feature tiles to the floor and half height to the walls in blue marble effect, low level concealed cistern, wall hung w.c., wash hand basin in vanity unit with storage below, Windows to the front and side with shutters, duel fuel anthracite grey ladder style radiator.
LOUNGE/DINING AREA
A fabulous triple aspect space with two triple Velux style windows with solar powered blinds, Contura log burner, doors and Juliette balcony to the rear offering fantastic rural views and doors leading to the balcony. A vertical and horizontal anthracite grey radiator.
OUTSIDE
Arrive at the property and park on a generous graveled parking area offering access to the garage and the property itself. There are gardens to the side and to the rear of the property, The gardens are primarily laid to lawn but featuring patio seating areas, established beds and borders and the previously mentioned balcony. This is a fantastic space, perfect for entertaining, accessed from the kitchen and living area and also from a spiral staircase from the garden. Below the balcony is a further seating area accessed from bedroom two, offering a useful covered space, perfect for inclement weather. Fantastic far reaching rural views can be enjoyed from the garden and in particular the balcony.
GARAGE
4.93m x 4.32m (16'2" x 14'2")
With electric remote control door and a connection ready for an electric car charger to be fitted if required.
STUDIO/ANNEXE
A superbly versatile space, currently used as storage and studio space offering lots of scope an potential for those possibly seeking to produce an income stream, accommodate a relative or guests or looking to run a business from home.
STORE ROOM
3.89m x 2.31m (12'9" x 7'7")
This room is currently utilised for storage. With tiled floor, Haverland wall mounted electric heater, storage cupboard area, stairs rising to the first floor and a door to the shower room.
SHOWER ROOM
2.31m x 0.91m (7'7" x 3')
With tiled cubicle housing electric shower, wash hand basin set in vanity unit, low level w.c., a window to the front and electric anthracite grey ladder style radiator.
FIRST FLOOR SITTING ROOM/STUDIO
5.00m x 4.72m (16'5" x 15'6")
A dual aspect room with a window to the rear offering an attractive rural outlook and two Velux windows to the side. Two electric radiators and a glazed door to the office.
OFFICE
5.00m x 1.91m (16'5" x 6'3")
With a window to the side and electric radiator. Restricted head height in places.
AGENTS NOTE
The property was completed in 2021 and enjoys the remainder of a LABC Warranty. The property is accessed via a private driveway, which is owned by neighbouring properties, this property has a right of access and maintenance costs are shared as maintenance is required.
SERVICES
Mains electricity and water, private drainage and mains gas central heating.
MOBILE AND BROADBAND
For more information on mobile and broadband services to this property please see attached brochure.
COUNCIL TAX
Council Tax Band E
ANTI-MONEY LAUNDERING
We are required by law to ask all purchasers for verified ID prior to instructing a sale
PROOF OF FINANCE - PURCHASERS
Prior to agreeing a sale, we will require proof of financial ability to purchase which will include an agreement in principle for a mortgage and/or proof of cash funds.
Brochures
BROCHURE- COUNCIL TAXA payment made to your local authority in order to pay for local services like schools, libraries, and refuse collection. The amount you pay depends on the value of the property.Read more about council Tax in our glossary page.
- Ask agent
- PARKINGDetails of how and where vehicles can be parked, and any associated costs.Read more about parking in our glossary page.
- Yes
- GARDENA property has access to an outdoor space, which could be private or shared.
- Yes
- ACCESSIBILITYHow a property has been adapted to meet the needs of vulnerable or disabled individuals.Read more about accessibility in our glossary page.
- Ask agent
Stunning Modern Property, Crowntown
Add an important place to see how long it'd take to get there from our property listings.
__mins driving to your place
Get an instant, personalised result:
- Show sellers you’re serious
- Secure viewings faster with agents
- No impact on your credit score
Your mortgage
Notes
Staying secure when looking for property
Ensure you're up to date with our latest advice on how to avoid fraud or scams when looking for property online.
Visit our security centre to find out moreDisclaimer - Property reference 3881. The information displayed about this property comprises a property advertisement. Rightmove.co.uk makes no warranty as to the accuracy or completeness of the advertisement or any linked or associated information, and Rightmove has no control over the content. This property advertisement does not constitute property particulars. The information is provided and maintained by Christophers, Helston. Please contact the selling agent or developer directly to obtain any information which may be available under the terms of The Energy Performance of Buildings (Certificates and Inspections) (England and Wales) Regulations 2007 or the Home Report if in relation to a residential property in Scotland.
*This is the average speed from the provider with the fastest broadband package available at this postcode. The average speed displayed is based on the download speeds of at least 50% of customers at peak time (8pm to 10pm). Fibre/cable services at the postcode are subject to availability and may differ between properties within a postcode. Speeds can be affected by a range of technical and environmental factors. The speed at the property may be lower than that listed above. You can check the estimated speed and confirm availability to a property prior to purchasing on the broadband provider's website. Providers may increase charges. The information is provided and maintained by Decision Technologies Limited. **This is indicative only and based on a 2-person household with multiple devices and simultaneous usage. Broadband performance is affected by multiple factors including number of occupants and devices, simultaneous usage, router range etc. For more information speak to your broadband provider.
Map data ©OpenStreetMap contributors.







