
4 bedroom bungalow for sale
Sandon View, Leeds, West Yorkshire

- PROPERTY TYPE
Bungalow
- BEDROOMS
4
- BATHROOMS
3
- SIZE
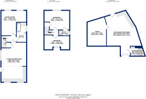
1,472 sq ft
137 sq m
- TENUREDescribes how you own a property. There are different types of tenure - freehold, leasehold, and commonhold.Read more about tenure in our glossary page.
Freehold
Key features
- Two detached properties in one
- 1472sqft of living space
- Large Annex
- A substantial plot of land/property
- Tucked away in private location
- Uniquely/ attractively designed interior and garden
Description
The Bungalow
On entering, you are greeted with a spacious, open-plan living room and kitchen. The main bathroom is located on the ground floor and consists of a shower-bath, w/c and sink. Completing the ground floor is the largest of the bedrooms, providing enough space for a bedroom and sitting room. Moving upstairs you will find a further two bedrooms, both well-proportioned and neutrally decorated with one boasting en suite facilities.
The Annex
- Sizeable living room & kitchen
- Large bedroom
- Detached building
- Own pleasant & ample garden
- Fully equipped with all necessary living facilities
- Soundproofed & fully insulated
- High specs
This building is larger than many flats on the market, consisting of: a sizeable 36m2 living room/kitchen; a beautiful and uniquely designed bathroom; a super-quiet, spacious bedroom, and, a pleasant garden with large decking and grass areas. Modem and tasteful decor throughout.
The annex is ideal for any young adults in a family wanting their own space, especially if saving for a mortgage, avoiding spending £7000+ annually on rent and council tax. Having all the necessary facilities and finished to such a high standard, the annex could be used as an Airbnb, for a variety of other business purposes, or, as a fantastic entertaining space.
Location
Conveniently located under 0.7 miles from Morrisons, Aldi, B & M, Range, PureGym (open 24 hours a day), KFC and a shopping centre. Just a few minutes' drive and bus ride to the city centre. Good local primary (50 yards away) and secondary schools close by making this home ideal for the growing family. Numerous local shops and good public transport links through Leeds also nearby.
Gardens & Surroundings
Both buildings have their own separate gardens, both are well-designed, contain large, well-crafted decking areas, outdoor lighting and are surrounded by fencing and high walls providing substantial privacy. The property is tucked away in a private location with no surrounding roads or streets, situated in a quiet neighbourhood. A fully fenced driveway offers two off-street parking spots plus one more in a private carpark out front.
- Looking for cash buyers
Anti-Money Laundering (AML) Checks - As part of making an offer, we're required by law to complete Anti-Money Laundering (AML) checks to confirm the identity of all purchasers. To cover the cost of this process, a fee of £48 inc VAT per buyer is payable when your offer is accepted. This is a standard requirement for all buyers and helps us ensure your offer can be progressed as quickly and smoothly as possible.
Additional Information
Tenure
Freehold
Disclaimer
Any information in relation to the length of lease, service charge, ground rent and council tax has been confirmed by our sellers. We would advise that any buyer make their own enquiries through their solicitors to verify that the information provided is accurate and not been subject to any change.
Brochures
Particulars- COUNCIL TAXA payment made to your local authority in order to pay for local services like schools, libraries, and refuse collection. The amount you pay depends on the value of the property.Read more about council Tax in our glossary page.
- Band: B
- PARKINGDetails of how and where vehicles can be parked, and any associated costs.Read more about parking in our glossary page.
- Yes
- GARDENA property has access to an outdoor space, which could be private or shared.
- Ask agent
- ACCESSIBILITYHow a property has been adapted to meet the needs of vulnerable or disabled individuals.Read more about accessibility in our glossary page.
- Ask agent
Sandon View, Leeds, West Yorkshire
Add an important place to see how long it'd take to get there from our property listings.
__mins driving to your place
Get an instant, personalised result:
- Show sellers you’re serious
- Secure viewings faster with agents
- No impact on your credit score
Your mortgage
Notes
Staying secure when looking for property
Ensure you're up to date with our latest advice on how to avoid fraud or scams when looking for property online.
Visit our security centre to find out moreDisclaimer - Property reference CRO240248. The information displayed about this property comprises a property advertisement. Rightmove.co.uk makes no warranty as to the accuracy or completeness of the advertisement or any linked or associated information, and Rightmove has no control over the content. This property advertisement does not constitute property particulars. The information is provided and maintained by Manning Stainton, Beeston. Please contact the selling agent or developer directly to obtain any information which may be available under the terms of The Energy Performance of Buildings (Certificates and Inspections) (England and Wales) Regulations 2007 or the Home Report if in relation to a residential property in Scotland.
*This is the average speed from the provider with the fastest broadband package available at this postcode. The average speed displayed is based on the download speeds of at least 50% of customers at peak time (8pm to 10pm). Fibre/cable services at the postcode are subject to availability and may differ between properties within a postcode. Speeds can be affected by a range of technical and environmental factors. The speed at the property may be lower than that listed above. You can check the estimated speed and confirm availability to a property prior to purchasing on the broadband provider's website. Providers may increase charges. The information is provided and maintained by Decision Technologies Limited. **This is indicative only and based on a 2-person household with multiple devices and simultaneous usage. Broadband performance is affected by multiple factors including number of occupants and devices, simultaneous usage, router range etc. For more information speak to your broadband provider.
Map data ©OpenStreetMap contributors.








