
Plumberow Avenue, Hockley

- PROPERTY TYPE
Detached Bungalow
- BEDROOMS
3
- BATHROOMS
2
- SIZE
Ask agent
- TENUREDescribes how you own a property. There are different types of tenure - freehold, leasehold, and commonhold.Read more about tenure in our glossary page.
Freehold
Key features
- Detached Bungalow
- Off Street Parking
- Side Access
- Modernised Throughout
- WC
- Spacious Lounge
- Close To Local Amenities
- Close To Hockley Station
Description
Bear Estate Agents is exited to welcome this beautifully presented detached three-bedroom bungalow offers modern living in a sought-after location close to Hockley Woods and the station. The property boasts a spacious open-plan kitchen diner, tastefully modernised throughout, creating the perfect space for both family life and entertaining. Outside, you’ll find off-street parking, convenient side access, and a well-maintained garden ideal for relaxing or outdoor dining. With its stylish interior and prime setting, this home perfectly combines comfort, practicality, and lifestyle.
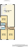
Entrance Hall - Smooth ceiling with inset spotlights and herringbone flooring throughout.
Lounge/Kitchen/Dining Room - 9.04m x 5.72m (29'8 x 18'9) - Smooth ceiling with inset spotlights, power points, eye and base level units, space for oven with extractor fan above, space for dishwasher, wall mounted radiator, double glazed window to the rear aspect and double glazed bi-fold doors to the rear aspect accessing the rear garden.
Bedroom One - 4.01m x 2.95m (13'2 x 9'8 ) - Smooth ceiling with inset spotlights, double glazed windows to the rear aspect, power points, wall mounted radiator and carpeted flooring throughout.
Bedroom Two - 4.01m x 2.77m (13'2 x 9'1 ) - Smooth ceiling with inset spotlights, double glazed windows to the rear aspect, power points and carpeted flooring throughout.
Bedroom Three - 2.82m x 2.77m (9'3 x 9'1 ) - Smooth ceiling with inset spotlights, double glazed windows to the side aspect, power points and carpeted flooring throughout.
Family Bathroom - Smooth ceiling with inset spotlights, obscure double glazed window to the side aspect, panelled bath with shower head attachment, vanity sink unit, WC, tiled surrounds and tiled flooring.
Wc - WC, vanity sink unit and tiled surrounds.
Agents Notes - Every care has been taken to ensure the accuracy of these details, however, they do not form part of any offer or contract and should not be relied upon as statements of fact. Measurement, descriptions and other information are provided in good faith and for guidance only. Prospective purchasers should verify all details independently. We have not tested any services, appliances or systems at the property.
Tenure - Freehold
Council Tax Band - A
Brochures
Plumberow Avenue, HockleyBrochure- COUNCIL TAXA payment made to your local authority in order to pay for local services like schools, libraries, and refuse collection. The amount you pay depends on the value of the property.Read more about council Tax in our glossary page.
- Band: A
- PARKINGDetails of how and where vehicles can be parked, and any associated costs.Read more about parking in our glossary page.
- Yes
- GARDENA property has access to an outdoor space, which could be private or shared.
- Yes
- ACCESSIBILITYHow a property has been adapted to meet the needs of vulnerable or disabled individuals.Read more about accessibility in our glossary page.
- Ask agent
Plumberow Avenue, Hockley
Add an important place to see how long it'd take to get there from our property listings.
__mins driving to your place
Get an instant, personalised result:
- Show sellers you’re serious
- Secure viewings faster with agents
- No impact on your credit score
Your mortgage
Notes
Staying secure when looking for property
Ensure you're up to date with our latest advice on how to avoid fraud or scams when looking for property online.
Visit our security centre to find out moreDisclaimer - Property reference 34171271. The information displayed about this property comprises a property advertisement. Rightmove.co.uk makes no warranty as to the accuracy or completeness of the advertisement or any linked or associated information, and Rightmove has no control over the content. This property advertisement does not constitute property particulars. The information is provided and maintained by Bear Estate Agents, Hockley. Please contact the selling agent or developer directly to obtain any information which may be available under the terms of The Energy Performance of Buildings (Certificates and Inspections) (England and Wales) Regulations 2007 or the Home Report if in relation to a residential property in Scotland.
*This is the average speed from the provider with the fastest broadband package available at this postcode. The average speed displayed is based on the download speeds of at least 50% of customers at peak time (8pm to 10pm). Fibre/cable services at the postcode are subject to availability and may differ between properties within a postcode. Speeds can be affected by a range of technical and environmental factors. The speed at the property may be lower than that listed above. You can check the estimated speed and confirm availability to a property prior to purchasing on the broadband provider's website. Providers may increase charges. The information is provided and maintained by Decision Technologies Limited. **This is indicative only and based on a 2-person household with multiple devices and simultaneous usage. Broadband performance is affected by multiple factors including number of occupants and devices, simultaneous usage, router range etc. For more information speak to your broadband provider.
Map data ©OpenStreetMap contributors.





