3 bedroom semi-detached house for sale
Peter Fletcher Crescent, Elworth, Sandbach

- PROPERTY TYPE
Semi-Detached
- BEDROOMS
3
- BATHROOMS
1
- SIZE
Ask agent
Key features
- 3 Bed Semi-Detached Home
- Lounge/Diner With French Doors To Garden
- Bathroom With Shower Over Bath
- Driveway Parking
- Enclosed Large Rear Gadren
- Quiet Estate Location
- Close To Train Station
- Council Tax Band C
Description
Found on a quiet and modern estate on the outskirts of Sandbach with easy access to both the town centre and open countryside, this family home offers spacious and bright accommodation throughout as well as a large rear garden and off-road parking for least two vehicles. Early viewing is highly recommended!
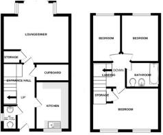
Accessed via a large Entrance Hall there is access off to a ground floor WC and stairs leading to the first floor, at the front of the property there is a modern kitchen with integrated oven and hobs plus space and plumbing for a washing machine and fridge/freezer. To the rear aspect there is a large lounge/diner with bay windows and French doors leading to the garden.
On the first floor the master bedroom is found to the front elevation, to the rear elevation there are two further bedrooms, and a family bathroom with a three-piece suite completes the accommodation.
Externally there is a low maintenance lawn to the front with off-road parking extending down the side of the property. The rear garden can be accessed via a side gate and enjoys a large lawn space with space for a garden shed or bin store to the side.
To arrange a viewing or for more information please contact Lewis King Estate Agents at your earliest convenience!
Ground Floor -
Kitchen - 2.1 x 3 (6'10" x 9'10") -
Lounge - 4.2 x 4.8 (into bay) (13'9" x 15'8" (into bay)) -
First Floor -
Bedroom One - 4 x 3.2 (13'1" x 10'5") -
Bedroom Two - 2.3 x 2.9 (7'6" x 9'6") -
Bedroom Three - 1.8 x 2.8 (5'10" x 9'2") -
Bathroom - 2.2 x 1.7 (7'2" x 5'6") -
Brochures
Peter Fletcher Crescent, Elworth, Sandbach- COUNCIL TAXA payment made to your local authority in order to pay for local services like schools, libraries, and refuse collection. The amount you pay depends on the value of the property.Read more about council Tax in our glossary page.
- Band: C
- PARKINGDetails of how and where vehicles can be parked, and any associated costs.Read more about parking in our glossary page.
- Yes
- GARDENA property has access to an outdoor space, which could be private or shared.
- Yes
- ACCESSIBILITYHow a property has been adapted to meet the needs of vulnerable or disabled individuals.Read more about accessibility in our glossary page.
- Ask agent
Peter Fletcher Crescent, Elworth, Sandbach
Add an important place to see how long it'd take to get there from our property listings.
__mins driving to your place
Get an instant, personalised result:
- Show sellers you’re serious
- Secure viewings faster with agents
- No impact on your credit score
Your mortgage
Notes
Staying secure when looking for property
Ensure you're up to date with our latest advice on how to avoid fraud or scams when looking for property online.
Visit our security centre to find out moreDisclaimer - Property reference 34171589. The information displayed about this property comprises a property advertisement. Rightmove.co.uk makes no warranty as to the accuracy or completeness of the advertisement or any linked or associated information, and Rightmove has no control over the content. This property advertisement does not constitute property particulars. The information is provided and maintained by Lewis King, Sandbach. Please contact the selling agent or developer directly to obtain any information which may be available under the terms of The Energy Performance of Buildings (Certificates and Inspections) (England and Wales) Regulations 2007 or the Home Report if in relation to a residential property in Scotland.
*This is the average speed from the provider with the fastest broadband package available at this postcode. The average speed displayed is based on the download speeds of at least 50% of customers at peak time (8pm to 10pm). Fibre/cable services at the postcode are subject to availability and may differ between properties within a postcode. Speeds can be affected by a range of technical and environmental factors. The speed at the property may be lower than that listed above. You can check the estimated speed and confirm availability to a property prior to purchasing on the broadband provider's website. Providers may increase charges. The information is provided and maintained by Decision Technologies Limited. **This is indicative only and based on a 2-person household with multiple devices and simultaneous usage. Broadband performance is affected by multiple factors including number of occupants and devices, simultaneous usage, router range etc. For more information speak to your broadband provider.
Map data ©OpenStreetMap contributors.





