
Brooklands Road, Weybridge, KT13

- PROPERTY TYPE
House
- BEDROOMS
4
- BATHROOMS
3
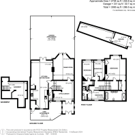
- SIZE
Ask agent
- TENUREDescribes how you own a property. There are different types of tenure - freehold, leasehold, and commonhold.Read more about tenure in our glossary page.
Freehold
Key features
- Stunning four bedroom home
- Off street parking and garaging
- Large garden backing St Georges Hill
- Iconic Weybridge home
- In excess of 3000 square feet
- Oozing character and charm
- Walking distance of mainline station
Description
To the rear the property is an oasis of calm backing the much-revered St George's Hill private estate. Our clients have created a wonderful home which has seen some stunning refurbishments with a huge degree of attention to detail creating a truly beautiful home.
Immediately upon entering the vaulted entrance hall you know that this property is not going to disappoint! Having been beautifully maintained whilst in the ownership of our clients the property boasts spacious accommodation throughout. The vaulted entrance hall leads through to the large inner reception room. The two principal reception rooms comprise of a simply stunning living room and huge kitchen / family room, both the inner reception and living room have an amazing latticed ceiling with intricately designed cornicing, large open fires with original surrounds, oak flooring and the living room with French doors leading to the garden. The second reception is configured as the kitchen family room and again has a feature fireplace and French doors leading out. The bespoke hand crafted solid oak kitchen is the perfect space to hone those master chef skills! Comprehensively fitted with a range oven and hob, granite work surfaces double Belfast sink along with an integrated American fridge/freezer with ice dispenser and integrated dishwasher. Leading from the kitchen you will find a climate controlled wine storage cupboard. Leading down a staircase takes you to the cellar, this as you can imagine has seen transformation having been fully tanked and now boasts separate rooms comprising of a large utility, home gym / playroom and pump room.
The first floor continues to impress with four superb bedrooms. The Master bedroom is arranged as a suite with its own dressing room and simply stunning en-suite. You will find a further two bathrooms which again are refitted to an exceptional standard.
The rear garden backs directly on to the exclusive St Georges Hill estate and is an oasis of tranquility, the extensive lawn is bordered by an abundance of mature trees and shrubs. The property also boasts off street parking and garaging.
Brochures
Particulars- COUNCIL TAXA payment made to your local authority in order to pay for local services like schools, libraries, and refuse collection. The amount you pay depends on the value of the property.Read more about council Tax in our glossary page.
- Band: F
- PARKINGDetails of how and where vehicles can be parked, and any associated costs.Read more about parking in our glossary page.
- Yes
- GARDENA property has access to an outdoor space, which could be private or shared.
- Yes
- ACCESSIBILITYHow a property has been adapted to meet the needs of vulnerable or disabled individuals.Read more about accessibility in our glossary page.
- Ask agent
Brooklands Road, Weybridge, KT13
Add an important place to see how long it'd take to get there from our property listings.
__mins driving to your place
Get an instant, personalised result:
- Show sellers you’re serious
- Secure viewings faster with agents
- No impact on your credit score
Your mortgage
Notes
Staying secure when looking for property
Ensure you're up to date with our latest advice on how to avoid fraud or scams when looking for property online.
Visit our security centre to find out moreDisclaimer - Property reference CWE240211. The information displayed about this property comprises a property advertisement. Rightmove.co.uk makes no warranty as to the accuracy or completeness of the advertisement or any linked or associated information, and Rightmove has no control over the content. This property advertisement does not constitute property particulars. The information is provided and maintained by Curchods Estate Agents, Weybridge. Please contact the selling agent or developer directly to obtain any information which may be available under the terms of The Energy Performance of Buildings (Certificates and Inspections) (England and Wales) Regulations 2007 or the Home Report if in relation to a residential property in Scotland.
*This is the average speed from the provider with the fastest broadband package available at this postcode. The average speed displayed is based on the download speeds of at least 50% of customers at peak time (8pm to 10pm). Fibre/cable services at the postcode are subject to availability and may differ between properties within a postcode. Speeds can be affected by a range of technical and environmental factors. The speed at the property may be lower than that listed above. You can check the estimated speed and confirm availability to a property prior to purchasing on the broadband provider's website. Providers may increase charges. The information is provided and maintained by Decision Technologies Limited. **This is indicative only and based on a 2-person household with multiple devices and simultaneous usage. Broadband performance is affected by multiple factors including number of occupants and devices, simultaneous usage, router range etc. For more information speak to your broadband provider.
Map data ©OpenStreetMap contributors.







