Spring Road, Ipswich, IP4 5NE
- SIZE AVAILABLE
692 sq ft
64 sq m
- SECTOR
High street retail property to lease
Lease details
- Lease available date:
- Ask agent
- Deposit:
- £3,062A deposit provides security for a landlord against damage, or unpaid rent by a tenant.Read more about deposit in our glossary page.
- Furnish type:
- Furnished or unfurnished, landlord is flexible
Key features
- Prominent, Refurbished Corner Shop/Office
- Extending to 64 sqm (692 sq. ft)
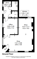
- Main Retail Area
- Office
- Ancillary Accommodation
- Popular East Ipswich Location
- Lease Available for Assignment/Subletting
Description
A smart shop/office premises extending to 64sqm (692sq.ft)
Comprising main retail area, office and ancillary accommodation.
Popular East Ipswich location.
Lease Available for assignment/subletting.
Location
The property occupies a prominent corner location at the junction of Spring Road and Cowper Street in the sought after East Ipswich/Kesgrave area around 2 miles north-east of Ipswich Town Centre.
Directions
From the Town Centre follow Woodbridge Road eastwards taking a right onto Cauldwell Hall Road. At the end of this road, turn left onto Spring Road, where the property will be found on the right hand side on the junction with Cowper Street.
For those using the What3Words app: ///quick.appear.fans
Description
The property comprises a smart self contained shop/office premises in a prominent corner location with return frontage on Spring Road, East Ipswich.
The accommodation is arranged on the ground floor with a main retail/sales area, office, store room, staff kitchen and wc. The premises have a net internal area of approximately 692 square feet (64 square metres).
The property has a return frontage and off-road car parking.
Terms
The premises are available for assignment/subletting for a minimum term of 3 years at an annual rent of £12,250 per annum exclusive. Any lease will be excluded from the security of tenure provisions of the Landlord & Tenant Act 1954. The lease will be on the basis of internal repairing obligations. A deposit will be held by the Landlord equivalent to three months rent. Alternatively, a new lease may be available, subject to a surrender on terms to be agreed. Fast food/takeaway use will not be permitted.
Insurance
The Landlord will insure the building and recharge the premium to the Tenant.
Services
Electricity and mains water are connected to the property, with usage to be the responsibility of the Tenant.
Rateable Value
£10,500. Business Rates will be the responsibility of the Tenant, however Small Business Rate Relief may apply
for qualifying Tenants.
Legal Costs
Each party to be responsible for their own legal costs.
Local Authority
Ipswich Borough Council.
EPC
D(78).
Viewing
By appointment with Clarke and Simpson.
NOTES
1. Every care has been taken with the preparation of these particulars, but complete accuracy cannot be guaranteed. If there is any point, which is of particular importance to you, please obtain professional confirmation. Alternatively, we will be pleased to check the information for you. These Particulars do not constitute a contract or part of a contract. All measurements quoted are approximate. The Fixtures, Fittings & Appliances have not been tested and therefore no guarantee can be given that they are in working order. Photographs are reproduced for general information and it cannot be inferred that any item shown is included. No guarantee can be given that any planning permission or listed building consent or building regulations have been applied for or approved. The agents have not been made aware of any covenants or restrictions that may impact the property, unless stated otherwise. Any site plans used in the particulars are indicative only and buyers should rely on the Land Registry/transfer plan.
2. The Money Laundering, Terrorist Financing and Transfer of Funds (Information on the Payer) Regulations 2017 require all Estate Agents to obtain sellers’ and buyers’ identity.
Energy Performance Certificates
EPC 1Brochures
Spring Road, Ipswich, IP4 5NE
NEAREST STATIONS
Distances are straight line measurements from the centre of the postcode- Derby Road Station0.6 miles
- Westerfield Station1.7 miles
- Ipswich Station1.8 miles
Notes
Disclaimer - Property reference L105364. The information displayed about this property comprises a property advertisement. Rightmove.co.uk makes no warranty as to the accuracy or completeness of the advertisement or any linked or associated information, and Rightmove has no control over the content. This property advertisement does not constitute property particulars. The information is provided and maintained by Clarke and Simpson Commercial, Framlingham. Please contact the selling agent or developer directly to obtain any information which may be available under the terms of The Energy Performance of Buildings (Certificates and Inspections) (England and Wales) Regulations 2007 or the Home Report if in relation to a residential property in Scotland.
Map data ©OpenStreetMap contributors.





