
Millrose Close, Skelmersdale, Lancashire, WN8

- PROPERTY TYPE
Detached
- BEDROOMS
4
- BATHROOMS
1
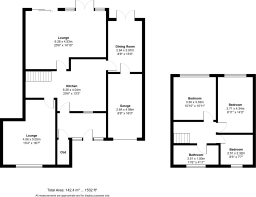
- SIZE
1,532 sq ft
142 sq m
- TENUREDescribes how you own a property. There are different types of tenure - freehold, leasehold, and commonhold.Read more about tenure in our glossary page.
Freehold
Key features
- Four Bedroom Detached
- Fitted kitchen with ample cupboard space
- Separate dining room
- Two Reception Rooms
- Modern Fitted Bathroom
- Flexible fourth bedroom
- Front garden with driveway
- Private enclosed rear garden
- Potential to convert the garage into additional living space
- Viewings Available Upon Request
Description
The ground floor welcomes you with a large entrance hallway that sets the tone for the home. The fitted kitchen provides ample cupboard and worktop space, perfectly designed for everyday use. A bright and spacious main lounge overlooks the rear garden, creating a relaxing family space. A separate dining room offers a more formal setting for entertaining, while a fourth downstairs bedroom or additional reception room provides extra flexibility to suit your household's needs.
To the first floor, there are three further well-proportioned bedrooms, all filled with natural light. The modern fitted family bathroom is finished with a bath, walk-in shower, WC, and hand basin, bringing style and practicality together.
Externally, the property boasts both front and rear gardens, with the rear being particularly private and enclosed, offering a fantastic space for children to play or for hosting summer gatherings. To the front, a driveway provides off-road parking and access to the integral garage, which could be used for storage or converted to create further living space if desired.
This fantastic detached home also comes with the additional benefits of freehold tenure and no onward chain, presenting buyers with the perfect opportunity to move straight in and make the home their own.
Viewings Available on Request
COUNCIL TAX C
FREEHOLD
- COUNCIL TAXA payment made to your local authority in order to pay for local services like schools, libraries, and refuse collection. The amount you pay depends on the value of the property.Read more about council Tax in our glossary page.
- Ask agent
- PARKINGDetails of how and where vehicles can be parked, and any associated costs.Read more about parking in our glossary page.
- Garage,Driveway,Off street
- GARDENA property has access to an outdoor space, which could be private or shared.
- Front garden,Private garden,Patio,Enclosed garden,Rear garden,Back garden
- ACCESSIBILITYHow a property has been adapted to meet the needs of vulnerable or disabled individuals.Read more about accessibility in our glossary page.
- Ask agent
Millrose Close, Skelmersdale, Lancashire, WN8
Add an important place to see how long it'd take to get there from our property listings.
__mins driving to your place
Get an instant, personalised result:
- Show sellers you’re serious
- Secure viewings faster with agents
- No impact on your credit score
Your mortgage
Notes
Staying secure when looking for property
Ensure you're up to date with our latest advice on how to avoid fraud or scams when looking for property online.
Visit our security centre to find out moreDisclaimer - Property reference 187MILLROSE. The information displayed about this property comprises a property advertisement. Rightmove.co.uk makes no warranty as to the accuracy or completeness of the advertisement or any linked or associated information, and Rightmove has no control over the content. This property advertisement does not constitute property particulars. The information is provided and maintained by Churcher Estates, Ormskirk. Please contact the selling agent or developer directly to obtain any information which may be available under the terms of The Energy Performance of Buildings (Certificates and Inspections) (England and Wales) Regulations 2007 or the Home Report if in relation to a residential property in Scotland.
*This is the average speed from the provider with the fastest broadband package available at this postcode. The average speed displayed is based on the download speeds of at least 50% of customers at peak time (8pm to 10pm). Fibre/cable services at the postcode are subject to availability and may differ between properties within a postcode. Speeds can be affected by a range of technical and environmental factors. The speed at the property may be lower than that listed above. You can check the estimated speed and confirm availability to a property prior to purchasing on the broadband provider's website. Providers may increase charges. The information is provided and maintained by Decision Technologies Limited. **This is indicative only and based on a 2-person household with multiple devices and simultaneous usage. Broadband performance is affected by multiple factors including number of occupants and devices, simultaneous usage, router range etc. For more information speak to your broadband provider.
Map data ©OpenStreetMap contributors.






