Cypress Place, Green Quarter, M4 4EH

- PROPERTY TYPE
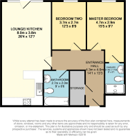
Flat
- BEDROOMS
2
- BATHROOMS
2
- SIZE
Ask agent
Key features
- Kitchen-Diner
- En-suite
- Secure Car parking
- Open Plan Lounge
- Fridge Freezer
- Full Double Glazing
- Oven/Hob
- Balcony
- Double Bedrooms
Description
Tenure: Leasehold
Rental Income: £1,450 PCM (Tenanted)
EWS1 Rating: B1 (Lender Friendly)
Parking: Secure Underground Space Included
Metro Residential are delighted to present this immaculately maintained two-bedroom apartment located on the 15th floor of the prestigious Cypress Place, part of Manchester’s iconic Greenquarter development.
This bright and stylish home enjoys panoramic views of Manchester’s city skyline and offers an ideal opportunity for first-time buyers and investors alike, with strong rental returns and a central location.
Property Highlights-
Spacious entrance hallway with integrated storage
-
Open-plan living and dining area with floor-to-ceiling windows and access to a full-length private balcony
-
Modern fitted kitchen featuring integrated appliances and a convenient breakfast bar
-
Principal double bedroom with built-in wardrobe and luxury en-suite
-
Second double bedroom, perfect as a guest room, home office, or additional rental space
-
Contemporary main bathroom with high-quality fittings
Cypress Place is celebrated for its contemporary architecture, peaceful landscaped gardens, and tranquil central water feature — a rare retreat in the heart of Manchester.
Just a short walk to Victoria Train Station, Deansgate, and the Northern Quarter, the apartment is perfectly placed for both work and leisure, with excellent transport links and local amenities nearby.
Additional Features-
Secure underground parking space
-
Lift access and secure entry system
-
Energy-efficient building with EWS1 B1 certificate
-
Currently tenanted at £1,450 PCM — excellent investment potential
This is a rare opportunity to secure a high-floor apartment in one of Manchester's most desirable developments.
Contact Metro Residential today to arrange your private viewing or request further information.
- COUNCIL TAXA payment made to your local authority in order to pay for local services like schools, libraries, and refuse collection. The amount you pay depends on the value of the property.Read more about council Tax in our glossary page.
- Band: D
- PARKINGDetails of how and where vehicles can be parked, and any associated costs.Read more about parking in our glossary page.
- Yes
- GARDENA property has access to an outdoor space, which could be private or shared.
- Yes
- ACCESSIBILITYHow a property has been adapted to meet the needs of vulnerable or disabled individuals.Read more about accessibility in our glossary page.
- Lift access,Ramped access
Cypress Place, Green Quarter, M4 4EH
Add an important place to see how long it'd take to get there from our property listings.
__mins driving to your place
Get an instant, personalised result:
- Show sellers you’re serious
- Secure viewings faster with agents
- No impact on your credit score


Your mortgage
Notes
Staying secure when looking for property
Ensure you're up to date with our latest advice on how to avoid fraud or scams when looking for property online.
Visit our security centre to find out moreDisclaimer - Property reference metro_100731032. The information displayed about this property comprises a property advertisement. Rightmove.co.uk makes no warranty as to the accuracy or completeness of the advertisement or any linked or associated information, and Rightmove has no control over the content. This property advertisement does not constitute property particulars. The information is provided and maintained by Metro Residential, Manchester. Please contact the selling agent or developer directly to obtain any information which may be available under the terms of The Energy Performance of Buildings (Certificates and Inspections) (England and Wales) Regulations 2007 or the Home Report if in relation to a residential property in Scotland.
*This is the average speed from the provider with the fastest broadband package available at this postcode. The average speed displayed is based on the download speeds of at least 50% of customers at peak time (8pm to 10pm). Fibre/cable services at the postcode are subject to availability and may differ between properties within a postcode. Speeds can be affected by a range of technical and environmental factors. The speed at the property may be lower than that listed above. You can check the estimated speed and confirm availability to a property prior to purchasing on the broadband provider's website. Providers may increase charges. The information is provided and maintained by Decision Technologies Limited. **This is indicative only and based on a 2-person household with multiple devices and simultaneous usage. Broadband performance is affected by multiple factors including number of occupants and devices, simultaneous usage, router range etc. For more information speak to your broadband provider.
Map data ©OpenStreetMap contributors.




