Willand Old Village, Cullompton, EX15

- PROPERTY TYPE
Cottage
- BEDROOMS
3
- BATHROOMS
2
- SIZE
Ask agent
- TENUREDescribes how you own a property. There are different types of tenure - freehold, leasehold, and commonhold.Read more about tenure in our glossary page.
Freehold
Key features
- Charming three-bedroom semi-detached cottage
- Located in sought-after Willand Old Village
- Spacious lounge with bay window & fireplace
- Bright dining room – ideal for entertaining
- Kitchen/breakfast room with courtyard access
- Three generous bedrooms & family bathroom
- Private courtyard garden with patio area
- On-street parking available nearby
- Close to village pub, shops, school & sports clubs
- Excellent transport links – M5 & Tiverton Parkway nearby
Description
A Cottage with Charm, Character & History
Welcome to Kirkside Cottage, a home that blends timeless village character with everyday comfort. Nestled in the peaceful setting of Willand Old Village, just steps from the Grade I listed St Mary’s Church, this is a property rich in story as well as charm.
A Home with History
Kirkside Cottage is believed to have formed part of the original church house for St Mary’s in centuries past – a place where villagers once gathered for community events. Over the years it evolved into the charming semi-detached cottage you see today, carefully retaining its period features while offering all the comforts of modern living. Its very name, Kirkside, reflects its close connection to the church and village heritage.
Once part of Willand’s historic church house, Kirkside Cottage now offers a warm and welcoming family home.
Why You’ll Love It
Step inside and feel the warmth of a home made for both relaxing and entertaining. A bay-fronted lounge with fireplace sets the tone, while a bright dining room makes family meals and celebrations a joy. The spacious kitchen/breakfast room offers plenty of room for everyday living, with two rear-facing windows and access to the courtyard.
Upstairs, three good-sized bedrooms provide peaceful retreats, complemented by a smart family bathroom.
The enclosed courtyard garden offers a low-maintenance space for summer dining, evening drinks, or quiet weekends, and on-street parking is available close by.
Accommodation Highlights
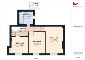
Living Room 4.56m x 5.47m (14 ft 11 x 17 ft 11) – Bay window, feature fireplace.
Dining Room 4.43m x 2.84m (14 ft 6 x 9 ft 3 max) – Bright, welcoming and versatile.
Kitchen/Breakfast Room 5.63m x 2.09m (18 ft 5 max x 6 ft 10 max) – Well-equipped, with space for appliances and table, two rear windows, and access to the courtyard.
Cloakroom/Utility – With WC, wash basin, boiler, and space for washing machine.
Bedroom 1 4.57m x 2.89m (14 ft 11 x 9 ft 5 max) – Generous double with fireplace.
Bedroom 2 3.52m x 2.58m (11 ft 6 x 8 ft 5) – Another double with front aspect.
Bedroom 3 2.89m x 277m (9ft 5 x 9ft ) – With fitted wardrobes, perfect as a guest room or study.
Family Bathroom – Well-presented with modern suite.
Outside: private courtyard garden with patio and storage.
The Setting – Willand Old Village
The cottage sits within one of Mid Devon’s most historic and desirable locations. The nearby St Mary’s Church dates from the 15th century, built of local red sandstone and famous for its medieval rood screen – one of the oldest surviving in Devon. Walking around the Old Village feels like stepping back in time, with character homes and a strong sense of community.
Life in Willand
Everyday convenience with shops, a primary school, pub, and sports clubs all within the village. Willand boasts a great community spirit, with village hall activities and Willand Rovers football club.
Superb connections – less than 3 miles to M5 J27 & J28, and Tiverton Parkway station (London Paddington in ~2 hours).
Cullompton, Tiverton, and Exeter are all close by for shopping, schooling, and dining.
With its rich history, charming character, and convenient village lifestyle, Kirkside Cottage offers a rare opportunity to own a true piece of Willand’s heritage.
EPC Band D
Council tax band C
Gas central heating
Double glazing throughout.
On-road parking to the front.
Discover Cullompton - A Blend of History, Countryside, and Connectivity
Nestled in the beautiful Devon countryside, Cullompton is a historic market town with a rich heritage dating back to Saxon times. Its charming streets are lined with traditional buildings, independent shops, and local amenities, including cosy cafés, restaurants, and a weekly farmers’ market, which showcases local produce.
The town is well catered for with not one but two supermarkets. Health services include local dentists, pharmacies, Cullompton Health Centre and Bramblehaies Surgery.
The town is surrounded by stunning natural beauty, making it an ideal base for exploring the rolling hills, woodlands, and rivers of the surrounding area.
Cullompton also offers a wide range of recreational activities. The nearby Culm Valley provides fantastic opportunities for walking, cycling, and nature watching, while the town itself boasts a variety of sports clubs and leisure facilities, tennis courts, and fitness centres. For families, there are several highly regarded schools in the area. There are plenty of outdoor activities to enjoy in the nearby Blackdown Hills Area of Outstanding Natural Beauty or visit the nearby National Trust Killerton Estate with its stunning gardens and parklands.
Transport Links
Cullompton is ideally positioned for commuters and travellers, offering excellent transport links:
Road
The M5 motorway is just minutes away, providing fast access to Cathedral City of Exeter (approximately 20 minutes by car) and within half an hour you can either be in the county town of Somerset, Taunton or be enjoying the beautiful beaches of Exmouth. This also offers convenient access to the rest of the SouthWest and beyond.
Rail
Tiverton Parkway station, located around 10 minutes away by car, provides regular services to London Paddington, Bristol, and the Midlands, making it a perfect location for those needing to travel further afield.
Air
Exeter International Airport is only a short 20-minute drive, offering domestic and international flights to a variety of destinations.
- COUNCIL TAXA payment made to your local authority in order to pay for local services like schools, libraries, and refuse collection. The amount you pay depends on the value of the property.Read more about council Tax in our glossary page.
- Ask agent
- PARKINGDetails of how and where vehicles can be parked, and any associated costs.Read more about parking in our glossary page.
- Ask agent
- GARDENA property has access to an outdoor space, which could be private or shared.
- Yes
- ACCESSIBILITYHow a property has been adapted to meet the needs of vulnerable or disabled individuals.Read more about accessibility in our glossary page.
- Ask agent
Willand Old Village, Cullompton, EX15
Add an important place to see how long it'd take to get there from our property listings.
__mins driving to your place
Get an instant, personalised result:
- Show sellers you’re serious
- Secure viewings faster with agents
- No impact on your credit score
Your mortgage
Notes
Staying secure when looking for property
Ensure you're up to date with our latest advice on how to avoid fraud or scams when looking for property online.
Visit our security centre to find out moreDisclaimer - Property reference RX609960. The information displayed about this property comprises a property advertisement. Rightmove.co.uk makes no warranty as to the accuracy or completeness of the advertisement or any linked or associated information, and Rightmove has no control over the content. This property advertisement does not constitute property particulars. The information is provided and maintained by Keller Williams Oxygen, Covering Nationwide. Please contact the selling agent or developer directly to obtain any information which may be available under the terms of The Energy Performance of Buildings (Certificates and Inspections) (England and Wales) Regulations 2007 or the Home Report if in relation to a residential property in Scotland.
*This is the average speed from the provider with the fastest broadband package available at this postcode. The average speed displayed is based on the download speeds of at least 50% of customers at peak time (8pm to 10pm). Fibre/cable services at the postcode are subject to availability and may differ between properties within a postcode. Speeds can be affected by a range of technical and environmental factors. The speed at the property may be lower than that listed above. You can check the estimated speed and confirm availability to a property prior to purchasing on the broadband provider's website. Providers may increase charges. The information is provided and maintained by Decision Technologies Limited. **This is indicative only and based on a 2-person household with multiple devices and simultaneous usage. Broadband performance is affected by multiple factors including number of occupants and devices, simultaneous usage, router range etc. For more information speak to your broadband provider.
Map data ©OpenStreetMap contributors.





