Croft, Auchtermuchty, Fife, KY14 7AS

- PROPERTY TYPE
Detached
- BEDROOMS
5
- BATHROOMS
2
- SIZE
Ask agent
- TENUREDescribes how you own a property. There are different types of tenure - freehold, leasehold, and commonhold.Read more about tenure in our glossary page.
Freehold
Key features
- Versatile Detached House
- Both Floors with Separate Street Access
- Two Public Rooms
- Ground Floor Dining/Family Kitchen
- Five Bedrooms
- Ground Floor Bathroom
- First Floor Dining Kitchen
- First Floor Bathroom
- Decking & Monobloc Areas
- Gas Central Heating & Double Glazing
Description
A pathway leads to the entrance side door which opens onto a well-proportioned kitchen offering plentiful space for dining/family area, and with a staircase leading to the upper floor lounge and accommodation. The kitchen area is fitted with floor mounted units, one tall unit and generous worktop surfaces. Four-ring gas hob, electric oven, extractor fan, integrated washing machine and fridge freezer. Sink and drainer. Splash back panelling matching worktops. Tiled floor. Dual aspect windows. A door opens onto a hallway fitted with laminate flooring, leading to the ground floor bedrooms and bathroom.
Generous sized third bedroom, offering space for double bed and free-standing furniture. Fitted wardrobe with mirror sliding doors. Behind one mirror door there is a cupboard housing the central heating boiler. Laminate fitted flooring and window to front with deep windowsill.
Bedroom four is located to the rear of the property with ample space for double bed and free-standing furniture. Within the bedroom there is an open wardrobe which is fitted with shelf and hanging rail. Laminate fitted flooring and window with deep windowsill.
The fifth bedroom provides space for double bed and two bedside units. Within the room there is an open wardrobe with shelving and hanging rail for clothing. Laminate fitted flooring and window to front with deep sill.
Well-proportioned ground floor bathroom includes wc, pedestal wash hand basin, bath with thermostatic shower and shower screen. Wet wall panelling to walls and tiled flooring.
Staircase from the kitchen leads to the first-floor accommodation.
Spacious lounge with dual aspect windows, allowing natural light to flood into the lounge area. Generous space for lounge furniture. Laminate fitted flooring. A door opens onto an inner hallway.
The inner hallway is fitted with laminate flooring, a door opens onto a further hallway leading to two bedrooms, bathroom and sitting room. Window to rear.
Master bedroom offers generous space for a double bed and free-standing furniture. Fitted wardrobe with two mirror sliding doors. Laminate fitted flooring and window to front.
Spacious second bedroom includes fitted wardrobes with mirror sliding doors. Space for double bed and free-standing furniture. Window to front. Laminate fitted flooring. A hatch with timber ladder offers access to partially floored attic space.
Three-piece bathroom includes wc, pedestal wash hand basin, bath with mixer tap, thermostatic shower above and shower screen. Tiled floors and walls.
Well-proportioned sitting area with door leading to second kitchen. Laminate fitted flooring and window overlooking front.
A second spacious dining kitchen with patio doors opening onto a mono paved area. The kitchen area is fitted with floor mounted units, ample worktop surfaces with matching splashback panelling, four ring gas hob, electric oven and extractor above. Tall unit with shelving. Integrated appliances include washing machine and fridge freezer. Sink and drainer. Window with deep windowsill to rear. Tiled floor.
Gas Central Heating & Double Glazed Windows.
Externally you will find a mono paved area which can be utilised as a sitting or parking area. External storage area with roller door. Access to integral storage area with power. Decking area. External water tap and lighting.
EPC - C
Council Tax - C
Viewings Strictly by appointment
360 Video walk through & Home Report available on request
Auchtermuchty offers primary schooling, GP health centre, dentist, chemist, post office, convenience store, Co-op, restaurant, motor engineers, Tyre shop, bowling club, hairdressers, barber, dog grooming salon, takeaway, antique shop and eatery. Various walks can be found in and around Auchtermuchty.
The village is ideally situated for travel to Perth, Newburgh, St. Andrews, Cupar, Glenrothes, Kirkcaldy and Dundee via road networks. Glasgow and Edinburgh are approximately one hours drive away, and Stirling is approximately 50 minutes drive away. There are train Stations in Ladybank and Cupar.
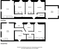
Dining Kitchen/Family Room (at widest)
14' 1'' x 19' 7'' (4.31m x 5.99m)
Bedroom Three (at widest)
12' 0'' x 13' 6'' (3.66m x 4.14m)
Bedroom Four (at widest)
9' 8'' x 10' 7'' (2.96m x 3.24m)
Bedroom Five (at widest)
7' 7'' x 8' 11'' (2.34m x 2.74m)
Bathroom (at widest)
5' 4'' x 8' 2'' (1.64m x 2.51m)
Lounge (at widest)
14' 0'' x 19' 6'' (4.3m x 5.96m)
Master Bedroom (at widest)
13' 1'' x 13' 5'' (4.01m x 4.1m)
Bedroom Two (at widest)
9' 4'' x 13' 5'' (2.88m x 4.12m)
Bathroom (at widest)
8' 5'' x 4' 4'' (2.58m x 1.34m)
Sitting Room (at widest)
14' 3'' x 14' 11'' (4.36m x 4.57m)
Dining Kitchen (at widest)
13' 9'' x 14' 2'' (4.22m x 4.33m)
- COUNCIL TAXA payment made to your local authority in order to pay for local services like schools, libraries, and refuse collection. The amount you pay depends on the value of the property.Read more about council Tax in our glossary page.
- Band: C
- PARKINGDetails of how and where vehicles can be parked, and any associated costs.Read more about parking in our glossary page.
- Yes
- GARDENA property has access to an outdoor space, which could be private or shared.
- Yes
- ACCESSIBILITYHow a property has been adapted to meet the needs of vulnerable or disabled individuals.Read more about accessibility in our glossary page.
- Ask agent
Croft, Auchtermuchty, Fife, KY14 7AS
Add an important place to see how long it'd take to get there from our property listings.
__mins driving to your place
Get an instant, personalised result:
- Show sellers you’re serious
- Secure viewings faster with agents
- No impact on your credit score
Your mortgage
Notes
Staying secure when looking for property
Ensure you're up to date with our latest advice on how to avoid fraud or scams when looking for property online.
Visit our security centre to find out moreDisclaimer - Property reference 710655. The information displayed about this property comprises a property advertisement. Rightmove.co.uk makes no warranty as to the accuracy or completeness of the advertisement or any linked or associated information, and Rightmove has no control over the content. This property advertisement does not constitute property particulars. The information is provided and maintained by Harley Estate Agents, Covering Scotland. Please contact the selling agent or developer directly to obtain any information which may be available under the terms of The Energy Performance of Buildings (Certificates and Inspections) (England and Wales) Regulations 2007 or the Home Report if in relation to a residential property in Scotland.
*This is the average speed from the provider with the fastest broadband package available at this postcode. The average speed displayed is based on the download speeds of at least 50% of customers at peak time (8pm to 10pm). Fibre/cable services at the postcode are subject to availability and may differ between properties within a postcode. Speeds can be affected by a range of technical and environmental factors. The speed at the property may be lower than that listed above. You can check the estimated speed and confirm availability to a property prior to purchasing on the broadband provider's website. Providers may increase charges. The information is provided and maintained by Decision Technologies Limited. **This is indicative only and based on a 2-person household with multiple devices and simultaneous usage. Broadband performance is affected by multiple factors including number of occupants and devices, simultaneous usage, router range etc. For more information speak to your broadband provider.
Map data ©OpenStreetMap contributors.




