
Trinity Road, SW17

- PROPERTY TYPE
House
- BEDROOMS
6
- BATHROOMS
5
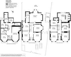
- SIZE
6,291 sq ft
584 sq m
- TENUREDescribes how you own a property. There are different types of tenure - freehold, leasehold, and commonhold.Read more about tenure in our glossary page.
Freehold
Key features
- Drawing room
- Two reception rooms
- Dining room
- Kitchen
- Media room
- Office
- Two studies
- Gym
- Six bedrooms
- Five bathrooms
Description
Available for sale for the first time in over 25 years, having only had four previous owners since it’s construction in 1907, this is undoubtedly one of Wandsworth’s finest homes. Sitting on a 0.5-acre plot, the property offers almost 6,300 sq ft of accommodation arranged over three floors, together with a 291 ft garden to the rear.
Upon entering the property, you are welcomed by the rare cloisonné glass panels in the internal front doors and Venetian mosaic floor in the entrance hall. The spacious hallway leads to four large reception rooms which all feature impressive marble fireplaces. Two of these reception rooms are front facing with vast bay windows flooding the rooms with natural light. One is currently used as a dining room and the second as a sitting room with stunning floor to ceiling integrated bookshelves. There is a further sitting room (previously used as a playroom) in the centre of this floor which also provides side access to the garden.
The main drawing room is at the rear of the house with a grand, original marble fireplace is afforded fantastic views over the magnificent garden from its deep bay window and is a wonderful space in which to entertain. French doors lead to the garden.
The adjacent kitchen features smart, shaker style units with plenty of storage, integrated appliances and marble work surfaces. There is also ample room to sit, eat and entertain. A downstairs cloakroom completes the ground floor accommodation.
Six generous air-conditioned double bedrooms are arranged over the first floor, including an indulgent principal bedroom suite with a domed glazed roof, together with a picture window which perfectly frames the garden. The bed sits in the centre of the room, with a shower and dressing room hidden behind a full height fitted headboard. Two further bedrooms include en-suite bathrooms and there is an additional family bathroom. The large loft could be converted to provide additional bedroom accommodation if required (subject to planning).
The lower ground floor provides further living and entertaining space, comprising a large study, two further studies/homework rooms, a gym, shower room, utility room and large store room and a large cinema/media room with integrated 7.1 surround sound system and Sony 4K projector mounted on automatic ceiling lift, automatic screen and electric blind.
The garden is without compare and it is incredibly rare to find a garden of this size in the local area. Consisting of several sections, including a wild flower area, an extensive lawned area flanked by mature borders, a tree house and four useful garden sheds. The generous patio area creates the perfect space for al fresco dining in the warmer months.
The house is in excellent decorative order and further benefits from off-street parking for multiple cars behind automatic gates, together with a detached garage, a commercial standard internal wi-fi network with uninterrupted signal throughout the house and entire garden. The house also benefits from a Control 4 integrated audio-visual system, CCTV security and video entry camera.
Conveniently located on Trinity Road, the property is ideally located for all of the amenities of Bellevue Village and the green spaces of Wandsworth Common. Tooting Bec Underground station is a short distance away and provides quick and convenient access to the City via Bank. Wandsworth Common station is also within easy reach with services to Clapham Junction and Victoria. There are also several desirable schools nearby.
Council Band Tax: H | EPC: D | Tenure: Freehold
Brochures
Particulars- COUNCIL TAXA payment made to your local authority in order to pay for local services like schools, libraries, and refuse collection. The amount you pay depends on the value of the property.Read more about council Tax in our glossary page.
- Band: A
- PARKINGDetails of how and where vehicles can be parked, and any associated costs.Read more about parking in our glossary page.
- Yes
- GARDENA property has access to an outdoor space, which could be private or shared.
- Yes
- ACCESSIBILITYHow a property has been adapted to meet the needs of vulnerable or disabled individuals.Read more about accessibility in our glossary page.
- Ask agent
Trinity Road, SW17
Add an important place to see how long it'd take to get there from our property listings.
__mins driving to your place
Get an instant, personalised result:
- Show sellers you’re serious
- Secure viewings faster with agents
- No impact on your credit score
Affordability
Notes
Staying secure when looking for property
Ensure you're up to date with our latest advice on how to avoid fraud or scams when looking for property online.
Visit our security centre to find out moreDisclaimer - Property reference BAS230399. The information displayed about this property comprises a property advertisement. Rightmove.co.uk makes no warranty as to the accuracy or completeness of the advertisement or any linked or associated information, and Rightmove has no control over the content. This property advertisement does not constitute property particulars. The information is provided and maintained by Rampton Baseley, Wandsworth. Please contact the selling agent or developer directly to obtain any information which may be available under the terms of The Energy Performance of Buildings (Certificates and Inspections) (England and Wales) Regulations 2007 or the Home Report if in relation to a residential property in Scotland.
*This is the average speed from the provider with the fastest broadband package available at this postcode. The average speed displayed is based on the download speeds of at least 50% of customers at peak time (8pm to 10pm). Fibre/cable services at the postcode are subject to availability and may differ between properties within a postcode. Speeds can be affected by a range of technical and environmental factors. The speed at the property may be lower than that listed above. You can check the estimated speed and confirm availability to a property prior to purchasing on the broadband provider's website. Providers may increase charges. The information is provided and maintained by Decision Technologies Limited. **This is indicative only and based on a 2-person household with multiple devices and simultaneous usage. Broadband performance is affected by multiple factors including number of occupants and devices, simultaneous usage, router range etc. For more information speak to your broadband provider.
Map data ©OpenStreetMap contributors.





