
Southdowns Park, Haywards Heath, RH16

- PROPERTY TYPE
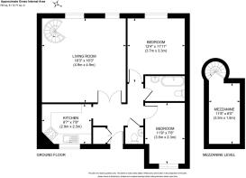
Mews
- BEDROOMS
2
- BATHROOMS
1
- SIZE
783 sq ft
73 sq m
Key features
- Recently refurbished Mews cottage
- Flexible accommodation with up to 3 bedrooms
- Beautiful, newly renovated kitchen
- Living room with mezzanine office/bed 3 above
- 2 further double bedrooms and bathroom
- High ceilings and tall sash windows
- Redecorated and new engineered oak floors
- Parking space (247) directly in front of property
- Access to gymnasium included in charges
- Charges also include building insurance, domestic water rates and garden maintenance
Description
Guide Price £300,000 - £325,000 - PLEASE WATCH THE VIDEO BEFORE BOOKING AN APPOINTMENT - A beautifully presented 2 bedroom mews cottage which has character accommodation with high ceilings and has been the recent subject of major refurbishment to create a really lovely home in the grounds of this Grade II listed former Victorian hospital where the residents enjoy some fantastic facilities including a gymnasium, stunning gardens with designated barbecue area and a parking space directly outside.
Tenure: Leasehold 125 years from 10.03.1997
Ground: £150 per year - We are not aware of any increases to the ground rent
Estate and service charge: £2785 for the current year which includes building insurance, use of the gym, garden maintenance, water rates, contributions to the sinking fund and the services of the friendly concierge.
EPC Rating: C
Brochures
Property Brochure- COUNCIL TAXA payment made to your local authority in order to pay for local services like schools, libraries, and refuse collection. The amount you pay depends on the value of the property.Read more about council Tax in our glossary page.
- Band: D
- PARKINGDetails of how and where vehicles can be parked, and any associated costs.Read more about parking in our glossary page.
- Yes
- GARDENA property has access to an outdoor space, which could be private or shared.
- Yes
- ACCESSIBILITYHow a property has been adapted to meet the needs of vulnerable or disabled individuals.Read more about accessibility in our glossary page.
- Ask agent
Energy performance certificate - ask agent
Southdowns Park, Haywards Heath, RH16
Add an important place to see how long it'd take to get there from our property listings.
__mins driving to your place
Get an instant, personalised result:
- Show sellers you’re serious
- Secure viewings faster with agents
- No impact on your credit score



Your mortgage
Notes
Staying secure when looking for property
Ensure you're up to date with our latest advice on how to avoid fraud or scams when looking for property online.
Visit our security centre to find out moreDisclaimer - Property reference 27b62490-b3c7-4bc4-953b-dcef3c21a5bd. The information displayed about this property comprises a property advertisement. Rightmove.co.uk makes no warranty as to the accuracy or completeness of the advertisement or any linked or associated information, and Rightmove has no control over the content. This property advertisement does not constitute property particulars. The information is provided and maintained by Mansell McTaggart, Haywards Heath. Please contact the selling agent or developer directly to obtain any information which may be available under the terms of The Energy Performance of Buildings (Certificates and Inspections) (England and Wales) Regulations 2007 or the Home Report if in relation to a residential property in Scotland.
*This is the average speed from the provider with the fastest broadband package available at this postcode. The average speed displayed is based on the download speeds of at least 50% of customers at peak time (8pm to 10pm). Fibre/cable services at the postcode are subject to availability and may differ between properties within a postcode. Speeds can be affected by a range of technical and environmental factors. The speed at the property may be lower than that listed above. You can check the estimated speed and confirm availability to a property prior to purchasing on the broadband provider's website. Providers may increase charges. The information is provided and maintained by Decision Technologies Limited. **This is indicative only and based on a 2-person household with multiple devices and simultaneous usage. Broadband performance is affected by multiple factors including number of occupants and devices, simultaneous usage, router range etc. For more information speak to your broadband provider.
Map data ©OpenStreetMap contributors.





