
Edinburgh Crescent, Leamington Spa

- PROPERTY TYPE
Detached
- BEDROOMS
3
- BATHROOMS
1
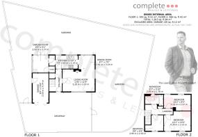
- SIZE
1,013 sq ft
94 sq m
- TENUREDescribes how you own a property. There are different types of tenure - freehold, leasehold, and commonhold.Read more about tenure in our glossary page.
Freehold
Key features
- 1950's Detached
- Corner Plot
- Three Bedrooms
- Re-Fitted Bathroom
- Lounge Diner & Kitchen
- 5 Minute Walk To The Train Station
- Conservatory & Store
- Garage & Off Road Parking
- Walking Distance To Town
- No Chain & Close To M40
Description
It's in the details...
Entrance Hall
Composite entry door leads into the hallway, which has timber-effect laminate flooring, carpeted stairs to the first floor, a radiator and glazed timber doors through to the kitchen and living room. There is an under-storage cupboard.
Living/ Dining Room
L-shaped lounge diner with a gas fireplace, three uPVC double glazed windows and coving. Two radiators and an archway through to the kitchen.
Kitchen
Top timber units with black worktops, a Bosch fitted oven, a five-ring gas hob and an extractor over. A one-and-a-half bowl stainless steel sink with mixer tap and drainer, a fitted dishwasher, a fitted fridge freezer, a fitted under-the-counter fridge and splashback tiling. Two uPVC double glazed windows, black tiled floor, door back to the hallway and an open doorway through to the cloak storage.
Cloaks
With hanging space for coats and space for shoes, a useful shelf and the Worcester gas boiler. A modern oak glazed door leads through to the garden room.
Garden Room
Originally a conservatory with uPVC double glazed units, brick base with electrics, now an insulated solid roof with downlighting, uPVC double glazed French door to the garden and a door to a storage cupboard with a fitted fridge and a deep shelf.
Landing
A uPVC double glazed window, thermostat, shelved storage cabinet, doors to two bedrooms and the bathroom and a glazed door to the third bedroom. Loft hatch.
Bedroom One
A spacious double bedroom with two uPVC double glazed windows overlooking the front. There is ample space for wardrobes and other bedroom furniture. Feature wallpaper wall and a radiator.
Bedroom Two
A spacious double bedroom with two uPVC double glazed windows overlooking the rear garden and there is a radiator.
Bedroom Three
A single bedroom with a uPVC double glazed window and radiator.
Bathroom
Very stylish, re-fitted bathroom, with a deep bath with a chrome mixer tap, double-width glass door shower enclosure with a mains thermostatic shower and tiled boxing. A concealed waste toilet unit with vanity storage, a surface sink and a chrome mixer tap. The bathroom is fully tiled, has down-lights, an extractor, an LED mirror cabinet and a chrome towel radiator. There is also a frosted uPVC double glazed window.
Garden
Garden has a large patio, lawn, bedded borders with planting, bushes and flowers. Brick retained area, with a patio and a pergola. Patio decide the property with space for a greenhouse. Gated access to the front.
Drive & Frontage
A block paved drive for parking 2 cars, there are some hedgerow and planting areas. Picket fence to the side garden. Gate leads to the rear garden.
Garage
An attached brick-built garage with two front doors, power and lighting. Pedestrian side door to the garden.
Location
The property is located to the South of Leamington Spa, within walking distance of Leamington Spa town centre and all that it has to offer; Independent retailers, specialist boutiques and national chains are found in the Royal Priors Mall and the attractive nearby streets, along with over forty restaurants, bars, brasseries and gastropubs. The property is ideally situated for the commuter, with a five minute walk to the train station and close to the A46 and M40. There is an excellent rail service from Leamington station, which is a few minutes walk - Regular trains to Birmingham and London Marylebone.
Brochures
Edinburgh Crescent, Leamington Spa- COUNCIL TAXA payment made to your local authority in order to pay for local services like schools, libraries, and refuse collection. The amount you pay depends on the value of the property.Read more about council Tax in our glossary page.
- Band: B
- PARKINGDetails of how and where vehicles can be parked, and any associated costs.Read more about parking in our glossary page.
- Yes
- GARDENA property has access to an outdoor space, which could be private or shared.
- Yes
- ACCESSIBILITYHow a property has been adapted to meet the needs of vulnerable or disabled individuals.Read more about accessibility in our glossary page.
- Ask agent
Energy performance certificate - ask agent
Edinburgh Crescent, Leamington Spa
Add an important place to see how long it'd take to get there from our property listings.
__mins driving to your place
Get an instant, personalised result:
- Show sellers you’re serious
- Secure viewings faster with agents
- No impact on your credit score


Your mortgage
Notes
Staying secure when looking for property
Ensure you're up to date with our latest advice on how to avoid fraud or scams when looking for property online.
Visit our security centre to find out moreDisclaimer - Property reference 34175165. The information displayed about this property comprises a property advertisement. Rightmove.co.uk makes no warranty as to the accuracy or completeness of the advertisement or any linked or associated information, and Rightmove has no control over the content. This property advertisement does not constitute property particulars. The information is provided and maintained by Complete Estate Agents, Leamington Spa. Please contact the selling agent or developer directly to obtain any information which may be available under the terms of The Energy Performance of Buildings (Certificates and Inspections) (England and Wales) Regulations 2007 or the Home Report if in relation to a residential property in Scotland.
*This is the average speed from the provider with the fastest broadband package available at this postcode. The average speed displayed is based on the download speeds of at least 50% of customers at peak time (8pm to 10pm). Fibre/cable services at the postcode are subject to availability and may differ between properties within a postcode. Speeds can be affected by a range of technical and environmental factors. The speed at the property may be lower than that listed above. You can check the estimated speed and confirm availability to a property prior to purchasing on the broadband provider's website. Providers may increase charges. The information is provided and maintained by Decision Technologies Limited. **This is indicative only and based on a 2-person household with multiple devices and simultaneous usage. Broadband performance is affected by multiple factors including number of occupants and devices, simultaneous usage, router range etc. For more information speak to your broadband provider.
Map data ©OpenStreetMap contributors.





