2 White Friars - Second Floor, Chester, Cheshire, CH1 1NZ
- SIZE AVAILABLE
1,061 sq ft
99 sq m
- SECTOR
Office to lease
Lease details
- Lease available date:
- Ask agent
Key features
- Offices
- Chester City Centre
- Prominent Location
- Incentives available
- Long and short term leases
Description
The ground floor is a Café Nero with 3 floors of offices above.
The second floor is available
Fully furnished
SHORT TERM LETTING
6 MONTHS
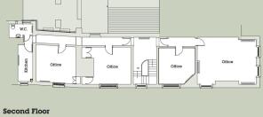
Reception area, meeting room, main office area, second office area, staff kitchen, WC.
Ideal office for between 5 and 10 people in the heart of the city. Close to city centre car parks
Rent @ £1,150 pcm + VAT
Service charge to include electricity, gas, water and cleaning shared areas budgeted @ £755 pcm + VAT
Qualifies for zero rates (Rateable value = £10,250)
Brochures
2 White Friars - Second Floor, Chester, Cheshire, CH1 1NZ
NEAREST STATIONS
Distances are straight line measurements from the centre of the postcode- Chester Station0.7 miles
- Bache Station1.4 miles
- Capenhurst Station5.4 miles
Notes
Disclaimer - Property reference 5810LH. The information displayed about this property comprises a property advertisement. Rightmove.co.uk makes no warranty as to the accuracy or completeness of the advertisement or any linked or associated information, and Rightmove has no control over the content. This property advertisement does not constitute property particulars. The information is provided and maintained by Legat Owen, Chester. Please contact the selling agent or developer directly to obtain any information which may be available under the terms of The Energy Performance of Buildings (Certificates and Inspections) (England and Wales) Regulations 2007 or the Home Report if in relation to a residential property in Scotland.
Map data ©OpenStreetMap contributors.





