Barn for sale
Olchon House Farm, Longtown

- PROPERTY TYPE
Barn
- BEDROOMS
8
- BATHROOMS
4
- SIZE
Ask agent
- TENUREDescribes how you own a property. There are different types of tenure - freehold, leasehold, and commonhold.Read more about tenure in our glossary page.
Freehold
Key features
- P251501/PA4
- To give two detached four-bed homes
- Tranquil rural setting
- Village with amenities nearby
- Outstanding mountain views
- Circa 2 acres
Description
This unconverted barn carries planning permission for conversion into two detached properties, each of which would boast four bedrooms. The two-acre plot is tucked away in the Olchon Valley, Herefordshire's best-kept secret. This scenic and diverse valley is enveloped by the Black Mountains of South Wales and therefore boasts stunning views and rich wildlife.
Location
Longtown, the nearest village, is a few minutes' drive from the barn. It is appointed with a family-run country inn, an award-winning independent village shop and post office, a village hall, an art studio, and a primary school that is graded 'Good' by Ofsted. There is also a 12th-century castle, which gives the village a striking skyline. The Offa's Dyke footpath - a walking trail that spans 177 miles along the English-Welsh border and passes through diverse landscapes - runs close to Longtown and therefore the hike is easily accessible.
A little further afield - around six miles away - there is another idyllic village; Ewyas Harold, which is contiguous with the neighbouring village of Pontrilas, and this carries even more amenities, including a post office, a GP surgery, a dentist's surgery, a veterinary's surgery, a reputable primary school, a fish and chip shop, a butcher's shop, several public houses, and various places of worship.
More comprehensive facilities can be found in the cathedral city of Hereford, or the market towns of Ross-on-Wye, Abergavenny, and Monmouth.
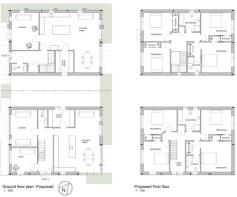
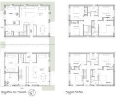
The proposal at a glance
Herefordshire Council granted planning permission on July 7, 2025 (reference P251501/PA4). The existing building - a five-bay steel-frame barn with a pitched roof - has permission to be converted into two properties. The central bay would be removed, therefore creating two detached homes.
Once completed, each home would be over 200 square metres in size, and the total plot size is circa two acres.
The completed properties would be set over two storeys. Both would have four bedrooms, and each master bedroom would also have an en-suite shower room. There would also be an open-plan dining kitchen, two reception rooms, a family bathroom, a cloakroom, and a utility/plant room.
In terms of parking arrangements, there is a concrete hardstanding, which would give a total of six parking bays.
Owing to the valley location, the grounds gradually slope downhill to the Olchon Brook, a tributary of the Monnow, offering a phenomenally beautiful landscape to explore.
General
Services
In the location, mains electricity and water are available. There is also a telephone line in the vicinity. However, there is no mains gas supply or public drainage; therefore, a septic tank or domestic treatment plant will be required, and the heating source is likely to be via an air source heat pump or LPG.
Directions
Beginning at Longtown Village Hall, turn left out of the car park and pass the castle and the primary school. Keep on following this road for around three-quarters of a mile, then turn left towards Brass Knoll. Continue along this road, and when you reach the sign for Lower House Farm, instead take the downhill left-hand fork in the road. Continue for around 450 metres, then take the right-hand turning. Continue on this lane for around just shy of half a mile, and the barn will be on the right-hand side.
What3Words: amended.buns.proclaims
Distances
Longtown 1.5 miles - Abergavenny 12 miles - Hay on Wye 12 miles - Hereford 20 miles - Monmouth 22 miles - Ross-on-Wye 27 miles -
Agent's note: The acreage would need to be verified by your solicitor.
- COUNCIL TAXA payment made to your local authority in order to pay for local services like schools, libraries, and refuse collection. The amount you pay depends on the value of the property.Read more about council Tax in our glossary page.
- Band: TBC
- PARKINGDetails of how and where vehicles can be parked, and any associated costs.Read more about parking in our glossary page.
- Off street
- GARDENA property has access to an outdoor space, which could be private or shared.
- Yes
- ACCESSIBILITYHow a property has been adapted to meet the needs of vulnerable or disabled individuals.Read more about accessibility in our glossary page.
- Ask agent
Energy performance certificate - ask agent
Olchon House Farm, Longtown
Add an important place to see how long it'd take to get there from our property listings.
__mins driving to your place
Get an instant, personalised result:
- Show sellers you’re serious
- Secure viewings faster with agents
- No impact on your credit score



Your mortgage
Notes
Staying secure when looking for property
Ensure you're up to date with our latest advice on how to avoid fraud or scams when looking for property online.
Visit our security centre to find out moreDisclaimer - Property reference 101453002763. The information displayed about this property comprises a property advertisement. Rightmove.co.uk makes no warranty as to the accuracy or completeness of the advertisement or any linked or associated information, and Rightmove has no control over the content. This property advertisement does not constitute property particulars. The information is provided and maintained by Hamilton Stiller, Ross-On-Wye. Please contact the selling agent or developer directly to obtain any information which may be available under the terms of The Energy Performance of Buildings (Certificates and Inspections) (England and Wales) Regulations 2007 or the Home Report if in relation to a residential property in Scotland.
*This is the average speed from the provider with the fastest broadband package available at this postcode. The average speed displayed is based on the download speeds of at least 50% of customers at peak time (8pm to 10pm). Fibre/cable services at the postcode are subject to availability and may differ between properties within a postcode. Speeds can be affected by a range of technical and environmental factors. The speed at the property may be lower than that listed above. You can check the estimated speed and confirm availability to a property prior to purchasing on the broadband provider's website. Providers may increase charges. The information is provided and maintained by Decision Technologies Limited. **This is indicative only and based on a 2-person household with multiple devices and simultaneous usage. Broadband performance is affected by multiple factors including number of occupants and devices, simultaneous usage, router range etc. For more information speak to your broadband provider.
Map data ©OpenStreetMap contributors.




