
4 bedroom detached house for sale
Hammersley Lane, High Wycombe,

- PROPERTY TYPE
Detached
- BEDROOMS
4
- BATHROOMS
3
- SIZE
Ask agent
- TENUREDescribes how you own a property. There are different types of tenure - freehold, leasehold, and commonhold.Read more about tenure in our glossary page.
Freehold
Key features
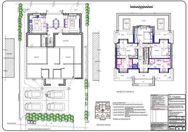
- PLANNING IN PLACE FOR LARGE DETACHED HOUSE
- NO ONWARD CHAIN
- LARGE PLOT
- CATCHMENT FOR SOME GREAT SCHOOLS
- EASY ACCESS TO JUNCTION 3 OF THE M40
- FANTASTIC VIEWS ACROSS THE VALLEY
- EARLY VIEWING ADVISED
- 25/06182/FUL - PLANNING REF NUMBER
- SOUTH WEST FACING REAR GARDEN
- VIEWINGS AVAILABLE 7 DAYS A WEEK
Description
Hurst are delighted to bring to market this exciting opportunity for anyone that is looking to build their own home or that would just be interested in extending the current bungalow that currently sits on this plot. Plans have been drawn up and permission passed (see plans in images) for a substantial family home to be built in this popular location on the outskirts of the town / Penn & Tyler's Green, that sits on a large plot, providing fantastic views across adjacent fields / Valley and comes with a South-West facing rear garden. There have been a number of properties in the road that have undergone similar changes and an array of new builds in recent years that have sold for prices in the region of 1.1m - 1.3m. Situated to the East of High Wycombe's town centre and close to Popular villages, this site provides the new owner with a perfect blend of rural living and convenient access to transport networks that include junction 3 of the M40, Beaconsfield & High Wycombe train stations of which the latter provides a direct line into London Marylebone. This really is an exciting opportunity that comes with no onward chain and an early viewing is highly recommended.
Brochures
HAMMERSLEY LANE, HIGH WYCOMBE,Planning InformationBrochure- COUNCIL TAXA payment made to your local authority in order to pay for local services like schools, libraries, and refuse collection. The amount you pay depends on the value of the property.Read more about council Tax in our glossary page.
- Band: E
- PARKINGDetails of how and where vehicles can be parked, and any associated costs.Read more about parking in our glossary page.
- Ask agent
- GARDENA property has access to an outdoor space, which could be private or shared.
- Yes
- ACCESSIBILITYHow a property has been adapted to meet the needs of vulnerable or disabled individuals.Read more about accessibility in our glossary page.
- Ask agent
Energy performance certificate - ask agent
Hammersley Lane, High Wycombe,
Add an important place to see how long it'd take to get there from our property listings.
__mins driving to your place
Get an instant, personalised result:
- Show sellers you’re serious
- Secure viewings faster with agents
- No impact on your credit score

Your mortgage
Notes
Staying secure when looking for property
Ensure you're up to date with our latest advice on how to avoid fraud or scams when looking for property online.
Visit our security centre to find out moreDisclaimer - Property reference 34176917. The information displayed about this property comprises a property advertisement. Rightmove.co.uk makes no warranty as to the accuracy or completeness of the advertisement or any linked or associated information, and Rightmove has no control over the content. This property advertisement does not constitute property particulars. The information is provided and maintained by Hurst Estate Agents, South Buckinghamshire. Please contact the selling agent or developer directly to obtain any information which may be available under the terms of The Energy Performance of Buildings (Certificates and Inspections) (England and Wales) Regulations 2007 or the Home Report if in relation to a residential property in Scotland.
*This is the average speed from the provider with the fastest broadband package available at this postcode. The average speed displayed is based on the download speeds of at least 50% of customers at peak time (8pm to 10pm). Fibre/cable services at the postcode are subject to availability and may differ between properties within a postcode. Speeds can be affected by a range of technical and environmental factors. The speed at the property may be lower than that listed above. You can check the estimated speed and confirm availability to a property prior to purchasing on the broadband provider's website. Providers may increase charges. The information is provided and maintained by Decision Technologies Limited. **This is indicative only and based on a 2-person household with multiple devices and simultaneous usage. Broadband performance is affected by multiple factors including number of occupants and devices, simultaneous usage, router range etc. For more information speak to your broadband provider.
Map data ©OpenStreetMap contributors.





