1a, Edge Hill, Plumstead, SE18
- PROPERTY TYPE
Shop
- BEDROOMS
2
- BATHROOMS
1
- SIZE
Ask agent
Key features
- Freehold Victorian building over three floors
- Ground floor commercial unit
- Large 2-bedroom flat over upper two floors
- Rear yard space
- Gas central heating & double glazing
- Walking distance to Woolwich Elizabeth Line, DLR & mainline stations
- Excellent development potential (STPP)
- Close to Herbert Road amenities
Description
Hi Residential are pleased to present this spacious and versatile Victorian property arranged over three floors, offering both residential and commercial accommodation with significant development potential (STPP).
The ground floor comprises a well-proportioned retail unit with excellent street frontage, while the upper floors host a large two-bedroom split-level flat, accessed separately. The entire property is in good condition throughout and benefits from double glazing, gas central heating, and a private yard to the rear.
This freehold opportunity presents exceptional scope for investors or developers. Subject to the necessary planning permissions, there is potential to extend to the rear with a double-storey addition and convert the ground floor retail unit into a residential dwelling—potentially transforming the building into three self-contained units.
Ideally located just a short walk from Woolwich town centre, with Elizabeth Line, DLR and mainline rail services, and only minutes from the local shopping amenities of Herbert Road, this property combines convenience, character, and long-term potential in a high-demand area.
Key Features:
Freehold Victorian building over three floors
Ground floor commercial unit
Large 2-bedroom flat over upper two floors
Rear yard space
Gas central heating & double glazing
Excellent development potential (STPP)
Walking distance to Woolwich Elizabeth Line, DLR & mainline stations
Close to Herbert Road amenities
This is an excellent opportunity for both seasoned developers and buy-to-let investors. Contact Hi Residential today for further details or to arrange a viewing.
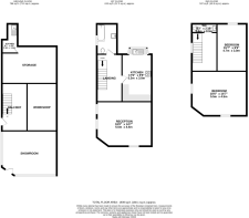
Lounge
5m x 4.5m - 16'5" x 14'9"
Large lounge with high ceiling and lots of natural light. Double glazed windows and carpet.
Kitchen/Diner
4.9m x 3m - 16'1" x 9'10"
Fitted kitchen with a range of wall and base units. Electric cooker, washing machine and fridge/freezer. Double glazed windows and vinyl flooring.
Bathroom
Large bathroom with shower over bath.
Cloakroom
Cloakroom on the second floor.
Bedroom 1
4.7m x 4.5m - 15'5" x 14'9"
Large double bedroom, double glazed windows and carpet.
Bedroom 2
4m x 2.7m - 13'1" x 8'10"
Double bedroom, double glazed windows and carpet
Energy Performance Certificates
EPC 11a, Edge Hill, Plumstead, SE18
NEAREST STATIONS
Distances are straight line measurements from the centre of the postcode- Woolwich Arsenal Station0.6 miles
- Woolwich Station0.7 miles
- Plumstead Station0.8 miles

Notes
Disclaimer - Property reference S_10611043. The information displayed about this property comprises a property advertisement. Rightmove.co.uk makes no warranty as to the accuracy or completeness of the advertisement or any linked or associated information, and Rightmove has no control over the content. This property advertisement does not constitute property particulars. The information is provided and maintained by hi-residential, South East London. Please contact the selling agent or developer directly to obtain any information which may be available under the terms of The Energy Performance of Buildings (Certificates and Inspections) (England and Wales) Regulations 2007 or the Home Report if in relation to a residential property in Scotland.
Map data ©OpenStreetMap contributors.





