
Guildford Road, Lightwater, Surrey, GU18

- PROPERTY TYPE
Semi-Detached
- BEDROOMS
2
- BATHROOMS
1
- SIZE
Ask agent
- TENUREDescribes how you own a property. There are different types of tenure - freehold, leasehold, and commonhold.Read more about tenure in our glossary page.
Freehold
Description
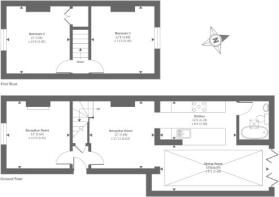
Traditionally laid out you will find a cozy sitting room to the front which features a open fireplace and a dining room to the rear that is open plan to the kitchen and the extended reception area. Flooded with natural light via the overhead lantern, there is flexibility in how you can use this area, and the open plan nature of the property lends itself well to becoming a entertaining space.
The kitchen is fitted with a range of high gloss units, squared edge worktops and integrated appliances and the bathroom has also been fitted to a good standard and is also located on the ground floor.
Heading upstairs you will find two generous double bedrooms of the same size.
To the rear the large garden offers a blank canvass for the keen gardener to restore and make their own.
Lightwater is a popular Surrey village location that features well regarded schools and a range of independent businesses. Transport links are nearby. By road, Central London is around 27 miles away and is easily reached via the M3, the M4 and the M25. Heathrow Airport is about 11 miles away and Gatwick is about 35 miles distant. Regular train services to London (Waterloo) are available from Bagshot, Woking or Sunningdale. Ascot, 3.9 miles away, and the surrounding towns of Camberley, Woking and the villages are well known for their boutiques, bars, brasseries and traditional country public houses. The area also boasts some of the finest restaurants, with The Latymer at Pennyhill Park Hotel & Spa in Bagshot and The Dorchester Collection Coworth Park in Ascot.
Brochures
Particulars- COUNCIL TAXA payment made to your local authority in order to pay for local services like schools, libraries, and refuse collection. The amount you pay depends on the value of the property.Read more about council Tax in our glossary page.
- Band: TBC
- PARKINGDetails of how and where vehicles can be parked, and any associated costs.Read more about parking in our glossary page.
- Ask agent
- GARDENA property has access to an outdoor space, which could be private or shared.
- Yes
- ACCESSIBILITYHow a property has been adapted to meet the needs of vulnerable or disabled individuals.Read more about accessibility in our glossary page.
- Ask agent
Guildford Road, Lightwater, Surrey, GU18
Add an important place to see how long it'd take to get there from our property listings.
__mins driving to your place
Get an instant, personalised result:
- Show sellers you’re serious
- Secure viewings faster with agents
- No impact on your credit score
Your mortgage
Notes
Staying secure when looking for property
Ensure you're up to date with our latest advice on how to avoid fraud or scams when looking for property online.
Visit our security centre to find out moreDisclaimer - Property reference HOR230221. The information displayed about this property comprises a property advertisement. Rightmove.co.uk makes no warranty as to the accuracy or completeness of the advertisement or any linked or associated information, and Rightmove has no control over the content. This property advertisement does not constitute property particulars. The information is provided and maintained by Seymours Estate Agents, Lightwater. Please contact the selling agent or developer directly to obtain any information which may be available under the terms of The Energy Performance of Buildings (Certificates and Inspections) (England and Wales) Regulations 2007 or the Home Report if in relation to a residential property in Scotland.
*This is the average speed from the provider with the fastest broadband package available at this postcode. The average speed displayed is based on the download speeds of at least 50% of customers at peak time (8pm to 10pm). Fibre/cable services at the postcode are subject to availability and may differ between properties within a postcode. Speeds can be affected by a range of technical and environmental factors. The speed at the property may be lower than that listed above. You can check the estimated speed and confirm availability to a property prior to purchasing on the broadband provider's website. Providers may increase charges. The information is provided and maintained by Decision Technologies Limited. **This is indicative only and based on a 2-person household with multiple devices and simultaneous usage. Broadband performance is affected by multiple factors including number of occupants and devices, simultaneous usage, router range etc. For more information speak to your broadband provider.
Map data ©OpenStreetMap contributors.






