Duckpool Road, Newport, NP19

- PROPERTY TYPE
Terraced
- BEDROOMS
3
- BATHROOMS
1
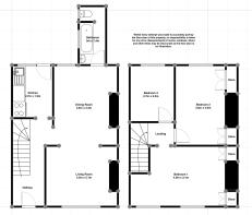
- SIZE
861 sq ft
80 sq m
- TENUREDescribes how you own a property. There are different types of tenure - freehold, leasehold, and commonhold.Read more about tenure in our glossary page.
Freehold
Key features
- Buy-To-Let
- Refurbishment needed
- Large open living area
- Good investment property
- Generous Garden
- Good location
Description
Ideal for buy-to-let investors seeking a renovation project with excellent transport links, this spacious home offers strong long-term potential. With a generous garden, two reception rooms and located just a mile from both the train station and city centre, it’s an opportunity worth viewing without delay.
This property presents a clear opportunity to add value. The ground floor includes two good-sized reception rooms. Both rooms enjoy plenty of natural light, and with the right updates could offer well-balanced living and dining space for future tenants. The kitchen sits to the rear and, while in need of full refurbishment, is a practical size with direct access to the garden, making it a workable base for a modern refit.
The bathroom, positioned on the ground floor, also needs modernisation
Upstairs, there are three bedrooms that vary in size — all of which will require updating but are well suited to standard rental requirements. Throughout the home, the layout remains practical, with the potential to be adapted into a comfortable long-term let or a quick-turnaround renovation.
The garden is one of the key highlights, offering a much larger space than typically expected for this style of property. For tenants, it offers sought-after outdoor space; for investors, it presents further scope, whether for low-maintenance landscaping or potential extension, subject to the usual permissions. Its size and privacy make it an appealing feature, especially in a location so close to the town and commuter routes.
Set only a mile from both the train station and the city centre, the location is ideal for working professionals and young families, giving strong rental appeal. The nearby town centre offers a range of shops, supermarkets and amenities, all within walking distance, while the close proximity to the M4 opens up easy connections to wider commuter routes. Regular trains from the local station offer direct links into Cardiff and beyond, further boosting the property’s attractiveness to tenants. Schools, leisure centres, and green spaces are all nearby, ensuring the area remains in steady rental demand.
EPC Rating: E
Disclaimer
These details are provided in good faith to give a fair overview of the property but don’t form part of any offer or contract. Buyers should verify anything critical (like measurements, floor plans, permissions, utilities, or title) with their own solicitor or surveyor.
Money Laundering: In line with regulations, buyers will need to provide ID documents at an appropriate stage. Thanks for your co-operation.
Measurements: All sizes are approximate and for guidance only.
Services: We haven’t tested any systems, appliances, or utilities. Buyers should carry out their own checks.
Legal Note: WRIGHTS. and its agents can’t make guarantees about the property. Any mention of changes or use does not confirm relevant permissions are in place.
We aim to include all key material info in line with NTSELAT guidance. If you have questions or would like the full Property Information Questionnaire, just ask.
- COUNCIL TAXA payment made to your local authority in order to pay for local services like schools, libraries, and refuse collection. The amount you pay depends on the value of the property.Read more about council Tax in our glossary page.
- Band: E
- PARKINGDetails of how and where vehicles can be parked, and any associated costs.Read more about parking in our glossary page.
- Ask agent
- GARDENA property has access to an outdoor space, which could be private or shared.
- Yes
- ACCESSIBILITYHow a property has been adapted to meet the needs of vulnerable or disabled individuals.Read more about accessibility in our glossary page.
- Ask agent
Energy performance certificate - ask agent
Duckpool Road, Newport, NP19
Add an important place to see how long it'd take to get there from our property listings.
__mins driving to your place
Explore area BETA
Newport
Get to know this area with AI-generated guides about local green spaces, transport links, restaurants and more.
Get an instant, personalised result:
- Show sellers you’re serious
- Secure viewings faster with agents
- No impact on your credit score
Your mortgage
Notes
Staying secure when looking for property
Ensure you're up to date with our latest advice on how to avoid fraud or scams when looking for property online.
Visit our security centre to find out moreDisclaimer - Property reference ece78c42-5432-4598-803c-06a3237bf78f. The information displayed about this property comprises a property advertisement. Rightmove.co.uk makes no warranty as to the accuracy or completeness of the advertisement or any linked or associated information, and Rightmove has no control over the content. This property advertisement does not constitute property particulars. The information is provided and maintained by WRIGHTS., Cardiff. Please contact the selling agent or developer directly to obtain any information which may be available under the terms of The Energy Performance of Buildings (Certificates and Inspections) (England and Wales) Regulations 2007 or the Home Report if in relation to a residential property in Scotland.
*This is the average speed from the provider with the fastest broadband package available at this postcode. The average speed displayed is based on the download speeds of at least 50% of customers at peak time (8pm to 10pm). Fibre/cable services at the postcode are subject to availability and may differ between properties within a postcode. Speeds can be affected by a range of technical and environmental factors. The speed at the property may be lower than that listed above. You can check the estimated speed and confirm availability to a property prior to purchasing on the broadband provider's website. Providers may increase charges. The information is provided and maintained by Decision Technologies Limited. **This is indicative only and based on a 2-person household with multiple devices and simultaneous usage. Broadband performance is affected by multiple factors including number of occupants and devices, simultaneous usage, router range etc. For more information speak to your broadband provider.
Map data ©OpenStreetMap contributors.





