Heol Y Garn, Garnswllt, SA18 2RN

- PROPERTY TYPE
Semi-Detached
- BEDROOMS
5
- BATHROOMS
3
- SIZE
Ask agent
- TENUREDescribes how you own a property. There are different types of tenure - freehold, leasehold, and commonhold.Read more about tenure in our glossary page.
Freehold
Key features
- Five Bedroom Semi Detached Home
- Wel Proportioned Rooms
- Two Reception Rooms
- Attic Room
- Ground Floor Shower Room 7 Utility Room
- En-suite To Master Bedroom
- Fitted Wardobes
- Ample Parking
- Semi Rural Village Location
- EPC Rating: 65D/70C
Description
A deceptively spacious five-bedroom semi-detached family home in the semi-rural village of Garnswllt. This larger-than-average property offers versatile accommodation, making it an ideal choice for families. The home boasts five double bedrooms plus a generous attic room with countryside views to the rear. On the ground floor, you’ll find two reception rooms, a shower room, and a cosy lounge complete with log burner. Upstairs, there’s a family bathroom as well as en-suite facilities to the master bedroom. The property benefits from oil-fired central heating and double glazing throughout. Externally, the home offers ample off-road parking, with potential to build a garage (STPP), along with a front and side garden.
Situated in the popular village of Garnswllt, the property enjoys a peaceful semi-rural setting while remaining conveniently close to local amenities. The market town of Ammanford is just a 10-minute drive away, providing a wide range of shopping and leisure facilities. Excellent transport links are also within easy reach, with the M4 motorway accessible via Junction 49 at Pont Abraham.
Viewing is highly recommended to appreciate the size and flexibility this home has to offer.
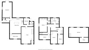
Accommodation:
Entrance Hallway
Kitchen/Diner - 5.54m x 6.45m (18'2"/14'2" x 21'2")
Bedroom Five/Study - 4.5m x 2.01m (14'9" x 6'7")
Dining Room - 6.43m x 3.58m (21'1" x 11'9")
Utility Room - 2.57m x 2.18m (8'5" x 7'2")
Shower Room
Lounge - 6.63m x 4.9m (21'9" x 16'1"/12'1")
Entrance Vestibule
First Floor Landing
Bedroom One - 4.95m x 3.45m (16'3" x 11'4"/9'10")
Ensuite
Bedroom Two - 4.98m x 2.72m (16'4" x 8'11")
Bedroom Three - 4.52m x 1.91m (14'10"/12'9" x 6'3")
Bedroom Four - 3.81m x 2.16m (12'6" x 7'1")
Bathroom - 3.43m x 2.62m (11'3" x 8'7")
Attic Room - 7.9m x 3.76m (25'11" x 12'4")
Exernally
Services
Broadband/Mobile Phone Coverage
Tenure
Council Tax
Disclaimer
Brochures
Brochure 1- COUNCIL TAXA payment made to your local authority in order to pay for local services like schools, libraries, and refuse collection. The amount you pay depends on the value of the property.Read more about council Tax in our glossary page.
- Band: D
- PARKINGDetails of how and where vehicles can be parked, and any associated costs.Read more about parking in our glossary page.
- Driveway
- GARDENA property has access to an outdoor space, which could be private or shared.
- Private garden
- ACCESSIBILITYHow a property has been adapted to meet the needs of vulnerable or disabled individuals.Read more about accessibility in our glossary page.
- Ask agent
Heol Y Garn, Garnswllt, SA18 2RN
Add an important place to see how long it'd take to get there from our property listings.
__mins driving to your place
Get an instant, personalised result:
- Show sellers you’re serious
- Secure viewings faster with agents
- No impact on your credit score
Your mortgage
Notes
Staying secure when looking for property
Ensure you're up to date with our latest advice on how to avoid fraud or scams when looking for property online.
Visit our security centre to find out moreDisclaimer - Property reference S1448096. The information displayed about this property comprises a property advertisement. Rightmove.co.uk makes no warranty as to the accuracy or completeness of the advertisement or any linked or associated information, and Rightmove has no control over the content. This property advertisement does not constitute property particulars. The information is provided and maintained by Calow Evans, Ammanford. Please contact the selling agent or developer directly to obtain any information which may be available under the terms of The Energy Performance of Buildings (Certificates and Inspections) (England and Wales) Regulations 2007 or the Home Report if in relation to a residential property in Scotland.
*This is the average speed from the provider with the fastest broadband package available at this postcode. The average speed displayed is based on the download speeds of at least 50% of customers at peak time (8pm to 10pm). Fibre/cable services at the postcode are subject to availability and may differ between properties within a postcode. Speeds can be affected by a range of technical and environmental factors. The speed at the property may be lower than that listed above. You can check the estimated speed and confirm availability to a property prior to purchasing on the broadband provider's website. Providers may increase charges. The information is provided and maintained by Decision Technologies Limited. **This is indicative only and based on a 2-person household with multiple devices and simultaneous usage. Broadband performance is affected by multiple factors including number of occupants and devices, simultaneous usage, router range etc. For more information speak to your broadband provider.
Map data ©OpenStreetMap contributors.




