Framfield Road, Buxted, Uckfield, East Sussex

- PROPERTY TYPE
Detached
- BEDROOMS
7
- BATHROOMS
3
- SIZE
Ask agent
- TENUREDescribes how you own a property. There are different types of tenure - freehold, leasehold, and commonhold.Read more about tenure in our glossary page.
Freehold
Key features
- A beautifully evolved 17th-century Sussex farmhouse with an elegant 18th-century façade
- Nestled amidst the tranquil surroundings of East Sussex, it is within easy reach of London while being surrounded by rolling countryside
- A relaxing swimming pool where loungers are nestled among fragrant planting, and an antique Italian fountain offers the calming sound of trickling water
- Leisure facilities including a stunning detached entertainment barn and Morrocan inspired detached spa with sauna and
Description
The slate floored kitchen has bespoke units with granite worktops housing upmarket appliances while below ground is the excellent wine cellar. A spacious dual-aspect office/snug is adjacent to the drawing room with its high ceilings and modern multi-fuel burner while the purpose-built library has wooden panelling, shelves and ceiling roses. A stunning family room features a high, vaulted and beamed ceiling, an elevated brick chimney breast with a log burner and stained glass bi-fold doors to a contemporary conservatory featuring a single-pane glass roof and bi-fold doors to the York stone terrace.
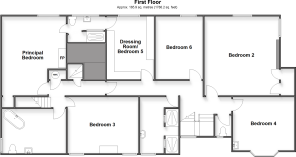
On the first floor there is elegant family bathroom and five double bedrooms with lovely views. The principal bedroom has a beamed ceiling and a Victorian fireplace, an en-suite shower room and a bespoke dressing room, another has a vaulted ceiling, cross beams and a bay window, a third is dual aspect with exposed beams and one is currently used as a gym while a large attic provides additional office space.
Outside a converted barn is now a striking games room/party barn with vaulted and beamed ceilings, a central chimney breast with a two-way fireplace and parquet flooring while the Travertine swimming pool complex includes a pool house with a sauna, steam room and shower and there is also a ‘man cave' providing space for bikes, tractors and tools. The garden features a pergola covered seating area with a firepit, a lake with a rustic bridge to the wishing well, a plethora of fabulous trees and shrubs, an orchard, a period style greenhouse and a kitchen garden as well as ‘Poets Corner' and a paddock with a timber barn.
What the Owner says:
We have felt privileged to live in this timeless country house for the past 30 years and will miss the tranquility and the security but we now need to downsize. During our time here, we have engaged in a sensitive renovation and refurbishment including a Ubiquiti Unifi installation extending the WiFi throughout the property and outbuildings and Cat 6 wiring provides music throughout the house for the Bang & Olufsen system. We also have CCTV to provide additional security. Buxted Station is a five-minute walk, and we can be at London Bridge in just over an hour. The friendly village includes two pubs/restaurants, a convenience store, farm shop, a good primary school, a medical centre, and a village hall with a variety of activities, as well as sports clubs and accessible golf clubs as well as Buxted Park and the Buxted Park Hotel.
Six minutes away is a Marks and Spencer food hall, while Uckfield town offers Waitrose and Tesco, a cinema, a leisure centre and independent shops, hairdressers and restaurants. There are also doctors, vets and a cottage hospital while Uckfield College is a well-respected secondary school and there are a number of excellent private schools within a 15-mile radius.
Room sizes:
- Porch
- Entrance Hall
- Family Room: 15'9 x 14'4 (4.80m x 4.37m)
- Conservatory: 25'1 maximum x 12'5 (7.65m x 3.79m)
- Kitchen: 19'2 x 11'10 (5.85m x 3.61m)
- Dining Room: 17'2 x 17'0 (5.24m x 5.19m)
- Drawing Room: 17'2 x 14'4 (5.24m x 4.37m)
- Cloakroom 1
- Cloakroom 2
- Library: 20'7 x 9'6 (6.28m x 2.90m)
- Study: 16'8 x 15'11 (5.08m x 4.85m)
- Sitting Room: 13'7 x 13'5 (4.14m x 4.09m)
- Cellar: 18'6 x 16'5 (5.64m x 5.01m)
- Principle Bedroom: 17'6 x 14'3 (5.34m x 4.35m)
- Shower Room
- Dressing Room/ Bedroom 5: 13'3 x 10'3 (4.04m x 3.13m)
- Bedroom 2: 16'10 x 16'8 (5.13m x 5.08m)
- Bedroom 3: 13'7 x 13'5 (4.14m x 4.09m)
- Bedroom 4: 13'3 x 10'2 (4.04m x 3.10m)
- Bedroom 6: 15'1 x 12'4 (4.60m x 3.76m)
- Bathroom
- Shower Room
- Cloakroom
- Bedroom 7/study: 13'9 x 12'4 maximum (4.19m x 3.76m)
- Entertainment Room: 34'8 x 22'10 (10.57m x 6.96m)
- Sauna/Steam Room: 15'7 x 11'9 (4.75m x 3.58m)
- Garage: 18'1 x 11'9 (5.52m x 3.58m)
- Workshop: 17'7 x 13'6 (5.36m x 4.12m)
- Greenhouse
The information provided about this property does not constitute or form part of an offer or contract, nor may it be regarded as representations. All interested parties must verify accuracy and your solicitor must verify tenure/lease information, fixtures & fittings and, where the property has been extended/converted, planning/building regulation consents. All dimensions are approximate and quoted for guidance only as are floor plans which are not to scale and their accuracy cannot be confirmed. Reference to appliances and/or services does not imply that they are necessarily in working order or fit for the purpose.
We are pleased to offer our customers a range of additional services to help them with moving home. None of these services are obligatory and you are free to use service providers of your choice. Current regulations require all estate agents to inform their customers of the fees they earn for recommending third party services. If you choose to use a service provider recommended by Fine & Country, details of all referral fees can be found at the link below. If you decide to use any of our services, please be assured that this will not increase the fees you pay to our service providers, which remain as quoted directly to you.
Brochures
Full PDF brochureFurther detailsVideo TourReferral feesPrivacy policy- COUNCIL TAXA payment made to your local authority in order to pay for local services like schools, libraries, and refuse collection. The amount you pay depends on the value of the property.Read more about council Tax in our glossary page.
- Band: H
- PARKINGDetails of how and where vehicles can be parked, and any associated costs.Read more about parking in our glossary page.
- Garage,Off street
- GARDENA property has access to an outdoor space, which could be private or shared.
- Back garden
- ACCESSIBILITYHow a property has been adapted to meet the needs of vulnerable or disabled individuals.Read more about accessibility in our glossary page.
- Ask agent
Framfield Road, Buxted, Uckfield, East Sussex
Add an important place to see how long it'd take to get there from our property listings.
__mins driving to your place
Get an instant, personalised result:
- Show sellers you’re serious
- Secure viewings faster with agents
- No impact on your credit score
Your mortgage
Notes
Staying secure when looking for property
Ensure you're up to date with our latest advice on how to avoid fraud or scams when looking for property online.
Visit our security centre to find out moreDisclaimer - Property reference 16100298. The information displayed about this property comprises a property advertisement. Rightmove.co.uk makes no warranty as to the accuracy or completeness of the advertisement or any linked or associated information, and Rightmove has no control over the content. This property advertisement does not constitute property particulars. The information is provided and maintained by Fine & Country, Tunbridge Wells. Please contact the selling agent or developer directly to obtain any information which may be available under the terms of The Energy Performance of Buildings (Certificates and Inspections) (England and Wales) Regulations 2007 or the Home Report if in relation to a residential property in Scotland.
*This is the average speed from the provider with the fastest broadband package available at this postcode. The average speed displayed is based on the download speeds of at least 50% of customers at peak time (8pm to 10pm). Fibre/cable services at the postcode are subject to availability and may differ between properties within a postcode. Speeds can be affected by a range of technical and environmental factors. The speed at the property may be lower than that listed above. You can check the estimated speed and confirm availability to a property prior to purchasing on the broadband provider's website. Providers may increase charges. The information is provided and maintained by Decision Technologies Limited. **This is indicative only and based on a 2-person household with multiple devices and simultaneous usage. Broadband performance is affected by multiple factors including number of occupants and devices, simultaneous usage, router range etc. For more information speak to your broadband provider.
Map data ©OpenStreetMap contributors.





