2 bedroom cluster house for sale
Mendelssohn Grove, Milton Keynes, Buckinghamshire, MK7

- PROPERTY TYPE
Cluster House
- BEDROOMS
2
- BATHROOMS
1
- SIZE
495 sq ft
46 sq m
- TENUREDescribes how you own a property. There are different types of tenure - freehold, leasehold, and commonhold.Read more about tenure in our glossary page.
Freehold
Key features
- NO UPPER CHAIN
- TWO BEDROOM
- CLUSTER HOME
- ALLOCTAED PARKING
- VIEWING HIGHLY RECOMMENDED
Description
Storm Porch:
Part glazed door to:
Entrance Hall:
Doors to living room and kitchen
Living Room: 13'10 x 12'3 maximum
Double glazed window to the front aspect, two electric heaters, stairs rising to the first floor.
Kitchen: 12'2 x 5'7 maximum
Dual aspect with double glazed windows to the side and front aspects, range of wall and floor mounted units, drawers, roll top surface, circlet sink and drainer, four ring electric hob with oven under and extractor fan over, plumbing for washing machine, part tiled walls and tiled flooring.
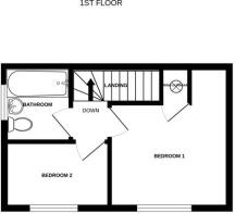
Landing:
Doors to:
Bedroom One: 12'4 into recess x 8'10 maximum
Double glazed window to the front aspect, airing cupboard housing hot water tank, recess area, electric heating.
Bedroom Two: 9'1 x 5'9
Double glazed window to the front aspect
Bathroom: 6'2 x 5'10 maximum
Double glazed window to the side aspect, panel bath with shower over and shower screen, low level WC and wall mounted wash hand basin, part tiled walls and tiled flooring, heated towel rail.
Outside:
There is a small lawn area and patio area to the side with ab shed, cold water tap and an allocated parking space.
About the Area:
Browns Wood is situated to the south-east of Milton Keynes. The area has plenty of pathways, ideal for an afternoon stroll, as well as the famous city red way running through it, which is great for bicycle rides. Browns Wood is also close to Caldecotte Lake and boasts allotments and a private nursery school. Schools close to the area include Heronshaw, Heronsgate and Walton High (all situated in Walnut Tree).
Agents Notes:
Please note that any fitted appliances or fixture and fittings have not been check by Bourdeauxs Limited or their employees, buyers should make their own checks on these.
EPC Rating: 'D'
Council Tax Band: 'B'
- COUNCIL TAXA payment made to your local authority in order to pay for local services like schools, libraries, and refuse collection. The amount you pay depends on the value of the property.Read more about council Tax in our glossary page.
- Ask agent
- PARKINGDetails of how and where vehicles can be parked, and any associated costs.Read more about parking in our glossary page.
- Allocated
- GARDENA property has access to an outdoor space, which could be private or shared.
- Yes
- ACCESSIBILITYHow a property has been adapted to meet the needs of vulnerable or disabled individuals.Read more about accessibility in our glossary page.
- Ask agent
Mendelssohn Grove, Milton Keynes, Buckinghamshire, MK7
Add an important place to see how long it'd take to get there from our property listings.
__mins driving to your place
Get an instant, personalised result:
- Show sellers you’re serious
- Secure viewings faster with agents
- No impact on your credit score



Your mortgage
Notes
Staying secure when looking for property
Ensure you're up to date with our latest advice on how to avoid fraud or scams when looking for property online.
Visit our security centre to find out moreDisclaimer - Property reference JSBDX17Mendelssohn. The information displayed about this property comprises a property advertisement. Rightmove.co.uk makes no warranty as to the accuracy or completeness of the advertisement or any linked or associated information, and Rightmove has no control over the content. This property advertisement does not constitute property particulars. The information is provided and maintained by Bourdeauxs, Milton Keynes. Please contact the selling agent or developer directly to obtain any information which may be available under the terms of The Energy Performance of Buildings (Certificates and Inspections) (England and Wales) Regulations 2007 or the Home Report if in relation to a residential property in Scotland.
*This is the average speed from the provider with the fastest broadband package available at this postcode. The average speed displayed is based on the download speeds of at least 50% of customers at peak time (8pm to 10pm). Fibre/cable services at the postcode are subject to availability and may differ between properties within a postcode. Speeds can be affected by a range of technical and environmental factors. The speed at the property may be lower than that listed above. You can check the estimated speed and confirm availability to a property prior to purchasing on the broadband provider's website. Providers may increase charges. The information is provided and maintained by Decision Technologies Limited. **This is indicative only and based on a 2-person household with multiple devices and simultaneous usage. Broadband performance is affected by multiple factors including number of occupants and devices, simultaneous usage, router range etc. For more information speak to your broadband provider.
Map data ©OpenStreetMap contributors.





