
Roundhey, Cheadle, SK8

- PROPERTY TYPE
Semi-Detached
- BEDROOMS
4
- BATHROOMS
2
- SIZE
Ask agent
Key features
- DOWNSTAIRS BEDROOM WITH EN SUITE BATHROOM
- DRIVEWAY
- RECENTLY REFURBISHED
- BEAUTIFUL GARDEN VIEWS
- OPEN PLAN LIVING DINING
- NEWLY FITTED KITCHEN
- RECENTLY FITTED BATHROOM
- GREAT LOCATION
Description
This beautiful and spacious family home is a real must see!
Located on Roundhey, Heald Green, Cheadle, we have for sale this impressive and recently refurbished 4 bed semidetached family home with a generous driveway, Downstairs bedroom with en suite, open plan living dining area, newly fitted kitchen
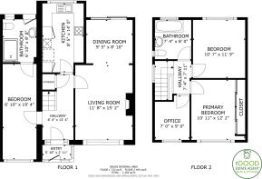
Internal Brief
- Porch entrance into spacious hallway, with tiled flooring that gives you access to living dining room, kitchen, and downstairs bedroom with en suite.
- Kitchen – Recently fitted with tiled flooring and backsplash, window to the rear overlooking the garden, integrated gas cooker, microwave and electric oven, space for washing machine, dishwasher and fridge freezer.
- Living Dining room -Tiled flooring with window to the front and sliding doors to the rear, in the living room there is also a feature fire place
- Downstairs bedroom with en suite – Carpet flooring with window to the front and door access to the en suite. The En suite is fully tiled with walk in shower, W/C, sink, window and door access to the rear.
Upstairs this home continues with a spacious landing providing access to:
- Main Bedroom– Carpet flooring, fitted wardrobes and window to the front.
- Family Bathroom- Spacious and fully tiled, tiled flooring, fitted bathtub, , towel rail, W/C, sink with hot and cold tap, W/C , window to the rear and side.
- Bedroom 2 – double room, with carpet flooring, radiator and window to the rear.
- Bedroom 3 – Carpet flooring, radiator and window to the front.
Externally, this home has a large driveway to the front with space for 3 cars. To the rear there is a lovely garden that overlooks into the park, a wrap round patio and grass area.
The boiler is a Worcester boiler and its 4 years old.
The Ground rent payment is £16.50 per year and there is an option to buy the Lease.
Location
In a great location close to Heald Green village, John Lewis, Handforth Dean and Stanley Green, convenient for transport in to Manchester City Centre, Stockport and the beautiful Cheshire Countryside, Styal Mill Country Park is a stones throw from Handforth. In recent years neighbouring Handforth Dean/Stanley Green has grown to become a thriving Business Hub offering a large variety of employment opportunities. There is the popular Wilmslow Farmers Market which is bustling with Arts, Antiques, Crafts, Food and Drink as well as a Makers Market in the neighbouring Heald Green. Locally there are many Independent and State Primary and Secondary Schools and access points to the North West Motorway network system. Manchester International Airport and some of Cheshire's finest countryside are close at hand. The New Manchester Airport Relief Road is a short Drive offering access to Manchester, Hazel Grove, Poynton, Bramhall, Heald Green, Cheadle, Cheadle Hulme to name a few.
Disclaimer
These particulars do not constitute or form part of an offer or contract nor may they be regarded as representations. All dimensions are approximate for guidance only, their accuracy cannot be confirmed. Reference to appliances and/or services does not imply that they are necessarily in working order or fit for purpose or included in the Sale. Buyers are advised to obtain verification from their solicitors as to the tenure if the property, as well as fixtures and fittings and where the property has been extended/converted as to planning approval and building regulations. All interested parties must themselves verify their accuracy.
Are you thinking of selling? Here at The Good Estate Agent we offer free no obligation valuation appointments at a time that suits you best. We are available for valuations and viewings all day and evenings and weekends. We are open 6 days a week to provide the most flexible appointment times possible. We are a proactive and friendly team all living in and around the Wilmslow area and we have a wealth of knowledge of the local Property Market. When you choose The Good Estate Agent you will have one point of contact throughout the entire sales process.
Finance We work very closely with an Independent Financial Advisor who is based in our local office. If you are looking for Independent, Whole of Market, No Obligation Mortgage Advice please call or come along to our office for a chat with one of their Team.
Council Tax Band
The council tax band for this property is C.
Brochures
Brochure 1- COUNCIL TAXA payment made to your local authority in order to pay for local services like schools, libraries, and refuse collection. The amount you pay depends on the value of the property.Read more about council Tax in our glossary page.
- Ask agent
- PARKINGDetails of how and where vehicles can be parked, and any associated costs.Read more about parking in our glossary page.
- Yes
- GARDENA property has access to an outdoor space, which could be private or shared.
- Yes
- ACCESSIBILITYHow a property has been adapted to meet the needs of vulnerable or disabled individuals.Read more about accessibility in our glossary page.
- Ask agent
Roundhey, Cheadle, SK8
Add an important place to see how long it'd take to get there from our property listings.
__mins driving to your place
Get an instant, personalised result:
- Show sellers you’re serious
- Secure viewings faster with agents
- No impact on your credit score
Your mortgage
Notes
Staying secure when looking for property
Ensure you're up to date with our latest advice on how to avoid fraud or scams when looking for property online.
Visit our security centre to find out moreDisclaimer - Property reference 23558. The information displayed about this property comprises a property advertisement. Rightmove.co.uk makes no warranty as to the accuracy or completeness of the advertisement or any linked or associated information, and Rightmove has no control over the content. This property advertisement does not constitute property particulars. The information is provided and maintained by The Good Estate Agent, National. Please contact the selling agent or developer directly to obtain any information which may be available under the terms of The Energy Performance of Buildings (Certificates and Inspections) (England and Wales) Regulations 2007 or the Home Report if in relation to a residential property in Scotland.
*This is the average speed from the provider with the fastest broadband package available at this postcode. The average speed displayed is based on the download speeds of at least 50% of customers at peak time (8pm to 10pm). Fibre/cable services at the postcode are subject to availability and may differ between properties within a postcode. Speeds can be affected by a range of technical and environmental factors. The speed at the property may be lower than that listed above. You can check the estimated speed and confirm availability to a property prior to purchasing on the broadband provider's website. Providers may increase charges. The information is provided and maintained by Decision Technologies Limited. **This is indicative only and based on a 2-person household with multiple devices and simultaneous usage. Broadband performance is affected by multiple factors including number of occupants and devices, simultaneous usage, router range etc. For more information speak to your broadband provider.
Map data ©OpenStreetMap contributors.





