Land for sale
Nelson Drive, Swarland, Northumberland, NE65 9JR
- PROPERTY TYPE
Land
- SIZE
Ask agent
Key features
- FOR SALE BY AUCTION: T&Cs apply.
- Land site for sale
- Measures approximately 0.28 acres
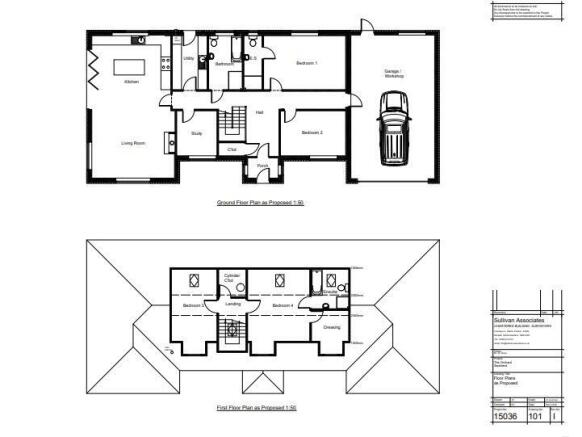
- Planning applied for 4 bed dormer bungalow with double garage.
- Sought After Village Location
- South Facing Garden
- Freehold Title
Description
We are pleased to offer to auction this superb and rare opportunity to purchase this serviced building plot with lapsed planning permission for a four bedroom detached dormer bungalow with double garage. The plot is located in this much sought after residential area, and within easy walking distance to the centre of this highly sought after Northumbrian village.
Swarland has a thriving community, and has various activities and functions organised each week at the Swarland Village Hall and Swarland Primary school which is rated as 'good' by Offstead. The village also benefits from Nelsons Cafe, an outdoor bowling centre and the Working Men's Club with bar.
The plot comes with full planning permission and building regulations approval for a four bedroom detached dormer bungalow with attached double garage.
Location
The subject site is well located along Orchard Drive, Swarland. Swarland is located just off the A1 within easy commutable distance of Newcastle, and is just 7.5 miles to Alnmouth train station which has direct trains to London and Edinburgh. The nearest two towns are Alnwick (7 miles north of its location) and Morpeth (14 miles south). The closest village is Felton, which has a village shop and post office, 2 pubs, an artisan bakery/cafe 'The Running Fox', an art gallery, hair salon, and village doctors surgery.
Site Details
The subject site is rectangular in shape, and measures approximately 0.28 acres (1133.12 sqm) with a perimeter of roughly 137m. The site is located at the entrance to Orchard drive which has 3 other bungalows behind. The land for sale has an open aspect with one mature tree located on the south east corner of the plot.
Planning Permission
Planning permission was granted 27/11/20 for 'proposed four bedroom detached dormer bungalow with attached double garage'. Planning reference 20/01079/FUL. Please direct all planning enquiries to Northumberland County Council.
Tenure
Freehold. Title number ND79684.
Additional Information
For further information please contact our office direct on , or alternatively via e-mail on . With regards to viewing the subject site, this is to be done strictly by appointment through Keith Pattinson Commercial department. Please contact us to arrange an internal inspection, or to register your interest.
Auctioneers Additional Comments
Pattinson Auction are referred to below as The Auctioneer. This auction lot is being sold under either conditional (Modern) or unconditional (Traditional) auction terms and overseen by the auctioneer. The property is available to view strictly by appointment only via any Marketing Agent or The Auctioneer. Please be aware that any enquiry, bid or viewing of the subject property will require your details being shared between any marketing agent and The Auctioneer so that all matters can be dealt with effectively. The property is being sold via a transparent online auction. To submit a bid on any property marketed by The Auctioneer, all bidders buyers must adhere to a verification of identity process in line with Anti Money Laundering procedures. Bids can be submitted at any time and from anywhere. Our verification process is in place to ensure AML procedures are carried out in accordance with the law
Auctioneers Additional Comments
The advertised price is commonly referred to as a Starting Bid or Guide Price and is accompanied by a Reserve Price. The Reserve Price is confidential to the seller and the auctioneer and will typically be within a range above or below 10% of the Guide Price , Starting Bid. These prices are subject to change. An auction can be closed at any time with the auctioneer permitting for the property (the lot) to be sold prior to the end of the auction. A Legal Pack associated with this particular property is available to view upon request and contains details relevant to the legal documentation enabling all interested parties to make an informed decision prior to bidding. The Legal Pack will also outline the buyers obligations and sellers commitments. It is strongly advised that you seek the counsel of a solicitor prior to proceeding with any property and/or Land Title purchase.
Auctioneers Additional Comments
In order to secure the property and ensure commitment from the seller, upon exchange of contracts, the successful bidder will be expected to pay a non-refundable deposit equivalent to 5% of the purchase price. The deposit will form part of the purchase price. A non-refundable reservation fee of up to 6% inc VAT (Subject to a minimum fee which could be up to 7,200 inc VAT) is also payable upon agreement of sale. The Reservation Fee is in addition to the agreed purchase price, and consideration should be given by the purchaser to any Stamp Duty Land Tax liability associated with the overall purchase costs. Both the Marketing Agent and the Auctioneer may consider it necessary or beneficial to pass customer details to third-party service suppliers, from whom a referral fee may be received. There is no requirement or obligation to use any recommended suppliers or services.
Brochures
BrochureNelson Drive, Swarland, Northumberland, NE65 9JR
NEAREST STATIONS
Distances are straight line measurements from the centre of the postcode- Acklington Station3.8 miles
- Alnmouth Station6.2 miles
Notes
Disclaimer - Property reference 389914. The information displayed about this property comprises a property advertisement. Rightmove.co.uk makes no warranty as to the accuracy or completeness of the advertisement or any linked or associated information, and Rightmove has no control over the content. This property advertisement does not constitute property particulars. The information is provided and maintained by Pattinson Estate Agents, Alnwick. Please contact the selling agent or developer directly to obtain any information which may be available under the terms of The Energy Performance of Buildings (Certificates and Inspections) (England and Wales) Regulations 2007 or the Home Report if in relation to a residential property in Scotland.
Auction Fees: The purchase of this property may include associated fees not listed here, as it is to be sold via auction. To find out more about the fees associated with this property please call Pattinson Estate Agents, Alnwick on 01665 665747.
*Guide Price: An indication of a seller's minimum expectation at auction and given as a Guide Price or a range of Guide Prices. This is not necessarily the figure a property will sell for and is subject to change prior to the auction.
Reserve Price: Each auction property will be subject to a Reserve Price below which the property cannot be sold at auction. Normally the Reserve Price will be set within the range of Guide Prices or no more than 10% above a single Guide Price.
Map data ©OpenStreetMap contributors.





