Riverside Park, Blairgowrie, Perth and Kinross, PH10

- PROPERTY TYPE
Flat
- BEDROOMS
2
- BATHROOMS
2
- SIZE
Ask agent
- TENUREDescribes how you own a property. There are different types of tenure - freehold, leasehold, and commonhold.Read more about tenure in our glossary page.
Freehold
Description
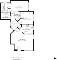
Lindsays are delighted to bring to the market this spacious and well-proportioned second-floor apartment, located in a sought-after residential development within Blairgowrie. The property enjoys direct access to the beautiful riverside walks along the River Ericht while being only a few minutes’ walk from the town centre and its excellent local amenities. The accommodation begins with a welcoming hallway offering two storage cupboards. The lounge and dining area is bright and spacious, with sliding patio doors opening onto a balcony, providing a lovely outlook. The kitchen is located directly off the lounge and is fully fitted. There are two double bedrooms; the primary bedroom is a generous size and benefits from a large separate dressing room and a modern en-suite shower. The second bedroom is also generously proportioned. Completing the internal layout is a modern three piece family bathroom. Externally, the property benefits from private residents’ parking and access to shared gardens. There is a secure entry system for added peace of mind. Heating and hot water are provided by a gas central heating system, and the home is fully double glazed. Included in the sale are floor coverings, light fittings, blinds where fitted, and white goods (no guarantees provided). This property would make an ideal home for a first-time buyer, professional couple, holiday retreat, or buy-to-let investment.
Brochures
Particulars- COUNCIL TAXA payment made to your local authority in order to pay for local services like schools, libraries, and refuse collection. The amount you pay depends on the value of the property.Read more about council Tax in our glossary page.
- Band: D
- PARKINGDetails of how and where vehicles can be parked, and any associated costs.Read more about parking in our glossary page.
- Yes
- GARDENA property has access to an outdoor space, which could be private or shared.
- Yes
- ACCESSIBILITYHow a property has been adapted to meet the needs of vulnerable or disabled individuals.Read more about accessibility in our glossary page.
- Ask agent
Energy performance certificate - ask agent
Riverside Park, Blairgowrie, Perth and Kinross, PH10
Add an important place to see how long it'd take to get there from our property listings.
__mins driving to your place
Get an instant, personalised result:
- Show sellers you’re serious
- Secure viewings faster with agents
- No impact on your credit score
Your mortgage
Notes
Staying secure when looking for property
Ensure you're up to date with our latest advice on how to avoid fraud or scams when looking for property online.
Visit our security centre to find out moreDisclaimer - Property reference DNE250555. The information displayed about this property comprises a property advertisement. Rightmove.co.uk makes no warranty as to the accuracy or completeness of the advertisement or any linked or associated information, and Rightmove has no control over the content. This property advertisement does not constitute property particulars. The information is provided and maintained by Lindsays, Perth. Please contact the selling agent or developer directly to obtain any information which may be available under the terms of The Energy Performance of Buildings (Certificates and Inspections) (England and Wales) Regulations 2007 or the Home Report if in relation to a residential property in Scotland.
*This is the average speed from the provider with the fastest broadband package available at this postcode. The average speed displayed is based on the download speeds of at least 50% of customers at peak time (8pm to 10pm). Fibre/cable services at the postcode are subject to availability and may differ between properties within a postcode. Speeds can be affected by a range of technical and environmental factors. The speed at the property may be lower than that listed above. You can check the estimated speed and confirm availability to a property prior to purchasing on the broadband provider's website. Providers may increase charges. The information is provided and maintained by Decision Technologies Limited. **This is indicative only and based on a 2-person household with multiple devices and simultaneous usage. Broadband performance is affected by multiple factors including number of occupants and devices, simultaneous usage, router range etc. For more information speak to your broadband provider.
Map data ©OpenStreetMap contributors.




