6 bedroom detached house for sale
Holland Road, Clacton-On-Sea, Essex, CO15

- PROPERTY TYPE
Detached
- BEDROOMS
6
- SIZE
Ask agent
- TENUREDescribes how you own a property. There are different types of tenure - freehold, leasehold, and commonhold.Read more about tenure in our glossary page.
Ask agent
Description
Some visuals have been digitally generated using AI to provide an illustrative representation of the property in a neutral, "blank canvas" state.
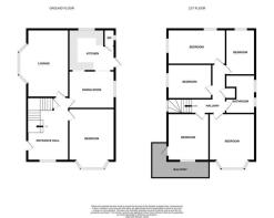
The ground floor features a welcoming entrance hall that leads into a bright lounge with a bay window and a feature fireplace, ideal for family gatherings. The recently upgraded kitchen offers a modern space at the heart of the home, linking to a dining room and an additional versatile reception room/bedroom with a bay window and a fireplace. A downstairs WC completes the ground floor.
Upstairs, the home boasts five good-sized double bedrooms, each with its own character and many retaining original fireplaces. The main bedroom enjoys a bay window, while another has access to a balcony, offering a unique outdoor space. A spacious family bathroom with both bath and shower serves the first floor.
Externally, the property benefits from a cosy rear terrace, perfect for morning coffee or evening relaxation, and a good-sized garden, offering excellent potential for landscaping or family use.
The layout, size, and abundance of period features make this property an excellent opportunity for those looking to create a long-term family home tailored to their taste. Equally, it offers a strong appeal to buy-to-let investors with its versatile floor plan and multiple bedrooms.
With charm, history, and potential in abundance, this house is ready to be renovated and enjoyed for many years to come by its next owners.
Approximate Room Dimensions:
Entrance Hall: 5.04m x 3.47m
Lounge: 3.48m x 5.55m
Dining Room/6th bedroom: 3.47m x 3.40m
Kitchen: 3.08m x 3.77m
Downstairs Bedroom/Reception: 3.93m x 3.89m
First Floor:
Bedroom 1: 3.39m x 3.90m
Bedroom 2: 3.93m x 3.89m
Bedroom 3: 2.57m x 3.78m
Bedroom 4: 2.86m x 4.89m
Bedroom 5: 2.42m x 3.38m
Bathroom: 3.14m x 2.42m
*Please note, some photos have been staged using AI*
Please contact the agent direct
- COUNCIL TAXA payment made to your local authority in order to pay for local services like schools, libraries, and refuse collection. The amount you pay depends on the value of the property.Read more about council Tax in our glossary page.
- Ask agent
- PARKINGDetails of how and where vehicles can be parked, and any associated costs.Read more about parking in our glossary page.
- Ask agent
- GARDENA property has access to an outdoor space, which could be private or shared.
- Yes
- ACCESSIBILITYHow a property has been adapted to meet the needs of vulnerable or disabled individuals.Read more about accessibility in our glossary page.
- Ask agent
Energy performance certificate - ask agent
Holland Road, Clacton-On-Sea, Essex, CO15
Add an important place to see how long it'd take to get there from our property listings.
__mins driving to your place
Get an instant, personalised result:
- Show sellers you’re serious
- Secure viewings faster with agents
- No impact on your credit score
Your mortgage
Notes
Staying secure when looking for property
Ensure you're up to date with our latest advice on how to avoid fraud or scams when looking for property online.
Visit our security centre to find out moreDisclaimer - Property reference OffAgent-jMills1. The information displayed about this property comprises a property advertisement. Rightmove.co.uk makes no warranty as to the accuracy or completeness of the advertisement or any linked or associated information, and Rightmove has no control over the content. This property advertisement does not constitute property particulars. The information is provided and maintained by OFF AGENT, Nationwide. Please contact the selling agent or developer directly to obtain any information which may be available under the terms of The Energy Performance of Buildings (Certificates and Inspections) (England and Wales) Regulations 2007 or the Home Report if in relation to a residential property in Scotland.
*This is the average speed from the provider with the fastest broadband package available at this postcode. The average speed displayed is based on the download speeds of at least 50% of customers at peak time (8pm to 10pm). Fibre/cable services at the postcode are subject to availability and may differ between properties within a postcode. Speeds can be affected by a range of technical and environmental factors. The speed at the property may be lower than that listed above. You can check the estimated speed and confirm availability to a property prior to purchasing on the broadband provider's website. Providers may increase charges. The information is provided and maintained by Decision Technologies Limited. **This is indicative only and based on a 2-person household with multiple devices and simultaneous usage. Broadband performance is affected by multiple factors including number of occupants and devices, simultaneous usage, router range etc. For more information speak to your broadband provider.
Map data ©OpenStreetMap contributors.





