Land for sale
Warrington Road, Abram, Wigan, WN2 5XX
- PROPERTY TYPE
Land
- SIZE
Ask agent
Key features
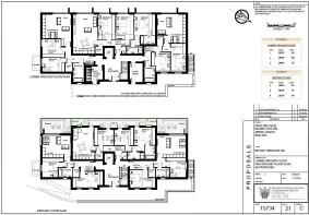
- Planning Consent secured for 9 stylish apartments, Application No: A/24/97754/FULL
- Prominent position with canal side outlook
- Set alongside the Leeds-Liverpool Canal and benefits from a semi rural feel
- No VAT payable on this Land
Description
An exciting opportunity to acquire a prime development site with full planning permission (Ref: A/24/97754/FULL, granted 29th August 2025) for the demolition of the former Dover Lock Inn public house and the construction of 9 high-quality apartments with associated parking, landscaping, and access improvements.
Key Highlights
Planning consent secured for 9 stylish apartments Prominent roadside position with canal-side outlook Convenient access to Wigan, Leigh, and Manchester road networks Thoughtfully designed scheme with landscaping & ecological enhancements EV charging provision and modern drainage infrastructure approved Conditions include biodiversity net gain, sustainable drainage, and accessibility standards (M4(2))
Location
Set alongside the Leeds–Liverpool Canal, the site benefits from a semi-rural feel while remaining highly accessible. Warrington Road provides direct routes into Wigan town centre (approx. 4 miles), while the M6 and A580 East Lancs Road are within easy reach, offering excellent commuter links to Manchester, Liverpool, and beyond.
Planning
Application No: A/24/97754/FULL Decision Date: 29th August 2025 Proposal: Demolition of existing derelict public house & erection of 9 apartments
Ideal For:
Developers and investors seeking a ready-to-go residential scheme in a well-connected Greater Manchester location with proven housing demand.
Agent Notes
Floorplans & Sketches provided by Howard & Seddon Chartered Architects.
Brochures
ParticularsWarrington Road, Abram, Wigan, WN2 5XX
NEAREST STATIONS
Distances are straight line measurements from the centre of the postcode- Bryn Station2.3 miles
- Ince Station2.7 miles
- Hindley Station2.8 miles
Notes
Disclaimer - Property reference CCH210262. The information displayed about this property comprises a property advertisement. Rightmove.co.uk makes no warranty as to the accuracy or completeness of the advertisement or any linked or associated information, and Rightmove has no control over the content. This property advertisement does not constitute property particulars. The information is provided and maintained by Miller Metcalfe, Tyldesley. Please contact the selling agent or developer directly to obtain any information which may be available under the terms of The Energy Performance of Buildings (Certificates and Inspections) (England and Wales) Regulations 2007 or the Home Report if in relation to a residential property in Scotland.
Map data ©OpenStreetMap contributors.






