
New Road, Earby, BB186XA

- PROPERTY TYPE
Semi-Detached
- BEDROOMS
3
- SIZE
Ask developer
- TENUREDescribes how you own a property. There are different types of tenure - freehold, leasehold, and commonhold.Read more about tenure in our glossary page.
Freehold
Key features
- £10,000 towards your deposit. T&Cs apply
- Shower package included
- Ideal for family life
- Open-plan kitchen-diner features a large L-shaped worktop
- High-quality specifications included as standard from well-known brands
- Personalise your home with our optional extras (subject to build stage)
- 10-Year Warranty (first 2 years with Gleeson and a further 8 years with NHBC)
Description
Shared Ownership event: Thursday 11 December, 12pm to 7pm
Join us to take a tour of our Shared Ownership homes! Discover a more affordable way to your first or next home, and learn all about the ways we can help get you moving.
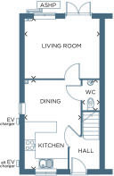
The Tyrone is a contemporary three bedroom house style that is ideal for family life and perfect for entertaining. The open-plan kitchen-diner features a large L-shaped worktop, while French doors open from the bright living room onto the rear garden, for seamless outdoor-indoor living. The space continues upstairs where you will find three bedrooms and a family bathroom finished with Porcelanosa tiling.
Images, dimensions, and layouts are indicative only and may include optional upgrades, subject to availability and at additional cost. Please check with our sales team for more information.
Council Tax Band: B
Tenure: Freehold
EPC Energy Efficiency: B
Room Dimensions
- Kitchen / Dining - 16'3" x 10'3" (4.95m x 3.13m)
- Living Room - 13'7" x 10'10" (4.15m x 3.31m)
- WC - 5'7" x 3'1" (1.70m x 0.94m)
- Bedroom 1 - 13'7" x 8'3" (4.15m x 2.52m)
- Bedroom 2 - 12'6" x 7'2" (3.81m x 2.20m)
- Bedroom 3 - 9'1" x 6'1" (2.76m x 1.86m)
- Bathroom - 7'2" x 6'0" (2.20m x 1.84m)
- COUNCIL TAXA payment made to your local authority in order to pay for local services like schools, libraries, and refuse collection. The amount you pay depends on the value of the property.Read more about council Tax in our glossary page.
- Band: B
- PARKINGDetails of how and where vehicles can be parked, and any associated costs.Read more about parking in our glossary page.
- Ask developer
- GARDENA property has access to an outdoor space, which could be private or shared.
- Yes
- ACCESSIBILITYHow a property has been adapted to meet the needs of vulnerable or disabled individuals.Read more about accessibility in our glossary page.
- Ask developer
Energy performance certificate - ask developer
New Road, Earby, BB186XA
Add an important place to see how long it'd take to get there from our property listings.
__mins driving to your place
Get an instant, personalised result:
- Show sellers you’re serious
- Secure viewings faster with agents
- No impact on your credit score
About Gleeson Homes (Greater Manchester)
About Gleeson Homes
Gleeson builds high-quality, affordable homes across the North of England and the Midlands. Whether you are looking to take your first steps onto the property ladder or you’re searching for a new home that better suits your needs and lifestyle, Gleeson’s wide choice of thoughtfully designed, energy-efficient homes offer something for everyone.
Why choose Gleeson?
A helping hand to get you moving
Choose from a wide range of homebuying schemes designed to make your move even easier to achieve. From Deposit Contribution to Shared Ownership or Part Exchange, there’s something to suit every lifestyle and situation.
Lower energy bills
Thanks to modern construction methods, new homes are far more energy-efficient than older properties. Features such as improved insulation, efficient boilers or air source heat pumps, and double glazing are all designed to keep the heat in, reduce carbon footprint, and lower the running costs.
Blank canvas
Gleeson offers an additional range of extras and upgrades such as integrated appliances, carpets, flooring, tiles and more. This means you can tailor your home to your needs and style.
Peace of mind
Every Gleeson home comes with a two-year Gleeson warranty backed by the NHBC, plus an additional eight years of insurance cover via your NHBC Buildmark Warranty. This gives you complete peace of mind from the day you move in.
Your mortgage
Notes
Staying secure when looking for property
Ensure you're up to date with our latest advice on how to avoid fraud or scams when looking for property online.
Visit our security centre to find out moreDisclaimer - Property reference 3_030. The information displayed about this property comprises a property advertisement. Rightmove.co.uk makes no warranty as to the accuracy or completeness of the advertisement or any linked or associated information, and Rightmove has no control over the content. This property advertisement does not constitute property particulars. The information is provided and maintained by Gleeson Homes (Greater Manchester). Please contact the selling agent or developer directly to obtain any information which may be available under the terms of The Energy Performance of Buildings (Certificates and Inspections) (England and Wales) Regulations 2007 or the Home Report if in relation to a residential property in Scotland.
*This is the average speed from the provider with the fastest broadband package available at this postcode. The average speed displayed is based on the download speeds of at least 50% of customers at peak time (8pm to 10pm). Fibre/cable services at the postcode are subject to availability and may differ between properties within a postcode. Speeds can be affected by a range of technical and environmental factors. The speed at the property may be lower than that listed above. You can check the estimated speed and confirm availability to a property prior to purchasing on the broadband provider's website. Providers may increase charges. The information is provided and maintained by Decision Technologies Limited. **This is indicative only and based on a 2-person household with multiple devices and simultaneous usage. Broadband performance is affected by multiple factors including number of occupants and devices, simultaneous usage, router range etc. For more information speak to your broadband provider.
Map data ©OpenStreetMap contributors.






