Madeira Park, Tunbridge Wells, TN2 5SY

- PROPERTY TYPE
Flat
- BEDROOMS
1
- BATHROOMS
1
- SIZE
Ask agent
Key features
- PRESTIGIOUS MADIERA PARK ADDRESS
- ELEGANT PERIOD FEATURES
- PRIVATE TERRACE AND ALLOCATED PARKING SPACE
- SHARE OF FREEHOLD
- EASY WALK TO THE MAINLINE STATION
- LARGE CELLAR WITH INTERNAL ACCESS
- PLEASE QUOTE REFERENCE JW0477 ON ALL ENQUIRIES
- PRIVATE PATIO SPACE
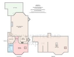
- GROUND FLOOR
- NO ONWARD CHAIN
Description
GUIDE PRICE £300,000 - £315,000 Beautiful Period One-Bedroom Flat | Madeira Park, Tunbridge Wells
A distinguished one-bedroom ground floor apartment set within an attractive period building in the ever-desirable Madeira Park. The property combines classic character with considered modern updates, featuring elegant high ceilings, a feature fireplace and excellent natural light throughout. The generous living space leads to a tastefully designed kitchen, with an inviting entrance hallway giving access to the contemporary bathroom and sizeable bedroom. A substantial cellar with internal access provides outstanding storage, while the private terrace and allocated parking complete this rare offering.
Situated just a short walk from the High Street, the historic Pantiles and the Mainline Station, this is a Tunbridge Wells home that balances period charm with everyday convenience, and it is offered with no onward chain.
PLEASE QUOTE REFERENCE JW0477 ON ALL ENQUIRIES
Important Information on Anti-Money Laundering Check
We are required by law to conduct Anti-Money Laundering checks on all parties involved in the sale or purchase of a property. We take the responsibility of this seriously in line with HMRC guidance in ensuring the accuracy and continuous monitoring of these checks. Our compliance partner, Move Butler, will carry out the initial checks on our behalf. They will contact you and where possible, a biometric check will be sent to you electronically only once your offer has been accepted.
As an applicant, you will be charged a non-refundable fee of £30 (inclusive of VAT) per buyer for these checks. The fee covers data collection, manual checking, and monitoring. You will need to pay this amount directly to Move Butler and complete all Anti-Money Laundering checks before your offer can be formally accepted.
You will also be required to provide evidence of how you intend to finance your purchase prior to formal acceptance of any offer.
- COUNCIL TAXA payment made to your local authority in order to pay for local services like schools, libraries, and refuse collection. The amount you pay depends on the value of the property.Read more about council Tax in our glossary page.
- Ask agent
- PARKINGDetails of how and where vehicles can be parked, and any associated costs.Read more about parking in our glossary page.
- Yes
- GARDENA property has access to an outdoor space, which could be private or shared.
- Yes
- ACCESSIBILITYHow a property has been adapted to meet the needs of vulnerable or disabled individuals.Read more about accessibility in our glossary page.
- Ask agent
Madeira Park, Tunbridge Wells, TN2 5SY
Add an important place to see how long it'd take to get there from our property listings.
__mins driving to your place
Get an instant, personalised result:
- Show sellers you’re serious
- Secure viewings faster with agents
- No impact on your credit score
Your mortgage
Notes
Staying secure when looking for property
Ensure you're up to date with our latest advice on how to avoid fraud or scams when looking for property online.
Visit our security centre to find out moreDisclaimer - Property reference S1353987. The information displayed about this property comprises a property advertisement. Rightmove.co.uk makes no warranty as to the accuracy or completeness of the advertisement or any linked or associated information, and Rightmove has no control over the content. This property advertisement does not constitute property particulars. The information is provided and maintained by John Whitehead Property, Powered by eXp UK, Tunbridge Wells & Tonbridge. Please contact the selling agent or developer directly to obtain any information which may be available under the terms of The Energy Performance of Buildings (Certificates and Inspections) (England and Wales) Regulations 2007 or the Home Report if in relation to a residential property in Scotland.
*This is the average speed from the provider with the fastest broadband package available at this postcode. The average speed displayed is based on the download speeds of at least 50% of customers at peak time (8pm to 10pm). Fibre/cable services at the postcode are subject to availability and may differ between properties within a postcode. Speeds can be affected by a range of technical and environmental factors. The speed at the property may be lower than that listed above. You can check the estimated speed and confirm availability to a property prior to purchasing on the broadband provider's website. Providers may increase charges. The information is provided and maintained by Decision Technologies Limited. **This is indicative only and based on a 2-person household with multiple devices and simultaneous usage. Broadband performance is affected by multiple factors including number of occupants and devices, simultaneous usage, router range etc. For more information speak to your broadband provider.
Map data ©OpenStreetMap contributors.




