St Mary's Court, Diss

- PROPERTY TYPE
Flat
- BEDROOMS
1
- BATHROOMS
1
- SIZE
469 sq ft
44 sq m
Key features
- Guide Price £110,000 - £120,000
- Modern kitchen with Neff appliances
- Balcony from both lounge & bedroom
- Option to keep the stair lift
- Approximately 0.1 of a mile to the town centre
- Well-kept communal gardens
- Off road parking
- Leasehold
- Council Tax band A
- EPC Rating C
Description
Found off Church Street, the property is located in a small executive development of some 28 similar properties in a tranquil courtyard like situation. The development is well laid out and extremely well maintained whilst having a pleasing and friendly atmosphere within. Further features of the development include an onsite residential manager, with alarm pulls within all of the properties (for when the manager is off duty there is the benefit of a 24 hour emergency care line response system), communal and well stocked gardens with off-road parking (and visitor bays)
The historic market town of Diss offers an extensive and diverse range of many amenities and facilities further with the benefit of a mainline railway station with regular services to London, Liverpool Street and Norwich City. Diss is situated within the beautiful countryside surrounding the Waveney Valley on the south Norfolk borders and for the motorist Norwich is located approximately 25 miles to the north and Ipswich respectively 26 miles to the south.
Residents of the development must be over the age 60 years and in the event of a couple a spouse must be over the age of 55. Being a leasehold property there are obligations towards the cost of the ground rent and a service charge, (with the ground rent being approximately £231.98 per annum and the service charge being in the regions of £3106.18 per annum (see agents note for most information on the most recent half yearly amount). The lease reverts off a 99 year lease from 1985.
The property comprises of a first floor one bedroom flat within a building built of traditional brick and block cavity wall construction under a pitched interlocking tiled roof. Over the years the property has benefitted from the installation of replacement sealed unit UPVC windows and doors and offers accommodation measuring approximately 470 square feet
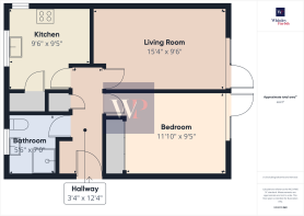
ENTRANCE HALL: - 1.03m x 3.77m (3'4" x 12'4")
LIVING ROOM: - 4.67m x 2.09m (15'4" x 9'6")
KITCHEN: - 2.09m x 2.87m (9'6" x 9'5")
BATHROOM: - 1.68m x 2.13m (5'6" x 7'0")
BEDROOM: - 3.61m x 2.87m (11'10" x 9'5")
AGENTS NOTES
Material information regarding the property can be found in our Key Facts for Buyers interactive brochure located in the Virtual Tour no. 2 thumbnail.
Over 60's only.
The most recent service charge which was paid for the 1st January 2025 to the 30th June 2025 was £1553.09
SERVICES:
Drainage - mains
Heating - Gas
EPC Rating C
Council Tax Band A
Tenure - Leasehold
Anti Money Laundering Fee Statement
To comply with HMRC's regulations on Anti-Money Laundering (AML), Whittley Parish are legally required to conduct AML checks on every purchaser(s) once a sale is agreed. We use a government-approved electronic identity verification service from Landmark to ensure compliance, accuracy, and security. This is approved by the Government as part of the Digital Identity and Attributes Trust Framework (DIATF).
The cost of anti-money laundering (AML) checks is £50 + VAT (£60 inc VAT) per purchase, payable in advance after an offer has been accepted. This fee to Whittley Parish is mandatory to comply with HMRC regulations and must be paid before a memorandum of sale can be issued. Please note that the fee is non-refundable.
Brochures
Brochure 1Brochure 2Full Details- COUNCIL TAXA payment made to your local authority in order to pay for local services like schools, libraries, and refuse collection. The amount you pay depends on the value of the property.Read more about council Tax in our glossary page.
- Band: A
- PARKINGDetails of how and where vehicles can be parked, and any associated costs.Read more about parking in our glossary page.
- Off street
- GARDENA property has access to an outdoor space, which could be private or shared.
- Communal garden
- ACCESSIBILITYHow a property has been adapted to meet the needs of vulnerable or disabled individuals.Read more about accessibility in our glossary page.
- Ask agent
St Mary's Court, Diss
Add an important place to see how long it'd take to get there from our property listings.
__mins driving to your place
Get an instant, personalised result:
- Show sellers you’re serious
- Secure viewings faster with agents
- No impact on your credit score
Your mortgage
Notes
Staying secure when looking for property
Ensure you're up to date with our latest advice on how to avoid fraud or scams when looking for property online.
Visit our security centre to find out moreDisclaimer - Property reference S1450346. The information displayed about this property comprises a property advertisement. Rightmove.co.uk makes no warranty as to the accuracy or completeness of the advertisement or any linked or associated information, and Rightmove has no control over the content. This property advertisement does not constitute property particulars. The information is provided and maintained by Whittley Parish, Diss. Please contact the selling agent or developer directly to obtain any information which may be available under the terms of The Energy Performance of Buildings (Certificates and Inspections) (England and Wales) Regulations 2007 or the Home Report if in relation to a residential property in Scotland.
*This is the average speed from the provider with the fastest broadband package available at this postcode. The average speed displayed is based on the download speeds of at least 50% of customers at peak time (8pm to 10pm). Fibre/cable services at the postcode are subject to availability and may differ between properties within a postcode. Speeds can be affected by a range of technical and environmental factors. The speed at the property may be lower than that listed above. You can check the estimated speed and confirm availability to a property prior to purchasing on the broadband provider's website. Providers may increase charges. The information is provided and maintained by Decision Technologies Limited. **This is indicative only and based on a 2-person household with multiple devices and simultaneous usage. Broadband performance is affected by multiple factors including number of occupants and devices, simultaneous usage, router range etc. For more information speak to your broadband provider.
Map data ©OpenStreetMap contributors.







