Conacher Drive, Robroyston, Glasgow City, G33

- PROPERTY TYPE
Detached
- BEDROOMS
4
- BATHROOMS
2
- SIZE
Ask agent
- TENUREDescribes how you own a property. There are different types of tenure - freehold, leasehold, and commonhold.Read more about tenure in our glossary page.
Freehold
Description
Beautifully presented four-bedroom detached villa located in the sought after and recently built ‘Wallace Fields’ residential pocket, well placed for amenities, supermarket shopping, access to the M80 and the new Robroyston rail link. This property provides substantial and well-proportioned family living accommodation, is in stunning decorative condition throughout and is a must view to avoid disappointment.
The accommodation comprises a reception hallway, living room, bright and spacious rear facing dining kitchen with French door access to the rear gardens. The kitchen is complimented by modern grey floor and wall mounted units. There is a separate utility room with further access to the rear garden and a modern W/C then completes the downstairs accommodation. Upstairs there are four well-sized bedrooms with the master benefiting from a modern en-suite shower room. In addition, there is a modern family bathroom with over bath shower. The house features double glazing, gas central heating, storage and solar panels. Off street parking is provided via a double mono block driveway and a single attached garage. Externally there is a secure predominately west facing rear garden with a lawn and patio. A wonderful family home in an established setting not to be missed.
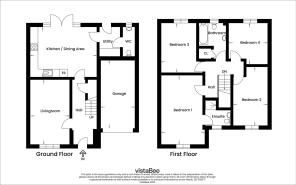
Hallway
4.9m x 1.93m
Living Room
5.33m x 3.18m
Dining Kitchen
5.23m x 3.53m
Utility Room
2.18m x 1.47m
W/C
2.16m x 1.1m
Bedroom 1
5.05m x 3.05m
Bedroom 2
4.45m x 2.7m
Bedroom 3
3.89m x 2.95m
Bedroom 4
3.35m x 3m
Bathroom
2.74m x 1.96m
En-Suite
1.85m x 1.24m
- COUNCIL TAXA payment made to your local authority in order to pay for local services like schools, libraries, and refuse collection. The amount you pay depends on the value of the property.Read more about council Tax in our glossary page.
- Band: F
- PARKINGDetails of how and where vehicles can be parked, and any associated costs.Read more about parking in our glossary page.
- Yes
- GARDENA property has access to an outdoor space, which could be private or shared.
- Yes
- ACCESSIBILITYHow a property has been adapted to meet the needs of vulnerable or disabled individuals.Read more about accessibility in our glossary page.
- Ask agent
Conacher Drive, Robroyston, Glasgow City, G33
Add an important place to see how long it'd take to get there from our property listings.
__mins driving to your place
Get an instant, personalised result:
- Show sellers you’re serious
- Secure viewings faster with agents
- No impact on your credit score



Your mortgage
Notes
Staying secure when looking for property
Ensure you're up to date with our latest advice on how to avoid fraud or scams when looking for property online.
Visit our security centre to find out moreDisclaimer - Property reference BIS250265. The information displayed about this property comprises a property advertisement. Rightmove.co.uk makes no warranty as to the accuracy or completeness of the advertisement or any linked or associated information, and Rightmove has no control over the content. This property advertisement does not constitute property particulars. The information is provided and maintained by Slater Hogg & Howison, Bishopbriggs. Please contact the selling agent or developer directly to obtain any information which may be available under the terms of The Energy Performance of Buildings (Certificates and Inspections) (England and Wales) Regulations 2007 or the Home Report if in relation to a residential property in Scotland.
*This is the average speed from the provider with the fastest broadband package available at this postcode. The average speed displayed is based on the download speeds of at least 50% of customers at peak time (8pm to 10pm). Fibre/cable services at the postcode are subject to availability and may differ between properties within a postcode. Speeds can be affected by a range of technical and environmental factors. The speed at the property may be lower than that listed above. You can check the estimated speed and confirm availability to a property prior to purchasing on the broadband provider's website. Providers may increase charges. The information is provided and maintained by Decision Technologies Limited. **This is indicative only and based on a 2-person household with multiple devices and simultaneous usage. Broadband performance is affected by multiple factors including number of occupants and devices, simultaneous usage, router range etc. For more information speak to your broadband provider.
Map data ©OpenStreetMap contributors.




