Wesleyan Chapel, Tarring Road, Worthing, West Sussex, BN11
- SIZE AVAILABLE
2,309 sq ft
215 sq m
- SECTOR
Office to lease
Lease details
- Lease available date:
- Ask agent
Key features
- Situated on Busy Thoroughfare & Popular Location of Tarring Road in Worthing, West Sussex
- Prominent Church Building with Private Parking / Playground
- Available For Quick Occupation
- New Lease Terms Available
- Suit Variety Of Uses (stpc)
- Rare Opportunity
- Block Viewings - Contact Agents For Next Available Time
Description
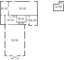
Accessed via wooden pedestrian doors there is a small entrance foyer which leads onto the main Church Hall with excellent 18ft ceiling height. To the rear of the hall are a number of ancillary rooms which could be divided to create larger or smaller open plan working areas if required. The property has a small plant room, a galley kitchen and a WC block. Internal stairs lead to a small first floor mezzanine office or store.
The property benefits from gas central heating (not tested), mixture of single and double glazing, carpeting throughout (except main hall which is traditional wooden flooring), ample electrical points, various light fittings and is ready for immediate Tenant fit out.
Externally there is a tarmac garden / front parking area suitable for parking of approx. 8 cars.
Energy Performance Certificates
EPC Rating GraphBrochures
Wesleyan Chapel, Tarring Road, Worthing, West Sussex, BN11
NEAREST STATIONS
Distances are straight line measurements from the centre of the postcode- Worthing Station2.3 miles
- West Worthing Station1.6 miles
- East Worthing Station3.3 miles
Notes
Disclaimer - Property reference JUC250117_L. The information displayed about this property comprises a property advertisement. Rightmove.co.uk makes no warranty as to the accuracy or completeness of the advertisement or any linked or associated information, and Rightmove has no control over the content. This property advertisement does not constitute property particulars. The information is provided and maintained by Justice & Co Commercial Limited, Worthing. Please contact the selling agent or developer directly to obtain any information which may be available under the terms of The Energy Performance of Buildings (Certificates and Inspections) (England and Wales) Regulations 2007 or the Home Report if in relation to a residential property in Scotland.
Map data ©OpenStreetMap contributors.





